5 new condo dual-key units that are still available in 2024 (from $2.11m)

Dual-key units are the preferred option for multi-generational family living, or for landlords who want to both stay and rent out parts of the unit.
The problem is, that developers are hesitant to build too many of these: they cater to a niche in the market, as regular homeowners don't always want to give up space for a separate pantry, an extra bathroom, and so forth. That can make them tough to find; so for those on the hunt, here are some recent new projects to look at:
(Accurate as of November 2024)
| Unit Type | Total Units | Total Units Remaining | Project Name | Price From | Size (Sq Ft) | $PSF |
| 2 Bedroom Dual Key | 34 | 3 | Grand Dunman | $2,116,000 | 775 | $2,730 |
| 3 Bedroom Dual Key | 36 | 27 | Grand Dunman | $2,590,000 | 1,055 | $2,455 |
| 4 Bedroom Dual-Key | 8 | 1 | Lentor Hills Residences | $2,920,000 | 1,399 | $2,087 |
| 3 Bedroom Dual-Key | 8 | 2 | Lentor Hills Residences | $2,733,000 | 1,302 | $2,099 |
| 4 Bedroom Dual Key | 23 | 23 | Nava Grove | $3,468,000 | 1,464 | $2,398 |
| 4 Bedroom Dual Key | 18 | 17 | The LakeGarden Residences | $2,828,600 | 1,356 | $2,086 |
| 2 Bedroom Dual-Key | 34 | 34 | TMW Maxwell | $2,623,000 | 861 | $3,046 |
Grand Dunman is a new launch mega-development (1,008 units) in District 15. This is the biggest project of the recent D15 launches, larger than counterparts Tembusu Grand, The Continuum, and Emerald of Katong. This project is within close walking distance of Dakota MRT station (CCL), and is notably close to the hub of Paya Lebar Quarter (PLQ).
Grand Dunman has dual-key two and three bedders:
The two-bedders are available in two different layouts: one is a smaller 721 sq ft layout, while another (DK2) is a bit bigger at 775 sq ft:

(Also note that the smaller layout has a high ceiling in the living/dining area)
Besides the small size difference, both layouts keep a separate kitchen for each subunit. While it's impressive that they managed a dual-key layout in such a small space, it is a bit packed: it might be a struggle to fit a full-sized dining table in the main subunit.
For the smaller one, you're basically just eating in the kitchen. Also note that, unlike other two-bedders in Grand Dunman, the dual-key units don't use a dumbbell layout.
The 775 sq ft layout, in particular, seems less efficient — mainly because of the long corridor running from the kitchen to the end of the bedroom.
In general, both dual-key two-bedders are better for tenants: they allow two unrelated roommates to maintain a good level of privacy. Or if you're single, you can share the unit with your tenant, with minimal hindrance to each other. Families, however, are likely to find them way too small.
These units are also a rarity on the property scene, as most dual-key units are at least three-bedders.
Grand Dunman also has dual-key three-bedders

The three-bedroom dual-key units are 1,044 and 1,055 sq ft In these layouts, the PES (balcony or patio) is made available to both subunits: either spilling out from the living room for the main subunit or being beside the bedroom in the smaller one.
This is great for ventilation and natural light throughout. But while the main subunit can fit a proper four-person dining table, the smaller subunit still only has room for a two-seater. For the larger unit, we also see a high ceiling for the living/dining area.
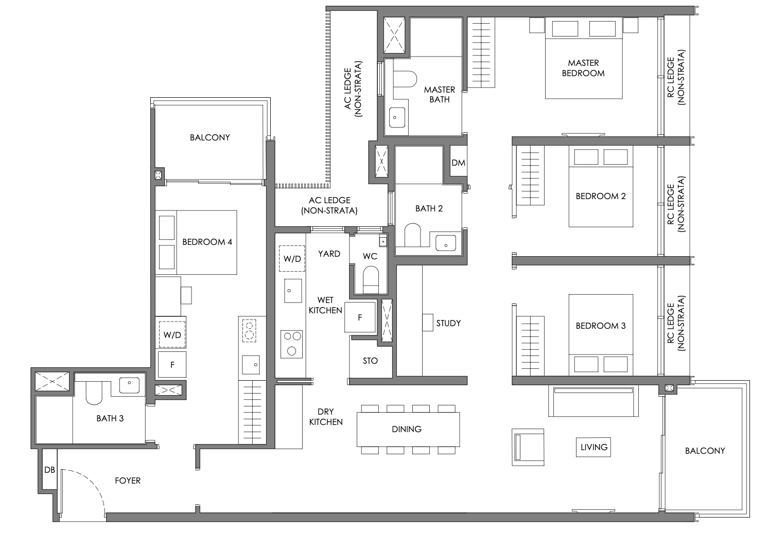
Lentor Hills Residences is a leasehold, 598-unit condo. It’s part of the recent surge of private residences in Lentor, accompanied by Lentor Modern, Lentor Mansion, Lentor Central Residences, etc. It’s near Lentor MRT station (TEL), and once Lentor Modern is completed residents can share amenities with its mixed-use neighbour.
Lentor Hills has dual-key three-bedders at 1,302 sq ft. A generous portion is given over the main subunit: this part of the layout has a kitchen with a service yard, the living/dining space can fit a full six-seater dining table, and the balcony is uninterrupted by any air-con ledge.
By contrast, the smaller subunit has more of a pantry than a kitchen, and the PES shares space with the air-con ledge.
The larger 1,399 sq ft four-bedder shows the same tendency, but the main subunit appears less efficient. There’s a bit of a long corridor running from the living/dining area down to the master bedroom. Air-con ledges are all neatly tucked behind the service yard for the main subunit, whilst the smaller subunit has its balcony interrupted by a ledge.
Nava Grove is one of the new launches that was launched during the bumper crop in early November. It has done well too, having sold 65 per cent of its 552 units. This leasehold condo is the latest alternative to Pinetree Hill.
Besides its competitor, the area around Nava Gove hasn't seen another new condo in over a decade and a half, so there's pent-up demand from many nearby upgraders. It's also quite a good choice for nature lovers, as the Ulu Pandan area is known for the nearby greenery and some of the better views in the Clementi area.
Nava Grove's show flat features its 1,464 sq ft dual-key unit; so we'd suggest you pay them a visit for a more direct look. This unit has an unusually large foyer, which isn't necessarily a waste of space — it's also big enough for coat racks, shoe cabinets, your pet's leash/food bowls, etc. Anything you may prefer to leave outside the main unit.
The subunit has an interesting pantry/mini-kitchen: while many such subunits only use one wall of the kitchen, this one uses both sides — and the added storage space will be appreciated in such a small area. The balcony is also generously sized, able to accommodate a table and two chairs in the show flat.
The main subunit has a wet and dry kitchen, with a service yard. The living/dining space is a long rectangular stretch, with sufficient room to fit an eight-seater dining table.
There's also a flexible study space here, which could conceivably be merged with the dining/living room if you decide you don't need it. It's quite a large and flexible space, so you don't feel the loss of room to the other subunit.
A fairly recent launch, LakeGarden Residences is built to take advantage of proximity to the famous Jurong Lake Gardens, as the name implies. This condo has fantastic views of the lake district while maintaining relative proximity to Jurong East (Singapore's "second CBD").
This is a good spot for those who like the newfound convenience of Jurong as a hub but don't want the crowds and noise that come from living near the Jurong East MRT, or big malls like IMM and JEM. This is also quite a private and cosy project, a leasehold property with just 306 units.
LakeGarden has 1,356 sq ft dual-key units. As with Nava Grove, the foyer — in this case, a private lift foyer — is surprisingly large. You either see it as a big waste, or a great convenience (if you're the sort with a lot of things to keep outside the house, like multiple bikes).
The main subunit is spacious and versatile (big rectangular rooms), able to handle a six-seater in the dining space; the living room spills out into a balcony that overlooks the lake district in all its glory. There's enough room to set a table for some alfresco dining too.
The kitchen has both a wet and dry kitchen (although the "dry" portion is kind of small), and is well-placed to use the mandatory household shelter for storage.
The smaller subunit is compact and efficient, but sadly loses out on the best part of this project: the view. Most tenants are less fussy about these things, but you may feel bad putting a family member there.
TMW Maxwell is a leasehold, 324-unit condo on Tras Street, near Maxwell (TEL) and Tanjong Pagar (EWL) MRT stations. This is smack in the CBD, so amenities are abundant, and this project is bound to see high rentability from CCR-area workers.
That said, it comes with the expected tradeoff of being in such a packed area: this is a condo for the true urbanite, who doesn't mind the heavy traffic and "concrete jungle" of Singapore's business heart.
This condo is mainly targeted at young single professionals or landlords, as it lacks the green spaces and school access that families prefer (Cantonment Primary is the only school within the priority enrolment range).
This unit offers rare two-bedder dual key units. It makes sense for TMW Maxwell though, as this is for renting out rather than family use. 861 sq ft is not a lot of space for a dual-key, so things are kept efficient and basic.
The smaller subunits have decent storage space (on the wall opposite their pantry), and the main subunit has enough dining space for a four-seater. The kitchen in the main subunit has a good L-shaped layout, providing a little more countertop space — and you want every inch you can get in a two-bedder.
[[nid:711185]]
This article was first published in Stackedhomes.