I bought a $3m leasehold cluster housing home and I have no regrets

Cluster housing is a bit of an unusual property choice that most wouldn’t think about immediately. A lot of Singaporeans are inclined to ask “Why not just a fully landed home?” After all, cluster homes aren’t exactly cheap – and investors are wary of resale difficulties.
Regardless, we shouldn’t be too dismissive of this segment of private housing. For some family members, cluster housing fills a much ignored niche:
Cluster housing refers to detached homes, which are strata titled.
Like a condo development, cluster housing projects have common facilities such as pools, gyms, and so forth. Cluster housing is strata titles, so an MCST is involved, and there are maintenance fees. It’s almost similar to a condo in every way, except with houses instead of apartments.
As we’re often asked the difference between cluster housing and “true” landed properties, here’s what you need to know:
| Cluster housing | “True” landed property | |
| Common facilities | Comparable to condos (note that this includes private security) | None, you need to buy your own pool, gym, etc. |
| Rebuilding and alterations | No tearing down and rebuilding. Alterations are subject to MCST restrictions. | As long as it’s not a special conserved house, you can do as you please. |
| Maintenance | MCST controlled, with regular maintenance fees | Entirely in your hands, including repainting of the exterior, fumigation, etc. |
| Foreign ownership | Allowed | Only in Sentosa Cove; foreigners must get special permission from SLA to own landed homes on the mainland |
Pricing is a little harder to comment on, due to the wide range in landed housing. There are cluster homes starting from as low as $800 psf, and reaching well over $2,500 psf.
In general however, cluster homes will be cheaper than their “true” landed counterparts, by about 30 per cent (the disparity can be much greater, based on location).
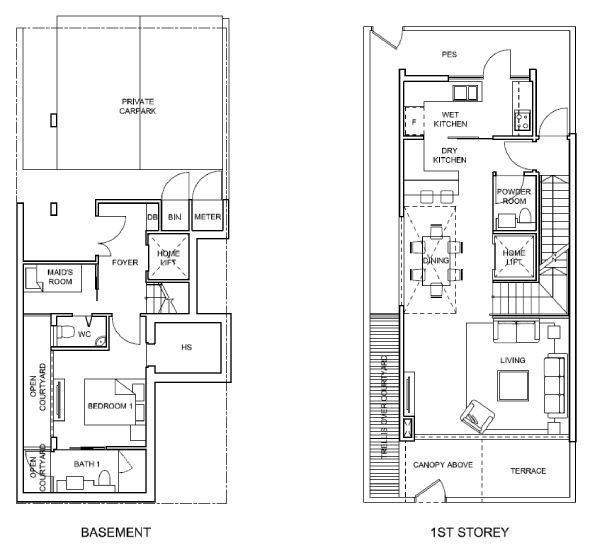
We recently spoke to A, who purchased a cluster home at the Parkwood Collection. The purpose of A purchasing his unit was purely home ownership. Due to the make-up of his family, a condo development would have been impractical:
“I have a large family with four children, and an elderly mother who is sometimes wheelchair-bound. So, I needed somewhere spacious, and without too many impediments like stairs,” A says, “Adding me, my wife, and our helper, we needed a large living space with at least four to five rooms to house eight of us”.
Besides this, A wanted his children to have close proximity to schools, and to have a polyclinic nearby for his mother.
[[nid:515766]]
Even with a budget of $3 million, finding a place that meets the requirements would be tough.
“Cluster units are pretty limited,” A discovered, “and the freehold ones tend to be in inaccessible areas. It made it challenging for my kids to go to school, or for my mom to get easy access to medical or food places.”
This is a common issue for most forms of landed property, whether they’re cluster-housing or not. Low-density, landed enclaves tend to be further from the hub of the neighbourhood, and residents may have to drive some distance even for amenities.
A found that some initial choices; but while they met some criteria, they were lacking in others:
“Some like Atelier Villas fit the budget,” A said, “but it felt cramped, and the project looked old and not very well maintained. On top of that, I found most cluster homes do not have a granny’s room on the ground floor; those without a private lift were out of the running, as my mother would have difficulty with the stairs.”
A did a lot of searching in Hougang, Ang Mo Kio, and Seletar, preferring to stay within these areas. Some of the other cluster housing developments he went through include Alana, Cabana, Luxus Hills, Begravia Villas, Nim Collection, Rich Residence, and Este Villa.
“To be honest, most of the cluster homes felt somewhat claustrophobic. On paper it seems like they’re large, but in reality, they felt cramped. I believe the stairwell or lift, plus lots of wasted space on attic or sloped roofs, could be the reason. I even preferred my four-room room EC unit at The Topiary, which felt more spacious with all the rooms on the same level!”
Of all the viewings, only the units at The Nim Collection left a strong impression:
“Of the lot, Nims was the only one that really wowed me. The design from outside to inside was breath taking – a super-high ceiling with a mezzanine floor. And once I’d seen the Nims, every other cluster house felt like stacked shoe boxes,” A says.
Unfortunately, even the cheapest unit he could find at The Nim Collection was $3.6 million. This was significantly beyond the budget. However, even that could have been forgiven, had there not been a lack of amenities.
Nim Collection has only one school within a one-kilometre radius (Da Qiao) Primary; and even then it was barely within range (998 metres). There’s also little in the way of retail or other day-to-day amenities.
A chanced upon Parkwood Collection in a Facebook ad.
“The keywords were ‘spacious’ and ‘close to amenities’, so I checked out the showroom. I wasn’t expecting much to be honest; but after seeing the showroom, it actually checked a lot of the boxes for me,” A says.
“It’s walking distance to Holy Innocents Primary school, great for my two younger kids. It’s about nine to 10 minutes walk to an upcoming MRT, and within five to eight minutes’ drive to either Kovan or Hougang.
[[nid:501629]]
Being in a mature estate, there were also clinics, HDB developments, and eateries nearby. In fact, right in front of Parkwood Collection, there is a restaurant and Lee Wee Brothers nasi lemak store.”
The interiors also worked out for A’s needs. He felt they were spacious, and felt like a proper landed home should. “Being a new cluster development, I find the layout up a notch, even compared to well-designed cluster housing like the Alana,” A says.
The price was also right, as A was able to secure the last of the early-phase sales.
“This batch was still within the $2.9 to $3.3 million range. Beyond the unit I bought, everything else was in the $3.4 to $5 million bracket.”
Current prices indicates an average price of $734 psf.
Location: Lorong 1 Realty Park (District 19, Hougang)
Developer: Fantasia Holding Group
Lease: 99-years
TOP: 2022
Number of units: 50
Parkwood Collection is about 540 metres from Hougang MRT station, and has six schools within one-kilometre. Holy Innocents’ Primary is the closest at just 300 metres, while Serangoon JC is only 460 metres.
A had to act fast, to secure the unit at its present price.
“I decided to secure the OTP first, while I sorted out my EC MOP next year,” A says. “The developer agreed to give me a year’s OTP extension; and I figured if for any reason the project is not a good buy after all, I’ll just eat the loss of the $40,000 deposit – but at least I could reserve that unit I liked first.”
(Note that, due to recent changes implemented by URA, we can no longer have developers extend the OTP for us like they used to. There was a time the OTP could be repeatedly renewed if it lapsed, sometimes even for two or more years, but those days are over. The maximum now is 12 weeks, with URA’s permission).
“Whenever I tell people I bought a 99-year cluster home, I tend to get a lot of disapproving responses,” A says, “Like ‘Why did you not get freehold?” or ‘For that amount you can reasonably get a freehold landed!’ Even from your articles I can see Clusters aren’t the best ‘investment’ but hey, my priority is to get a home.
[[nid:530209]]
It’s for my mom to live out her remaining days comfortably, for my kids to be close to amenities and school, so I’ll bite that bullet with regards to investment. I’ll make money from business instead, ha ha!”
It is true that cluster housing is tough from an investment perspective. They aren’t top performers for rental or gains; and buyer demand for landed homes has always skewed heavily toward freehold.
However, cluster housing has a solid, if niche, position in the Singapore private property market. It provides a more affordable alternative to “full” landed properties, for those who absolutely require larger living space.
It’s also helpful for home owners who aren’t in a position to manage certain elements, such as having to look after the house exterior, or having to maintain their own pool. So don’t be too quick to dismiss cluster housing, do think outside the freehold box.
This article was first published in Stackedhomes.