Meadows at Peirce, Thomson Grand or Thomson Impressions: Which is the better 2-bedroom apartment in Thomson?


Hi,
I’m a big fan of your articles and analysis. I’m currently looking for a 2BR apartment in the Upp Thomson area for my own stay and I’ve taken an interest in Meadows at Peirce, Thomson Grand, and Thomson Impressions. Can you kindly share what you think about the 2BR units in these developments?
Thank you!
Hey there,
Thank you for writing to us and thanks for your support and kind words. We appreciate it a lot!
With regards to your question, the Thomson/Lentor area is seeing some limelight in recent months especially since the opening of Thomson-East Coast TEL MRT line stage 2 which provides great convenience to the residents in the vicinity.
This area is close to nature and bustle with quaint cafes – highly sought after among home seekers. To support the demand, URA has released quite a few plots further north in the Lentor/Ang Mo Kio Ave 3 vicinity where we will be seeing quite a few new launches in the next few months. This will then add in to the competition for the resale counterparts.

Overall, two bedders cater to a wider demographic as compared to 1 bedder when it comes to exiting.
Here are some of our opinion on the developments that you’ve shortlisted:
With only 479 units, Meadows at Peirce offers tranquil living, close to nature, and provides decent facilities. Located slightly away from Lentor MRT station, it has ample bus services to connect residents to amenities and the MRT station.
As a freehold project, prices have persevered well with its current average $PSF at $12xx psf. So far this year, there have been 21 units transacted. It has an affordable quantum for a spacious two bedder unit size, and we do foresee value retention for Meadows at Peirce added with some spillover effect from the upcoming Lentor developments.


At 915 sqft, this unit is a spacious two bedder. It comes with an enclosed kitchen and ventilation windows for both bathrooms and kitchen. There is also an in-unit household shelter which is great for storage purposes.
While the unit comes with decently-sized bedrooms, it does come with bay windows which takes up space. The unit also comes with a long walkway entrance which takes up space.
Thomson Grand is located in close proximity to Brighthill TEL MRT station which will be a future interchange.
It has also seen price appreciation in recent years with a healthy transaction volume; 26 units transacted so far this year at an average of $14xx psf. Located within 1km proximity to Ai Tong School, we think that Thomson Grand will continue to attract families when it comes to exiting in the future.

At 947 sqft, the two bedder unit is quite spacious with the provision of a private lift which is a value-added selling point for Thomson Grand. The unit comes with an enclosed kitchen and good size bedrooms. There is also an in-unit household shelter that can be used for storage purposes.
With lots of windows, it offers great ventilation and allows natural light to come into the unit. However, it does come with a long walkway between the entrance and second bedroom which takes up space.
With only 288 units, Thomson Impression offers a great view of the vicinity with decent facilities. A relatively new project, it is seeing a healthy transaction volume this year with 17 units sold thus far at $16xx psf on average as compared to seven units sold for the whole of last year.

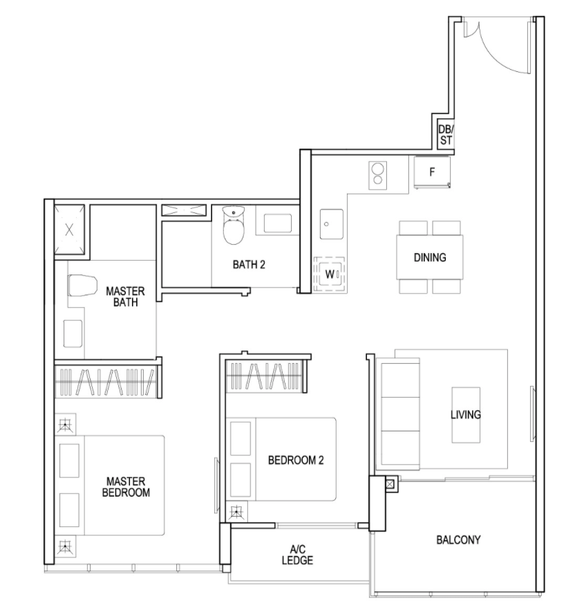
At just 732 sqft, the two-bedroom unit comes in on the smaller side as compared to the neighbouring resale development. However, it is squarish and relatively efficient with decent size bedrooms and living/dining space. Do be mindful that an open concept kitchen layout may not be favourable to some buyers when it comes to future exit.
All in all; all three developments have their fair share of pros and cons. Meadows @ Peirce being freehold for value retention.
Thomson Grand and Thomson Impression for proximity to Ai Tong School and Brighthill MRT interchange station. We do hope with the pointers shared above, it will assist you in your decision on which development would suit your needs.
This article was first published in Stackedhomes.