10 rare 3-bedroom condos under $1m in 2024 (with floor plans)

The trouble with upgrading is that, quite probably, upgraders are family units; and families have no use for the affordable but too-tiny one or two bedder layouts. At 2024 prices though, a private home the size of a typical three-bedroom condo can reach $2 million even in the city fringe.
So for those who need more affordable alternatives (priced under a million), you don't have too many options still in the current market. And as a sign of how much prices have risen, the last time we looked for 3-bedders that cost under $1 million, that list has been cut short quite dramatically in 2024.
Here's a list of where you should start your search:
| Project | Tenure | Planning Area | Lowest Transacted | Size | Volume (May 2023-24, up $1.2m) |
| HOUGANG GREEN | 99 yrs from 01/12/1994 | Hougang | $918,000 | 1130 sq ft | 1 |
| PARC ROSEWOOD | 99 yrs from 07/09/2011 | Woodlands | $929,000 | 829 – 969 sq ft | 3 |
| NATURA@HILLVIEW | Freehold | Bukit Batok | $935,000 | 657 sq ft | 1 |
| SYMPHONY SUITES | 99 yrs from 10/06/2014 | Yishun | $935,000 | 786 – 915 sq ft | 20 |
| SPAZIO @ KOVAN | Freehold | Hougang | $978,888 | 678 sq ft | 1 |
| CRYSTAL LODGE | Freehold | Geylang | $980,000 | 1152 sq ft | 1 |
| NORTHOAKS | 99 yrs from 16/12/1997 | Woodlands | $985,000 | 1216 – 1292 sq ft | 20 |
| BELYSA | 99 yrs from 24/01/2011 | Pasir Ris | $990,000 | 829 – 893 sq ft | 4 |
| EVERGREEN PARK | 99 yrs from 01/10/1995 | Hougang | $990,000 | 1023 – 1087 sq ft | 6 |
| SIMEI GREEN CONDOMINIUM | 99 yrs from 14/11/1996 | Tampines | $995,000 | 969 – 1249 sq ft | 5 |
Location: 5 Rivervale Crescent (District 19)
Developer: NTUC Choice Homes
Lease: 99-years
Completion: 1998
Number of units: 90
Hougang Green's lower price is mainly due to two factors: first, this is a leasehold project built in 1998, so it's on the older end. The second is the lack of MRT stations within walking distance; but this isn't an issue if you're okay with needing a bus connection. Services like 43, just outside the condo, go to Buangkok MRT (NEL) in just a few minutes.
Accessibility aside, Hougang Green is deceptively convenient. It's right next to Hougang Green Mall, where you'll find a food court and numerous other eateries; the surrounding HDB enclave is also well developed, with the usual range of coffee shops, convenience stores, and other heartland amenities. Alternatively, Sengkang Grand Mall is next to Buangkok MRT, and has an NTUC FairPrice as well as more retail options.
Overall, this is a good option if you want a combination of condo and heartland-style living. Hougang Green is as convenient as a mature-area HDB development, with coffee shops and other things you need right downstairs. On the flip side, buyers who pick condos specifically for the exclusivity and privacy may not like being within such a dense HDB enclave.
Location: Rosewood Drive (District 25)
Developer: Kensington Land Pte Ltd
Lease: 99-years
Completion: 2014
Number of units: 689
Parc Rosewood is one of the more affordable condos in Singapore, which isn't too much of a surprise given its location in Woodlands. It isn't the most accessible condo, as although you can walk to the MRT station, you'll likely want to use the bus connection like 912 to get to Woodlands MRT station (NSL, TEL), which is also where you'll find most of your amenities. Causeway Point is near the train station, and this is the major heartland mall Woodlands.
(Note that Woodlands South MRT is technically closer, but we believe most residents will just use the bus to head directly to Woodlands MRT).
Notable highlights here are the proximity of Innova JC and Innova Primary, as well as the Singapore Sports School. Parc Rosewood also overlooks the greenery of Mandai, and it's easy to the causeway to Johor from here. Coupled with the lower price point, this could be a viable rental asset, if you want to capture the Malaysian foreign worker crowd.
This is a new-ish development that's only 10 years old (built in 2014), so if you don't mind — or even enjoy — the sort of greenery that Woodlands provides, this project can be a good buy. More urban families who like the proximity of malls, train stations, cinemas, etc. may find this condo a bit too far flung though.
Location: Hillview Terrace (District 23)
Developer: Mequity (Hillview) Pte Ltd
Lease: Freehold
Completion: 2015
Number of units: 193
Natura@Hillview is a small project, and about half of the 193 units here are small units (one or two-bedders). The larger ones do go past 1,200 sq ft, but the availability may be limited. The small unit count is both a pro and a con: coupled with the quiet location, Natura does feel much more private. On the downside, a lower unit count can mean higher maintenance fees.
Natura is built to take advantage of the fantastic scenery, in the appropriately named Hillview area. This condo is positioned between Bukit Gombak Hill and Bukit Gombak Nature Park; so you don't just have a good view of the greenery, you can go downstairs and stroll/bike through these areas. Outdoorsy types will find a lot to like about this location.
On the flip side, immediate amenities are a bit limited. You'd probably need a bus to get to West Mall or HillV2 for most needs, and the nearest MRT (Hillview) isn't near enough to walk daily. Still, this condo is better for those who drive, or who are willing to rely mainly on buses.
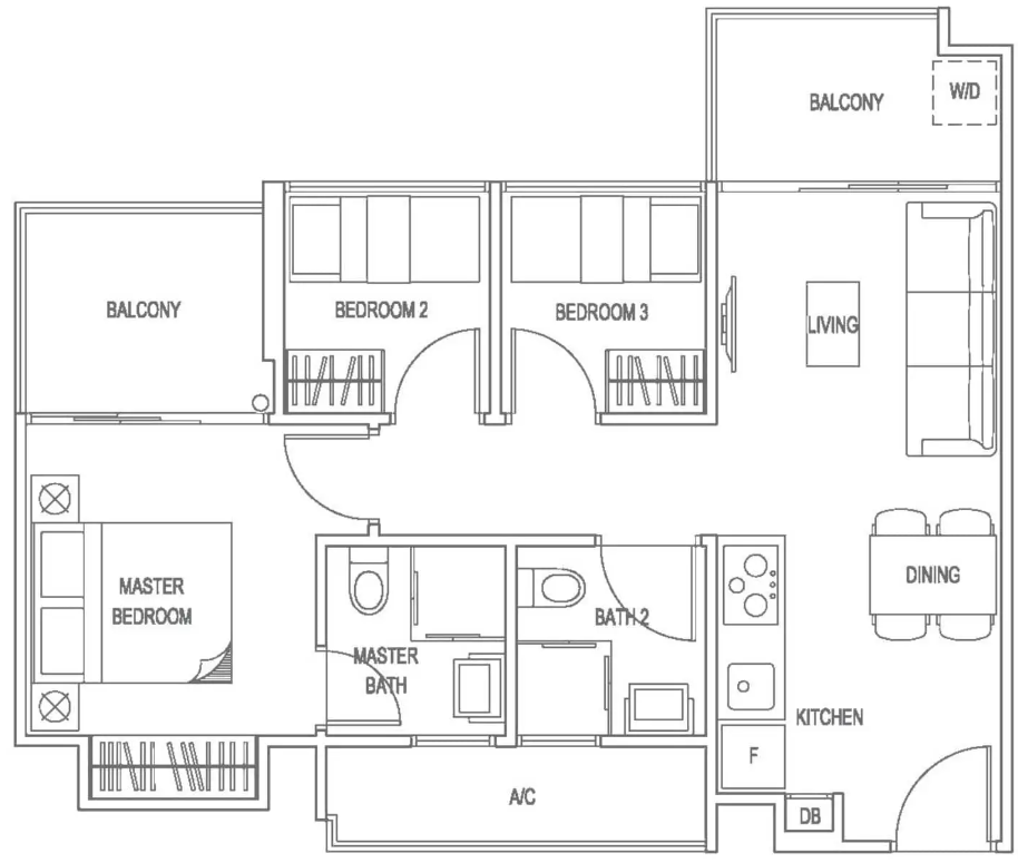
It is also worth mentioning that at 657 sq ft, this is a very small footprint for a 3-bedder. Both common bedrooms can only fit a single bed, and the kitchen is small enough that the washer/dryer has to be on the balcony. It is also a wonder that they managed to fit in two balconies in such a small space, but also just as much of a wonder as to why anyone would want two balconies for such a size anyway.
Nevertheless, for those who are concerned about leases, it's hard to find such freehold options at this price point in 2024.
Location: Yishun Close (District 27)
Developer: EL Development (Yishun) Pte Ltd
Lease: 99-years
Completion: 2018
Number of units: 660
Symphony Suites wasn't expensive to begin with, and the developer clearly banked on affordability as a selling point (back at the time of launch in 2013, the family-sized units were as low as $770 psf; rather competitive given it was close to a market peak).
The tradeoff for the lower price was, and remains, the lack of MRT stations nearby. Bus services like 800 can take you to Yishun MRT (NSL), but it's too far to walk. This is somewhat mitigated by the proximity of the HDB enclave nearby, as well as Junction 9.
The nearby flats provide a good number of heartland amenities, while Junction 9 is a mixed-use project that offers some retail and eateries, as well as a Sheng Siong.
If you like self-contained enclaves where you don't need to travel out much, you can consider a fairly convenient area; otherwise, it'll feel a bit far-flung. You do have access to a bigger mall in the form of Northpoint though; but this is near Yishun MRT so again, you do need to drive or use the bus.
That said, those who work near the Yishun Industrial Park (or want tenants from there) could find this project useful. The nearby Khatib Bongsu Park could provide nice views, so it's a bit of a waste that most of the three-bedder stacks are inward-facing instead (though you get a nice pool view).
Location: Upper Serangoon Road (District 19)
Developer: Spazio Land Pte Ltd
Lease: Freehold
Completion: 2016
Number of units: 48
Like Natura@Hillview, it's quite surprising to see a freehold property make this list, but here we are: Spazio @ Kovan is a boutique (48-unit) condo built in 2015. This project is reasonably close to Serangoon MRT station (NEL, CCL), where you'll also find NEX megamall — it's a bit of a walk, but still somewhat manageable on foot (otherwise, take buses like 107 nearby to get there).
The immediate surroundings may be the reason for the lower price point. To be blunt, it's not the prettiest view: some units face Upper Serangoon Road, and we think this condo is a little too close to the road to avoid the noise. There's also a range of shops below the condo that aren't really controlled, and the last we checked there was at least one massage parlour.
Across the road is Upper Serangoon Shopping Centre, which is probably not something you'd count as a big amenity. Some buyers may also be put off by two budget hotels (a Hotel 81 and a Fragrance) facing the condo, from next to the shopping centre.
So fine, it's not the most gorgeous-looking area, and facilities are very limited. But what you do get is proximity to Serangoon MRT, and the extensive range of conveniences in that area; and bus services like 138 can take you to Serangoon Gardens, a famous identity node, in just a few minutes.
It is also a rather similar story to Natura, where this is a very small unit of just 678 sq. ft. However, it does fare better well as you don't have any balcony space here - which helps to conserve more interior space for such a compact unit.
ALSO READ: Why selling your own HDB flat isn't as easy as you think: 7 hidden difficulties to be prepared for
This article was first published in Stackedhomes.