18 rare HDB flats with balconies: Here's where to find them

HDB flats can be more unique than you think (just check out some of these rare floor plans here), and there's one feature that many people often overlook: some HDB flats actually come with balconies!
Balconies, typically associated with private condominiums, can be found in select HDB flats, offering residents a unique experience that brings the outdoors right to their doorstep. Whether you're a green thumb looking to create a mini garden oasis or simply yearn for a cosy spot to unwind and enjoy the breeze, having a balcony can transform your HDB living experience.
Join us as we unveil some of these rare HDB flats with balconies, because sometimes the best surprises are right under our noses.
| HDB Development | Town |
| 545 Ang Mo Kio Avenue 10 | ANG MO KIO |
| 290 Bishan Street 24 | BISHAN |
| 289A Bukit Batok Street 25 | BUKIT BATOK |
| 1 Delta Avenue | BUKIT MERAH |
| 48 Telok Blangah Drive | BUKIT MERAH |
| 8 Kim Tian Place | BUKIT MERAH |
| 519 Jelapang Road | BUKIT PANJANG |
| 685A Choa Chu Kang Crescent | CHOA CHU KANG |
| 326 Ubi Avenue 1 | GEYLANG |
| 289C Punggol Place | PUNGGOL |
| 322A Sumang Walk | PUNGGOL |
| 666B Punggol Drive | PUNGGOL |
| 270B Punggol Field | PUNGGOL |
| 96 Dawson Road | QUEENSTOWN |
| 89 Dawson Road | QUEENSTOWN |
| 338D Anchorvale Crescent | SENGKANG |
| 168C Simei Lane | TAMPINES |
| 331 Tampines Street 32 | TAMPINES |
Do note that these are just specific blocks. Generally, the development should have the same layouts.
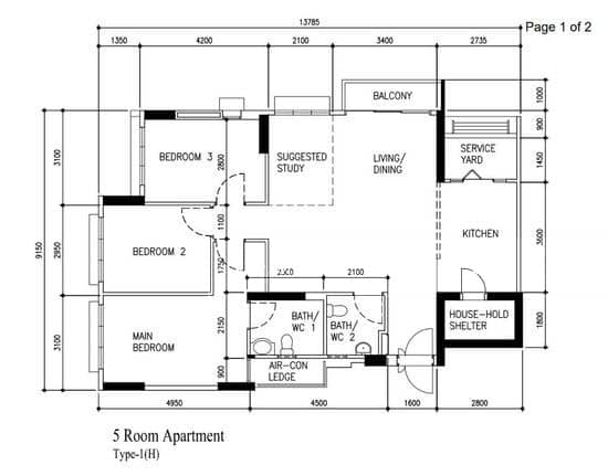
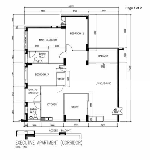
The balconies do take up some amount of square footage, so you may be sacrificing a bit of room from the living area. We’ve attached some floor plans for the various blocks above, so you can gauge the impact.
Some notable HDB locations from the list
This block stands out because it's close to Natura Loft. Back in 2021, Natura Loft — a DBSS development that very recently held the record for the most expensive HDB flat ever sold, at $1.36 million (though this was recently beaten by Pinnacle @ Duxton in April this year, where a unit sold for $1.4 million).
The units at Block 290 share similar locational advantages, being so close by. However, the price point should be lower as it's not a DBSS project. In the most recent transaction in September 2022, a five-room flat sold for $975,000.
The location is very convenient: Bishan North Shopping Mall, an HDB mall with most day-to-day amenities, is less than a five-minute walk from this block. Just next to this mall is a bus stop, where bus 54 will get you to Bishan MRT (CCL, NSL) in a few minutes.
Junction 8, the major neighbourhood mall for Bishan, is also next to Bishan MRT — so residents here are just a short bus ride from the retail hub of the neighbourhood.
If you don't want to use the bus, you could also walk to Junction 8 or the Bishan MRT from here, but it's a bit far; we'd reckon around 12 minutes. Cycling would definitely be ideal.
Besides this, the block is nestled in a mature and built-up HDB area (it was completed back in 1998), so you'll find the usual coffee shops, convenience stores, and other neighbourhood amenities.
Families may also like that Catholic High School is just right next door.
This block is on the list because of its lease, which began in 2018. With the five-year Minimum Occupancy Period (MOP), this should mean the flats are just coming onto the resale market this year. This would be ideal for buyers who want to move in right away, but also want negligible lease decay.
Accessibility is a matter of opinion for this block: if you're okay with using the LRT to connect to the MRT, then you could consider it convenient. Farmway LRT is the nearest station from the block, and this connects to Sengkang MRT (NEL) in two stops.
If you dislike having to use an LRT connection though, you probably won't enjoy the location.
The flats have a good view of the Sengkang Riverside Park, and being able to walk there in no time at all is great for the family (you are also near the Sengkang Sports Centre). There's also a good number of childcare options nearby, and one of them (Skool 4 kidz) is within the park itself.
There are the usual HDB amenities around the block, and a Sheng Siong that's just across from the playground.
The oldest block on this list, 48 Telok Blangah Drive dates back to 1976. Lease decay isn't great, but on the flip side, HDB flats at the time were more generously sized. Another big factor is that the area around this block is much improved.
When Telok Blangah MRT (CCL) went into operation in 2011, it solved longstanding issues of accessibility for this block. The station is just located right at the doorstep for residents. Telok Blangah is just one stop from Harbourfront MRT (CCL, NEL), giving residents easy access to VivoCity (and Sentosa, or the ferry to Batam, for those long weekends).
Another bonus is proximity to Mount Faber. While it's not within walking distance, you are close to Faber Point, the cable car, etc. If you were to drive to Faber Point from this block, it would take around 10+ minutes. That proximity is something that other home buyers pay top dollar for, in a private residence.
The big drawback here is the lack of schools nearby. Apart from Blangah Rise Primary School, there are no other schools within the one-kilometre Home School Distance.
Another drawback is the lack of major retail and entertainment, outside of venturing to VivoCity (but most people would argue that that's probably enough). Day-to-day amenities won't be an issue though, as you can find convenience stores, grocers, etc. in the surrounding blocks (there's an NTUC Fair Price just a four-minute walk from this block).
This is a new and interesting area to watch. One reason is the adjacent development of Piermont Grand (EC), next to this block.
When Piermont Grand was sold, the average price of $1,350 psf made some buyers balk — some found it outrageous for a Punggol area EC, and one that wasn't in the hub of Punggol either.
Opinions have begun to change, however, with the current selling prices of new ECs today. Also, the development of Waterway Point; as this is a major waterfront retail and recreation zone.
[[nid:633888]]
Piermont Grand's profitability will be a bellwether for how much the Punggol area has been transformed, and the full impact of the waterfront hub. But it will be much later in 2028 before Piermont Grand joins the resale market. Block 322A nearby will reach MOP much sooner, sometime in 2024.
This will provide an earlier indicator of how things are going in this part of Punggol. While this block has no direct MRT access (just like Piermont Grand), it is within walking distance of Nibong LRT. It's about a six-minute walk, and the LRT links you to Punggol MRT (NEL).
Punggol MRT is next to Waterway Point, so this makes the location more convenient than it seems on paper.
There's also a good waterfront view from some of the units, and access to Punggol Waterway Park will be enticing to some families.
As a drawback, however, Punggol Cove Primary appears to be the only nearby school for residents.
All in, this is a very new and untested area — but its performance when it joins the resale market next year will set expectations for years to come. Along with the Punggol Digital District, this will show if Punggol is finally starting to shed its "ulu" status.
ALSO READ: HDB housing grants available for different types of flats in Singapore (2023)
This article was first published in Stackedhomes.