5 unique new landed homes within a condo development: Here's where to find them


Want a landed property, but don't want the hassle of maintaining the exterior, installing your own pool, etc.? Well, the most common alternative is cluster housing, but there is another option.
Some condo projects have villas, or a small number of landed properties, in addition to the usual apartments; and they may provide the right mix of much more convenient landed living.
This week, we looked at some of the newest projects which sport interesting villa units:
Normanton Park is a mega-development with around 660,727 sq ft of land area, so it's unsurprising there's room for 22 terrace houses; and the landed options are sizeable, being double storey with a basement.
The landed units include both a dry and wet kitchen with a service yard, with the living and dining areas adjacent to the stairs. The void space above the dining area is a nice visual touch, and ideal if you're the sort who likes elaborate light fixtures (e.g., chandeliers over your dining table).
The first bedroom is at the end of the first floor near the kitchen though, and we're not sure everyone appreciates that — although it is useful for those with elderly grandparents staying together.
The second floor has three other bedrooms, including the master bedroom, while the basement area has two lots. There's also a small toilet in the basement area, next to the household shelter; probably something you'd appreciate if you're using that shelter as a room of sorts (e.g., a hobby space).
Normanton Park is one of the biggest condos in Singapore, with 1,862 units; and the main draw would be the proximity to One-North, a tech and media hub, and to Buona Vista and Holland V.
One thing to note about Normanton Park is that it’s more accessible than it looks on maps. The bus stop outside has services that run straight to Fusionopolis, providing access to One North MRT (CCL). From here it’s just one stop to Buona Vista (EWL, CCL) or Holland V. So ignore that the closest station is technically Kent Ridge, or that no stations show up within walking distance.
| Project Name | Transacted Price ($) | Area (SQFT) | Unit Price ($ PSF) | Sale Date | Type of Sale | Property Type | Address |
| NORMANTON PARK | $3,150,000 | 2110 | $1,493 | 24 Jan 2022 | New Sale | Terrace House | 7 NORMANTON PARK |
| NORMANTON PARK | $3,150,000 | 2110 | $1,493 | 24 Dec 2021 | New Sale | Terrace House | 3 NORMANTON PARK |
| NORMANTON PARK | $3,150,000 | 2110 | $1,493 | 5 Dec 2021 | New Sale | Terrace House | 41 NORMANTON PARK |
| NORMANTON PARK | $3,160,000 | 2110 | $1,498 | 22 Nov 2021 | New Sale | Terrace House | 43 NORMANTON PARK |
| NORMANTON PARK | $3,150,000 | 2110 | $1,493 | 20 Nov 2021 | New Sale | Terrace House | 35 NORMANTON PARK |
Leedon Green is an upmarket District 10 condo, so the decision to include some landed units is quite reasonable. These are two-storey units, with high ceilings above the living and dining area. Note that there are just 5 of these units, and given that Leedon Green took a while to sell — these units were snapped up quickly in early 2020 just a few months after its launch.
The layout of the landed units has quite a bit of foresight: two of the bedrooms, along with the master bedroom, are on the lower floor. This is great for older residents, as it means they don't have to contend with the stairs to get to the bedroom. The upper floor bedroom is the junior master bedroom instead, with a family area; a good setup for young couples still living with parents.
There's also a balcony on the second floor (but if views from a balcony are your thing, why not pick the regular condo units that are way higher up?)
The master bedroom also includes a walk-in wardrobe, and the unit features both a wet and dry kitchen with a service yard.
A big selling point of Leedon Green is its proximity to Holland V. We wouldn’t call it walking distance unless you’re quite the hiker, but the buses outside take you there in mere minutes. The location is just far enough from the hub of Holland V to maintain quiet, but near enough to be convenient.
Still though, there isn’t much in the immediate surroundings of Leedon Green (it’s mostly just more private residences), so you do need to head out to Holland V for your fun.
Also note that for postal codes 266075 to 266076 in Leedon Green, there are no schools within the one-kilometre enrolment distance. The rest of the project, though, is within one kilometre of Nanyang Primary. Do be aware of it when picking your unit.
| Project Name | Transacted Price ($) | Area (SQFT) | Unit Price ($ PSF) | Sale Date | Tenure | Property Type | Address |
| LEEDON GREEN | $6,543,000 | 2680 | $2,441 | 6-Apr-20 | Freehold | Condominium | 26 LEEDON HEIGHTS #01-07 |
| LEEDON GREEN | $6,277,700 | 2594 | $2,420 | 12-Jan-20 | Freehold | Condominium | 36 LEEDON HEIGHTS #01-44 |
| LEEDON GREEN | $6,039,600 | 2433 | $2,483 | 12-Jan-20 | Freehold | Condominium | 38 LEEDON HEIGHTS #01-53 |
| LEEDON GREEN | $6,018,300 | 2411 | $2,496 | 10-Jan-20 | Freehold | Condominium | 38 LEEDON HEIGHTS #01-52 |
| LEEDON GREEN | $6,165,200 | 2400 | $2,568 | 12-Jan-20 | Freehold | Condominium | 36 LEEDON HEIGHTS #01-49 |
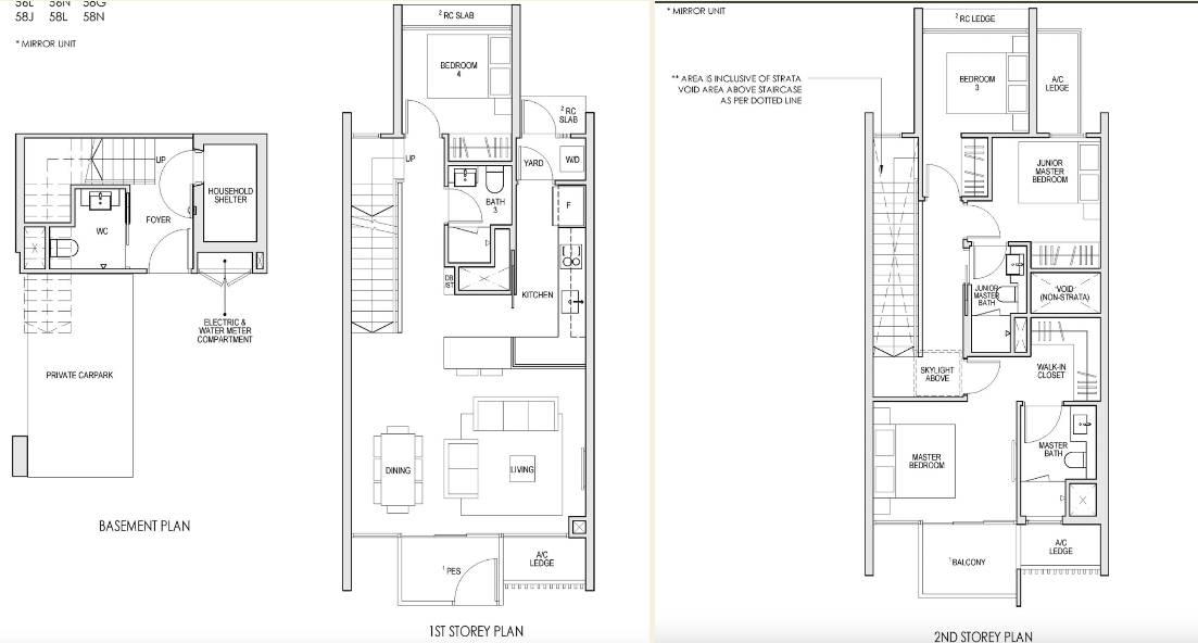
Kent Ridge Hill is one of the newest projects in the Pasir Panjang area, reaching TOP in 2023 last year. This part of Pasir Panjang is mainly a low-density area (hence this condo only goes up to five storeys), and its landed units are quite fitting for the enclave.
The landed units have an additional private space in front of the entrance, which is nice if you like a deck or patio. On the ground floor, you don't get a separate wet and dry kitchen, but just one sizeable kitchen space with a service yard. There's only one bedroom on the ground floor though, so if multiple family members have mobility issues that could be challenging.
The second floor has the master bedroom (and an adjoining junior master) with a balcony, and there's a skylight near the stairs. The master bedroom also comes with a walk-in wardrobe. The basement only has one car lot, but there's a small foyer and a toilet, so you can have a little bit of "man cave" space here.
To be blunt, even with Pasir Panjang MRT station (CCL) within walking distance, this is not the most exciting location. There’s not much beyond other private residences nearby, and even schools are quite hard to get to from here; there’s none within one kilometre. But that may be the point.
To people who like landed enclaves (and we presume this might be why you’d buy a landed unit in a condo here), the relative isolation here is a feature, not a bug. The area is quiet with low traffic, and extremely private. And if you want a landed home while still having a pool, 24-hour security, and exterior maintenance managed for you, then you’re the demographic this project is catered to.
| Project Name | Transacted Price ($) | Area (SQFT) | Unit Price ($ PSF) | Sale Date | Type of Sale | Property Type | Address |
| KENT RIDGE HILL RESIDENCES | $3,478,000 | 2067 | $1,683 | 29 Jan 2024 | Sub Sale | Terrace House | 58E SOUTH BUONA VISTA ROAD |
| KENT RIDGE HILL RESIDENCES | $3,265,860 | 2067 | $1,580 | 10 Nov 2022 | New Sale | Terrace House | 56F SOUTH BUONA VISTA ROAD |
| KENT RIDGE HILL RESIDENCES | $3,398,250 | 2067 | $1,644 | 14 Aug 2022 | New Sale | Terrace House | 56B SOUTH BUONA VISTA ROAD |
| KENT RIDGE HILL RESIDENCES | $2,840,050 | 1830 | $1,552 | 30 Jul 2022 | New Sale | Terrace House | 60 SOUTH BUONA VISTA ROAD |
| KENT RIDGE HILL RESIDENCES | $2,833,158 | 1830 | $1,548 | 20 Jul 2022 | New Sale | Terrace House | 56J SOUTH BUONA VISTA ROAD |
Parc Clematis is a mega-development in Clementi, and like all mega-developments that means a ton of space. At around 633,644 sq ft there's definitely room for a few landed houses. To be precise, eight terrace houses, four corner houses, and eight bungalows.
The bungalow unit comes with gardening spaces that span two faces of the house, interrupted by a Private Enclosed Space (PES) that you can use as a patio.
The living and dining areas also have an attached powder room: this is quite an overlooked feature, which spares you from having to open up en-suite bathrooms (and hence the bedrooms they're attached to) to guests. There's a wet and dry kitchen across from each other, and the dry kitchen opens up to the living room which helps with hosting.
A junior master bedroom on the ground floor could make it comfortable enough for an older couple to keep to this floor, sparing them the stairs. The other bedrooms are on the second floor with the family room.
Parc Clematis gave over 60 per cent of its land area to common facilities, which means around 400,000 sq ft of common facilities. It's practically an entire estate unto itself. It has, for instance, three lap pools in addition to the large central lagoon, as well as multiple clubhouses. Even though Treasure at Tampines is Singapore's largest condo, Parc Clematis is a common yardstick by which other big developments are measured.
Parc Clematis is also quite close to the hub of Clementi — just grab a bus service like 154 or 196 outside, and you'll be at Clementi MRT (EWL) in a few minutes. This is also where Clementi Mall is located, and being one of the bigger heartland malls, you can probably find whatever you need.
| Project Name | Transacted Price ($) | Area (SQFT) | Unit Price ($ PSF) | Sale Date | Type of Sale | Property Type | Address |
| PARC CLEMATIS | $4,480,000 | 3466 | $1,293 | 26 May 2022 | New Sale | Terrace House | 2F JALAN LEMPENG |
| PARC CLEMATIS | $3,730,000 | 3466 | $1,076 | 25 Apr 2022 | New Sale | Terrace House | 2L JALAN LEMPENG |
| PARC CLEMATIS | $4,018,000 | 3832 | $1,049 | 28 Oct 2020 | New Sale | Detached House | 10 JALAN LEMPENG |
| PARC CLEMATIS | $3,998,888 | 3832 | $1,044 | 9 Sept 2020 | New Sale | Detached House | 12 JALAN LEMPENG |
| PARC CLEMATIS | $2,837,888 | 2659 | $1,067 | 28 Jun 2020 | New Sale | Terrace House | 2K JALAN LEMPENG |
Another mega-development with the space to offer landed units, Riverfront Residences has 21 terrace houses. This was formerly the site of Rio Casa, a longtime HUDC estate, so there's a good number of nearby HDB estates; and a landed home in this area can be quite a differentiator.
The landed units here don't separate wet and dry kitchens, but you do get a decently sized kitchen with a service yard. There is a bedroom on the ground floor for family members who struggle with the stairs, but some might question if the corridor running to it is space-efficient.
The master bedroom and the other two bedrooms are on the second floor, and there's a walk-in wardrobe for the master bedroom. There's also a balcony on the second floor, which could be nice if you're getting the breeze from the Serangoon River stretch.
The basement includes a powder room, for any guests to duck down into during parties or events; and there is an attached porch for the family car.
Riverfront Residences is nicely positioned between the HDB enclaves of Hougang, and the relative quiet of the Serangoon River/Serangoon Park Connector. While this area doesn’t boast big malls or major entertainment outlets (barring the outdoors type), it is very convenient because of the HDB heartland amenities – which include a good number of supermarkets.
Schools are also a highlight here, with CHIJ Our Lady of the Nativity and Holy Innocents both being within walking distance. But really, the main highlight is being close to the Serangoon River/Park Connector, which is a favourite stretch for cyclists, joggers, long walkers, etc. This is mainly a quiet and serene family spot.
Accessibility is so-so, as you can’t walk daily to the nearest MRT station (Hougang MRT on the NEL and CRL); but it’s only around three bus stops, so to some people that may not be so bad.
| Project Name | Transacted Price ($) | Area (SQFT) | Unit Price ($ PSF) | Sale Date | Type of Sale | Property Type | Address |
| RIVERFRONT RESIDENCES | $3,010,000 | 2110 | $1,427 | 17 May 2023 | New Sale | Terrace House | 99 HOUGANG AVENUE 7 |
| RIVERFRONT RESIDENCES | $2,928,000 | 2110 | $1,388 | 22 Jul 2022 | Sub Sale | Terrace House | 59 HOUGANG AVENUE 7 |
| RIVERFRONT RESIDENCES | $2,364,075 | 2110 | $1,121 | 2 Jun 2022 | New Sale | Terrace House | 65 HOUGANG AVENUE 7 |
| RIVERFRONT RESIDENCES | $2,317,663 | 2110 | $1,099 | 16 Mar 2022 | New Sale | Terrace House | 85 HOUGANG AVENUE 7 |
| RIVERFRONT RESIDENCES | $2,410,487 | 2110 | $1,143 | 23 Dec 2021 | New Sale | Terrace House | 95 HOUGANG AVENUE 7 |
ALSO READ: Where to find the biggest and cheapest HDB flats in 2024 (from $690k)
This article was first published in Stackedhomes.