Have condo layouts in Singapore gotten better or worse over time?

The land-sales cycle refers to Government Land Sales (GLS), where residential land is sold to private developers.
This creates some loosely defined "cycles" with similar characteristics: that is, "batches" of condos that were built on GLS land released in certain time periods, which were influenced by the same market trends, policies, and wider economy. What's also interesting, however, is the way condo layouts have gradually grown more efficient (although smaller, of course) over each land cycle. Here's how:
These were volatile times, as the economy was booming just before the Global Financial Crisis (GFC) of '08/09. For example, in the run-up to the crisis, the Property Price Index (PPI) for residential homes surged 36 per cent from end-2006 to Q2 2008.
(Note: The information is very old, so if you want to look, it will mainly come from scattered and archived reports for the era.)
During this era, there was a strong interest in luxury waterfront condos; and one of the features they tended to share were long balconies which could take full advantage of the view.
The Sail @ Marina Bay, for instance, was completed in 2008, and one of the selling points was the long unit balconies taking advantage of the sea view. Reflections @ Keppel Bay was also launched in 2007 (though it wouldn't TOP until 2011); this condo was also heavily sold on a luxury waterfront living concept; and Marina Bay Residences had been launched a year earlier (to TOP in 2010).
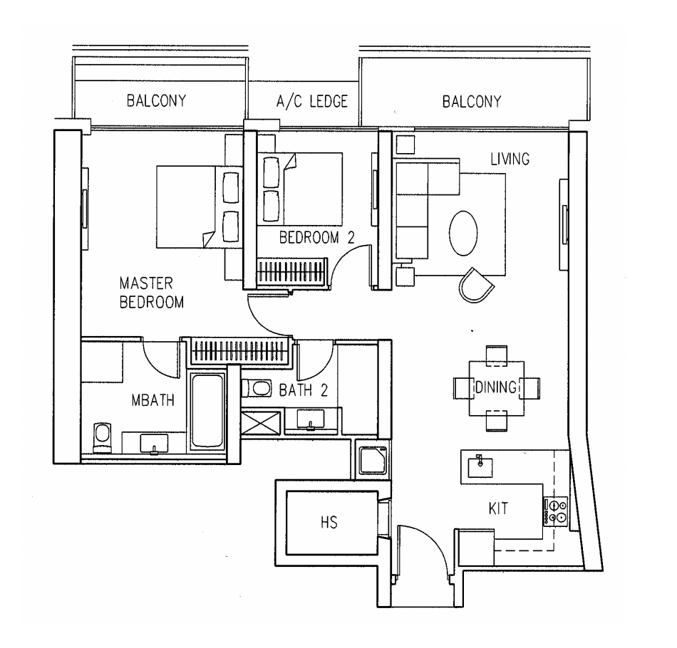
For Marina Bay Residences, even the one and two-bedder layouts featured fairly large balconies (today that might be considered space-wasting, for such compact units).
As an interesting aside, Reflections @ Keppel Bay is one of the last major projects we know of to include layouts with heavily curved surfaces. This is unpopular today, as it's challenging to accommodate in interior design. It tends to require more custom work, and few types of furniture are designed to fit such spaces.
Balconies in this era could be very large relative to a unit's internal space. In projects like Soleil@Sinaran (launched in 2007, TOP in 2011), you'll see some large balcony spaces that might irk buyers today. This was usually an attempt by developers to maximise the square footage they could sell to you.
Luxury aside, even mass-market condos from this generation tend to be bigger. The Parc Condominium, for example, is in West Coast Walk (District 5).
It launched in 2007 as just a mass-market project; but its one-bedders range from 667 to 904 sq ft, while its three-bedders range from 1,302 sq ft to 2,239 sq ft.
We don't think a contemporary buyer would be happy with some of the layouts though. An example would be the sheer size of the Private Enclosed Space (PES) of a ground-floor three-bedder, which is further compounded by a bay window. So much so that a 3-bedder sized at 1,819 sq ft can have a common bedroom only fit a single bed.
Casa Merah, launched in 2006, has two-bedders that start from 926 sq ft. But the layout (Type A-25) would be frowned upon today: despite the size, it has a wasted corridor space, and a balcony and planter box. Contemporary buyers might baulk at the quantum for such a large unit, which has only two bedrooms.
So this period had very large units by sheet square footage, but with little real focus on efficiency. If you want a luxury sea-view condo with panoramic views or a huge balcony though, this land-cycle seems to have been our Miami moment.
The GFC sent investors fleeing into safe-haven assets like Singapore property, which caused prices to surge in residential real estate.
One of the trends that caught on was the shoebox trend: many who wanted to invest in property, but were low on capital, instead chose to buy one-bedder "shoebox" units to rent out.
The first manifestation of ABSD, in 2011, was so weak it was only three per cent (!) for Singapore Citizens buying their third and subsequent residence. So there was minimal deterrence to those buying low-quantum (shoebox) second properties.
The shoebox craze got so bad that URA had to pass restrictions, to control the number of such units entering the market. Even so, the surge in shoebox units had caused certain advances in spatial efficiency, as more developers competed to create better and more versatile one-bedder spaces.
Also of interest in this land-cycle was the rise of dual-key units. The first of these units came at the tail-end of the last cycle, with the launch of Caspian (2009). But between 2010 to 2013, we began to see a lot more in the way of such units.
8@Woodleigh, Riversound Residence, The Minton, My Manhattan, and several other condos launched during this period had dual-key units, making it a trend for a time.
As an example of efficiency, we start to see the first dumbbell-like layouts appear, minimising the need for corridor space. Eight Riversuites' Type B1 two-bedders, for instance, have two bedrooms connected by the living/dining area, rather than with a corridor.
At the time, this could be considered novel because — in previous eras — most homes still clustered all the bedrooms to one side, and other more "social spaces" to another.
For example, Urban Suites (also from this era) is a good example of that, with the B4m layouts putting the bedrooms adjacent to each other, and the kitchen, living room, etc. to another. L'viv had many layouts — like the B3 2+Study unit — which shows the mentality of "bedrooms on one side, social spaces on the other."
Dumbbell layouts tend to place two bedrooms on opposite sides of the living/dining area, however, thus running counter to this older arrangement.
We have been told — though we can't prove — that bedrooms began shrinking during this land-cycle. Supposedly, bedrooms during this period shrunk to the point where many couldn't accommodate queen-sized beds anymore.
By this point, condo unit sizes had clearly shrunk from the previous decade. Consider High Park Residences (launched 2015), which had two-bedder units at under 600 sq ft. The 2C2 layout here (just 581 sq ft) has a clear dumbbell layout, with bedrooms on either side of the living/dining area.
We see a similar consideration in Sturdee Residences (launched 2016), where the B1 layout — another two-bedder at just 570 sq ft — applies the same dumbbell layout. We're also told (but haven't been able to confirm) that part of the marketing involved movable partitions, to merge or divide living spaces.
This was also the era where more developers started to offer built-in furniture solutions, such as movable kitchen islands that could double as dining tables.
As an aside, this was a bit of a "lost era" for the new launch segment, as the market was reeling from one cooling measure after another; and those who bought in this era would likely have bought cheaper.
The current post-Covid era: GFA harmonisation
The whole "five-year" cycle was thrown into a bit of chaos after Covid. All of the properties bought during the 2017 en-bloc fever have been redeveloped and sold by around 2022, which should have started a big rush. However, developers are much more cautious, to the point of the government rejecting weak land bids.
In terms of layout, a big change came with the great GFA Harmonisation. As a quick summary, this means that certain unlivable spaces, such as air-con ledges and strata void spaces, are no longer factored into the total square footage.
This practically means there's no more incentive for developers to build giant ledges, balconies, or various Private Enclosed Spaces just to charge you as much as they possibly can.
'This has resulted in substantial changes to efficiency. Lentor Central Residences, an upcoming launch as we write this, has maintained the dumbbell layout for almost all of its compact units. This is coupled with minimal space wastage: air-con ledges won't count toward your costs, and there are no bay windows or planter boxes.
The problem is that, because air-con ledges and such spaces aren't added to the total square footage, the newer projects will appear pricier on a price psf basis. But check out our reviews of layouts of Elta or Parktown Residence, and you'll see there's much less in the way of excessively long corridors, planter boxes, etc. that make older layouts bigger but less efficient.
[[nid:714763]]
This article was first published in Stackedhomes.