How to identify a good 1-bedroom layout

Whether you are looking at a 1 bedroom unit for an investment or to stay, there’s no question that having an efficient layout is one of, if not the most important aspect to consider. Especially in the case of a new launch condo – at such small sizes already, it is even more crucial that every inch is utilised properly.
And while 1 bedroom units have been getting more efficient over the years, there are still many different points that you should look out for.
Take these two floor plans below for example, which do you think is a better use of space?
A 1 bedroom unit at Lincoln Suites at 463 square feet, or a 1 bedroom at Pullman Residences at the same 463 square feet?

For those of you who answered B, great job. If you’ve answered A, well, I’d advise you to read on.
Despite being the same size on paper, the unit at Lincoln Suites will undoubtedly feel smaller in person. That’s because of the excessive bay window and planters used (in addition to the balcony). As such even though it is the same size, you’d realise that the living and dining areas are smaller in size. The worse part? When guests come over you’d need to enter and walk through the bedroom to get to the bathroom!
Contrast this to the unit at Pullman Residences. High maintenance fees aside, it is just a much better laid out unit. You have a dedicated space for dining which can just about cater to 4 people, and a Jack & Jill bathroom layout just makes things much simpler for everyone.
So to me, a good 1 bedroom unit should tick some or rather most of these boxes:
Post-2012, we are seeing more efficient unit layouts with fewer bay windows and planter boxes which were common design traits prior. Here are some examples of what I consider to be good one bedroom unit layouts that you can find in the market today.
| Plus Points | Less Ideal |
| Squarish and efficient unit layout. | Tight dining area, alternatively, one could opt for al-fresco dining in the balcony area |
| Storage cabinets provided by the entrance | Lack of a bathroom window for natural ventilation |
| Good kitchen countertop length but it comes with a compromise of the tight dining area | |
| Decent sized bedroom with dedicated living and sleeping area | |
| Comes with a decent-sized study area with ventilation windows; great for WFH/HBL setting | |
| The study could be converted into a guest room as it is able to accommodate a single-size bed or even a fold away sofa bed | |
| Small AC ledge tucked neatly next to the balcony. This allows for full-length bedroom windows |
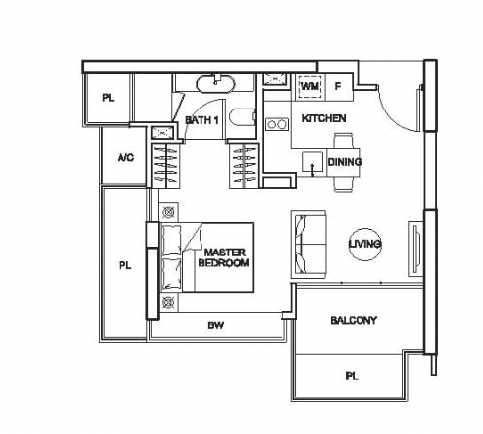
| Plus Points | Less Ideal |
| Squarish and efficient unit layout | Narrow balcony – dedicated washer area in the balcony makes the area smaller |
| Storage cabinets provided by the entrance | Tight living and dining area |
| The in-unit household shelter could be used as storage space | AC ledge limits the view of the bedroom, leaving it with half-length windows |
| The study could be converted into a guest room as it is able to accommodate a single-size bed/sofa bed | The kitchen is on the small side |
In the late through the early 2010s, we have also seen compact shoebox units with bay windows/planter boxes as one of the common design traits during the era – which has resulted in less than desirable layouts.
| Plus Points | Less Ideal |
| Dedicated study area with ventilation windows and door | Tight living, dining, and kitchen areas |
| Neatly flushed wardrobe, which is a good size | Narrow balcony area |
| In-unit household shelter; great for storage | Double AC Ledges take up space |
| The bathroom comes with ventilation windows; great for natural ventilation | Location of the bathroom is not as ideal |
| Plus Points | Less Ideal |
| Separate living and sleeping areas with sliding doors separating the two areas. | Very small unit area |
| Great wardrobe space | Bay windows take up space and hinder space planning |
| A good number of window panels surrounding the unit; allows for more natural light and ventilation in the unit. | The platform bed has to be built over bay windows to be able to fit in a bed |
| Narrow living area | |
| Small kitchen space with a lack of countertop space |
| Plus Points | Less Ideal |
| Good sized kitchen with countertop space | A completely open-plan layout, may not be ideal for everyone |
| Spacious bedroom area | Overly large planter and bay window which takes up space |
| A small AC ledge tucked by the study area | |
| May not be the largest study area but at least it is a useable area. |
| Plus Points | Less Ideal |
| Proper yard area for laundry – a rarity in one bedder units | Planter boxes and balcony area takes up space |
| Decent length of kitchen countertop space which doubles as a dining area too. | Tight living and dining area |
| The bathroom comes with ventilation windows; great for natural ventilation |
In early 2000-2010, One bedder is spacious in terms of square footage. However, layouts are less efficient with bay windows, planter boxes, and odd layouts. All in all, less efficient. Here are some examples:
| Plus Points | Less Ideal |
| Spacious unit size for a one bedder unit. | Wasted bay window space surrounding the perimetre of the unit |
| Squarish unit layout | The unit opens straight to the living/dining area; lacks privacy |
| The in-unit household shelter which doubles as storage space and wardrobe | Protruding structural columns by the window bay hinders the view and takes up space |
| Neatly tucked A/c ledge hidden by the entrance area with window panel for access | With the bathroom located in the bedroom, guests have to pass through the bedroom for access to the bathroom |
| Great size kitchen with ample countertop space | The kitchen area lacks a ventilation window |
| The bathroom comes with proper window panels; great for natural ventilation | Lack of balcony area, a downside for those that value some outdoor space |
| Plus Points | Less Ideal |
| Squarish unit layout | Tight dining area |
| Dedicated study area which is a good size | Bay windows and planter box takes up space |
| Ventilation window for the kitchen | |
| Window panels in the bathroom which are great for natural ventilation | |
| Small AC ledge neatly tucked by the study area. |
When all is said and done, you really do have to go beyond just looking at the floor plan. As much as floor plans are useful to compare between units, going down to see the unit can often result in a different experience.
This is because floor plans don’t disclose features like ceiling heights, the size of the windows, the views and light that comes in, as well as the design and colours of the space – which can all play a part in making the space feel bigger or smaller.
This article was first published in Stackedhomes.