I've lived at The Brownstone EC for 4 years - here's what it's like to stay in this family executive condominium


Even today, there are some people that feel that Canberra is just too far away a location to consider.
And so can you imagine back in 2015 (when the details of the upcoming Bukit Canberra were not even announced yet), how much harder it must have been to convince those who live outside the area to consider a project in this area?
If anything, these new launches would have to work even harder to attract homeowners. At The Brownstone Executive Condominium (EC), that was what they did.
While swimming pools and function rooms are already a standard in development, this EC also has a junior skating rink and a sky BBQ to boot.
Perhaps the biggest attraction of all is that it’s nearly right next to Canberra MRT station. For those of you who know the EC market, it’s rare to find an EC located so close to an MRT station.
While all these factors are important when choosing a home, the entire living experience is an underrated point that may be overlooked. This includes elements such as the unit you’ll stay at, the common areas and the community you’ll be interacting with.
To get a better feel of what it’s like to be living at The Brownstone, we’ll be sharing with you this week an owner’s personal review of living in this Executive Condominium.
Jennie (*not her real name for privacy reasons) and her husband have been living in their 3-bedroom unit at The Brownstone EC for over four years now. She said it’s their first matrimonial home.
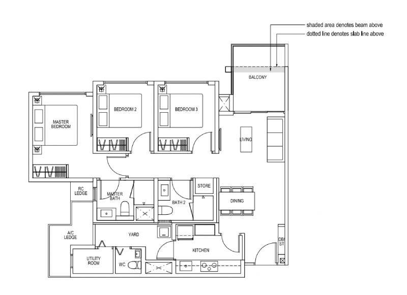
She knew that they wanted a unit with three bedrooms. Practicality was a concern too, and having a proper yard area with a dedicated utility/store was important as she doesn’t like using a dryer.
They also didn’t want to clutter the main parts of their home with essential things.
And since they didn’t have a car when they first got married, being close to an MRT station was another key criteria.
For Jennie and her husband, The Brownstone had a contender when they were still looking for an EC. The Visionaire (which is right next to The Brownstone) was going to be launching soon.
“We had to decide whether to quickly pick our desired unit at The Brownstone, or wait literally for a week or two for Visionaire so we could view their showrooms and choose between projects,” Jennie said.
However, she said she managed to find some early previews (online leaks) of the Visionaire floor plans.
“I pretty much ruled them out immediately as I did not like the layouts of their 3-bedroom standard and premium units at all.” She added that the layouts of Visionaire are less sensible and useable, and for some reason, the dining area seemed more like an afterthought.
Visionaire did some heavy marketing about being the first “smart home” EC. But the couple discovered that the “smart” aspects offered were rudimentary at best. Also, they didn’t want to pay any potential premium for features they didn’t consider necessary.
And so they booked their unit at The Brownstone within a week of first viewing its show flat.
Jennie said that their parents were all taken by surprise. “We had been viewing resale properties for almost a year before that!”
While the couple did not successfully apply for a BTO, they eventually hit the income ceiling for one. As such, they started off their home search with resale HDBs, hoping they could move in soon after their wedding.
However, they weren’t able to find any unit they liked. Plus, Jennie said the prices were getting quite high back then for HDBs in locations closer to town.
Eventually, their agent suggested that they consider The Brownstone EC as there were still a good number of units left. It’s also extremely near a then-soon-to-be-operational MRT station – Canberra Station.
Their agent said that while it is further away from town, it’s still a newly-launched EC after all. It would put the couple in a better position financially should they decide to sell after the MOP is up.
If they went ahead with a resale HDB, they could end up losing money as it was unlikely those HDBs would appreciate much further.
Also, it would be their last chance to buy a new launch EC as they were close to hitting the income ceiling for ECs then.
As such with all condo units being smaller now, it was really important for them that their home had a good layout. They felt that the three-bedroom premium layout offered in The Brownstone is very sensible and usable. It had proper spaces for everything they needed in a home.
They did have to wait for almost two years after their wedding to move in. Then it took another year for Canberra Station to be operational. “But in hindsight, I do think the initial inconvenience was worth it,” Jennie said.
Now let’s get into the details of the lifestyle at The Brownstone EC. We asked Jennie what their typical weekday and weekend routine looks like.
She shared that on weekdays, she would drop her child off at preschool, drive off to a nearby mall or cafe, and have breakfast or pick up coffee. She would also do a quick shop for their household.
If they need household wares, they will head to Sembawang Shopping Centre, where there is a Mr DIY, ValueDollar, Daiso, and a large Giant.
For grocery shopping, she would head to Northpoint or Canberra Plaza (next to the MRT). There are NTUCs and great coffee options in the place as well, including Aroma Coffee and Foreword Coffee, respectively.
Jennie works from home, so she can go out for lunch at any of the malls nearby. She can take the MRT, eat lunch, and get back all within an hour. “This really helps me ensure that I take my lunch break and get a bit of a change of environment instead of being stuck at home working all day,” she added.
On weekends, their family would actually avoid the malls nearby because they would be crowded. Instead, they would go to Seletar Aerospace Park, which offers several great cafes and a fun playground for their child. They also regularly go to Punggol Settlement and Punggol East – both having great options for nature walks and food.
They also frequent Sembawang Park with its waterfront restaurant Beaulieu House, Springleaf Nature Park with its homely Lowe’f Shack, and Admiralty Park. All of which is just a 5-minute, 10-minute, and 15-minute drive, respectively.
“I just bought an annual pass to Mandai Wildlife Reserve,” Jennie said. “Visiting the Zoo or River Wonders, which takes about 18 mins drive, has become part of our regular programming."
She said no weekend is complete for them without a swim. So they would squeeze in a swim session downstairs before heading to their parents’ place for dinner.
As much as they’ve liked staying at The Brownstown so far, they do have some drawbacks that are worth highlighting.
Jennie said that since they’re near Sembawang Air Base, helicopters often fly near them – especially in the months leading up to National Day. “I’ve gotten used to it, but it’s unfortunately still a noise you’d get distracted by from time to time.”
While The Brownstone has the usual facilities, it only has one playground on the roof of a multi-story car park. She said that for a development of this size, she wished there was at least one more playground on the ground floor.
“Thankfully, the number of pools we have here is six, which makes up for it – especially for my water baby.”
Jennie also expressed some minor points of improvement for the management.
“Our management agent and management council are rather strict,” she shared. “I guess this is good news for some people, but I wasn’t too happy filling our extensive forms with too many questions just to engage a swimming coach for my child.”
She also highlighted that during the pandemic, they decided to close the gym and other facilities for longer than the authorities required. “I get that the intentions are good, and they wanted to keep the community safe. However, I had rather they left it to residents to decide how best they wanted to keep their families safe.”
On the bright side, the management council is quite active, as well as the management agent (Knight Frank) responsive.
She recalled issues with their side gate being accidentally left open. The management responded, and they installed an auto-close mechanism promptly.
Some of the smaller pools also get mud flowing into them during heavy rains due to the design. But usually, it gets cleared by the next day. And for less than $300 a month for her 3-bedroom unit, Jennie is glad to say that the facilities are all well-maintained.
If you’re planning to get a unit here at The Brownstone EC, there are some interesting details Jennie shared.
The facilities are spread out across four main areas. One is on the rooftop car park, so it never feels crowded, even on weekends.
When it comes to pools, there are two made for adults, which are 1.2 metres deep. One is a full-length 50-metre pool, while the other is 30 metres. Both are wide and rectangular, which more serious swimmers will appreciate.
“There’s no need to swim around curves or people playing along the pool edge,” she added.
Unlike some other condos, lower floor units in most parts of this development feel more pleasant to live in. Why? The 5-storey car park shields the sound coming from the MRT, which is louder on the higher floors.
For those of you always wondering if the developer’s marketing actually works you’d be happy to know this: “CDL’s plan of using the multi-storey car park (with plants/vines on the exterior) as a noise barrier actually does work,” Jennie shared.
Furthermore, the BBQ pits are located on the car park rooftop, which means smoke wafts upwards.
Also, the alternating balcony lengths offer a style for everyone. Her husband loves their protruding balcony because it gives him space to chill with his drink. On the other hand, neighbours with shorter ones (especially those without a yard) have a good shelter for their laundry and balcony furniture.
And while it may seem insignificant to some, Jennie wanted to highlight the wide selection of F&B offered on delivery apps. It made their lives a lot better, especially during the pandemic. They don’t only have access to food from the nearby malls, but they could also order from the satellite kitchens at Gambas, eateries along Sembawang road, and multiple malls in Woodlands.
“Not something I considered when purchasing our property, but definitely something I appreciate when living here,” she shared.
Finally, Jennie wanted to give a special mention to the security guards, cleaners and gardeners, as they’ve all been “really friendly, and they’ve always greeted us with big smiles.”
Jennie said that among her favourite parts about staying at The Brownstone EC is its proximity to Canberra MRT station.
The 3-minute walk to get to the MRT station is entirely sheltered, which is a huge bonus. It takes her less than 30 minutes by train to Orchard and 45 minutes to City Hall. “I don’t feel as bad knowing that it’s such a short walk for my mom when she takes the MRT to come over to help me with my child.”
And this convenience is what she believes in, busting the urban myth about the area being “ulu.” She said the area is actually extremely convenient and liveable.
“I do love how quiet and peaceful it is here within The Brownstone.”
The main entrance faces a large path of open grassy land (although you should know this is zoned residential in the URA Master Plan) and landed homes beyond that. In addition, the windows and balcony door are quite soundproof.
They do also really like the overall design of the development, as the landscaping and facilities on the ground floor are all relatively level and flat.
While others may find it boring, Jennie said she loves how it’s simple and not over-designed. From a practical point of view, this makes the entire grounds much more accessible for strollers, wheelchairs, and kids.
To conclude, Jennie had this to share:
“The Brownstone and my 3BR Premium unit, in particular, are extremely liveable. I would not have any issues staying here for the next decade or more as we grow our little family. The primary school options here are plentiful and very decent too!”
This article was first published in Stackedhomes.