South Beach Residences review: Great location and ultimate views

If you are looking for a luxury condo in this part of town, this is an underrated development with a great view.
| Project: | South Beach Residences |
|---|---|
| District: | 03 |
| Address: | 38 Beach Road |
| Tenure: | 99-year Leasehold |
| No. of Units: | 190 |
| Site Area: | 376,299 sqft |
| Developer: | City Development Limited (CDL) |
| TOP: | 2016 |
Heading down Nicoll Highway past the unmistakable Esplanade, not many might know that behind this unique ‘wave-shaped building’ is actually a 5-star hotel hotel, top-end commercial space and ultra-luxury residence – all intertwined into a singular elite lifestyle hub.
Home to the world’s first beer-infusion lab and a host of other dining curiosities, you’ll find this area to be worth an entire Sunday’s exploration (and more).
From the get-go, tip-top transport convenience and panoramic residential sky decks on the 22nd and 32nd floor of the residence vaguely hint at the price premiums that tenants/owners fork out for a unit here.
For those wondering, 2-bedroom unit rentals alone go at the barest minimum of $7000/month – naturally backed by some of the best views of Singapore’s city (and water) scape.
In a sense, you could say that you’re located in the CBD area, but without the suffocating perimeter of high-rise buildings around you – courtesy of adjacent low-landed areas – ie. the Japanese War Memorial Park, Raffles Singapore and the Suntec Singapore Convention & Exhibition Centre.
Some extra bonuses of the place include the amount of eateries and commercial spaces in the area, as well as proximity to well-known hangout spots like Gardens by the Bay, Singapore River and potentially the East Coast Park (direct highway at your doorstep).
As always, we’ve got plenty of pictures coming up, so keep scrolling!
It’s safe to say that the South Beach Residences is one of the more imposing buildings in the immediate vicinity. It is designed by world renowned Foster + Partners, which are the brains behind other iconic projects like the Apple Park, HSBC Building in Hong Kong, and the London City Hall among many others.
But that’s also not entirely fair to its surroundings – after all, many of them have been around since the 90s, so really, it didn’t require too much to upstage everyone else.
You don’t get too many developments in Singapore sharing grounds with a hotel ( Boulevard 88 is an upcoming one) so for the fortunate few who are able to afford such luxuries – you are definitely in rarefied company. In the case of South Beach Residences, it sits atop the 5-star JW Marriott Hotel.
For those of you less familiar with the hotel chain, the JW Marriott brand is the highest amongst its other offerings. I can’t say the same for everyone, but for me that bit of premium feel about the hotel does rub off to the residences as well.
There are two lobbies here, so two dedicated drop-off points with a water fountain in the middle. With just 190 exclusive units, the arrival area is absolutely massive when you take that into consideration.
Stepping into the lift lobby for the first time, you are greeted by a high-ceiling concierge desk area, with a very courteous concierge staff to receive you as you return home. If their aim was to replicate the feel of a high-end hotel, I’d say by and large they have succeeded here.
And if you are wondering, yes, being next to JW Marriott does have benefits, with privileges there extended to residents of South Beach Residences as well.
There are two lift lobbies here, one is the common lift and the other the private lift lobby. You might have noticed by now the quirky nature of the design of the place. It is somewhat reminiscent of what a W Hotel would look like, outlandish and and funky looking. It may not be everyone’s cup of tea but it certainly stands out from the norm.
And you aren’t going to be able to tell from the photo, but the scent they’ve used here is quite invigorating.
As this is a city development, those who are looking for facilities like a tennis or basketball court should probably start looking elsewhere because you aren’t going to find that here.
Because despite the total land size of 376,299 square feet of land you are really relegated to only the residential tower itself. Naturally, this means that the facilities will have to be constrained within the building.
So you have two facilities deck (named Sky Gardens) here, one on Level 22, and the other on Level 32.
This above is the outdoor gym area, which overlooks the pool lounging deck. It isn’t the best location for it in my opinion as I think it would have been much better served facing the views – mainly because the views here are truly phenomenal (which you’ll see later).
Also most people would have to walk by here to get to the pool, so not everyone would enjoy having onlookers as they are furiously exercising away – it never is a glamorous look.
The gym is a decent size, and offers the usual mix of aerobic and strength training equipment. You don’t really have space for any work on an exercise mat, but I suppose that’s what the outdoor deck is for.
Like the outdoor gym, this gym sadly doesn’t take advantage of the views, and it really is a recurring problem for some of the facilities here. Because they are tucked into the centre of the building, it does get quite dark – more so on a gloomy day. In fact even on a bright sunny day it can feel a little dim in here.
On the way to the swimming pool you’ll pass by a counter with bar seating – named the Outdoor Function area. There is actually quite a fair bit of space here, but because it doubles up as the walkway to the pool (although you can go by the other side), it isn’t as private as most would want for their gatherings.
Although you do have 2 function rooms behind that can be opened up via the folding glass doors to combine with the outdoor space (which does make more sense). These come with an attached kitchenette as well, so that makes things more convenient.
Again, because it is set further into the centre of the building, some people might find it quite dark even during the day.
Before getting to the swimming pool, you’ll find a line of cushioned (and colourful) deck chairs.
Personally for me, they are placed a little too close for comfort to each other. I don’t reckon they’d be used much in any case – you aren’t going to be getting much sun here.
It is also positioned quite awkwardly, as it faces the pool deck rather than the pool or the views instead.
You might have seen it pop up on your social media feeds as the pool at JW Marriott features much of the same design. It certainly lives up to expectations though, as the swimming pool at South Beach Residences is a thing of beauty. And I daresay even more so at night with the twinkling lights from the cityscape.
It isn’t very big though, and suffers from the same issues most covered pools face – the waters can get very cold. Unless you are looking to “ shock your body to happiness ” in the morning, I don’t think too many people would be actually swimming here. It’s really more for a chill out session to take in the views type of pool.
A heated pool here would definitely have made it much more practical but that maintenance cost would be hard to justify.
At the end of the swimming pool is the shallow wading section – presumably for younger children. That said, there is definitely a dearth of children-related facilities here which isn’t too surprising as I don’t see families with young children as the target demographic for South Beach Residences at all.
Perpendicular to the swimming pool is a series of lounge seatings with a view towards the Suntec area.
I can attest that the armchairs aren’t the most comfortable places to sit, but those L-shaped lounges are spot on. Plus I would wrangle that the views here are better than the one of the Singapore city skyline. It’s been a fair few years since Marina Bay Sands was built but that architecture just looks absolutely iconic.
Lounging here on a windy night is probably one of the perks of living at this address.
It’s also along these series of outdoor lounges that you’ll find a counter with refreshments such as ice water and the usual coffee/tea. This isn’t something that you’d usually find in most developments so it is easily a perk to take note of. Of course, you are paying for it with the high maintenance fees but that isn’t going to be an issue anyway for those that can afford the premium to stay here.
Coming one full circle, this area is named as the Pool Lounging Deck. For the sharp-eyed readers, you’d probably have realised this is the area that is located in front of the outdoor gym.
It looks to me that the chairs to go along with the table are missing, but even so, this is one of those facilities that I’d classify as “looks nice but no one is going to use”.
And with that, that’s a wrap for the level 22 Sky Garden, now let’s head up to the one at level 32.
Once you get out of the lift, you’d see an open area with a couple of seats. Strangely enough, this is named as the Interactive Playground in the site plan – so this must have been changed after the development was built.
Right next to it is the kids pool – which is really just a small rectangular pool with plastic figurines around it. Bear in mind some might find it unusable as this is even higher up – so if anything it would be even colder here. Nonetheless, I don’t expect this to be utilised much given the clientele.
Apparently this is supposed to be the Children’s Playground on the site map – which my mind is having trouble with the connection between chess pieces and kids. Even if it was designed for adults you’ll have a tough fight on your hands if you want to dissuade my opinion on the pointlessness of facilities such as these.
Up next is the Exercise Deck – basically an open, empty space. If I had it my way, I’ll probably move the outdoor fitness machines here too – it just seems less obstructive here.
And to be honest, the green shrubbery that you see lining the exterior of the Sky Garden is a bit of a double edged sword. So while it is always nice to see greenery, it does come at the expense of the views if you aren’t sitting above the height of it.
At the end, you are treated to the sight of that wonderful view of the Singapore skyline.
It’s a vantage point that you don’t often get to see from. The best part? You are pretty much guaranteed to enjoy the unblocked views from here on out – I sincerely doubt the War Memorial Park would ever be demolished.
Speaking of views, I do find it odd that the area with the arguably less important facilities is situated at the lower floor. Wouldn’t it have made more sense to give it the higher floor instead?
Especially since the higher you go, the better the views get.
Moving further across the width of the building, you get to an open area with a bright orange carpet. Again, I just find it so peculiar at some of the arrangements of the lounge chairs – why would it be facing inwards?
If you are wondering at the facing of it, it is pointed towards the Reading Room.
I do like the high-ceilings here but that fake library wallpaper is frankly quite a weird choice. It certainly sticks out like a sore thumb in a place that has ambitions of a luxury project.
That view is really a winner in my books. I think it’s also down to the fact that it is set further away from the city skyline, rather than being surrounded by a mass of buildings like you’d usually see from CBD condos.
Like the Sky Garden on the lower level, this side of the development is lined with couches and chairs to allow you to take in that MBS view.
It isn’t just regular seating, you do get a couple of dining spaces as well. That said, these furniture pieces do look quite cheap in my opinion, it does seem quite incongruous with its avant-garde surroundings.
Finally, there are outdoor dining facilities at the end. Again with how the site is laid out it doesn’t feel like a private spot so I won’t imagine that this would be utilised too much.
Unlike the 2 bedroom, the 3 bedroom unit comes with a private lift and lobby. Because of the generous 2,099 square feet of space, you are able to have both a wet and dry kitchen, which is great for families.
The entrance to this 3 bedroom unit is via your own private lift and lift lobby.
With the added space, you can have a nice sized island kitchen concept.

There is enough space for a circular dining table as well.
A quick shot of the living room.
There is a short corridor leading to the bedrooms.
Here is one of the common bedrooms.
And the other bedroom.
Both of which have to share a common toilet.
And now, for the master bedroom.
Of which the master bedroom toilet comes with space for a bathtub as well.

Now for the best part of the house, the nicely sized balcony which opens up to the city views.

Its a really nice space, and just a great way to relax after a hard and long day at work.
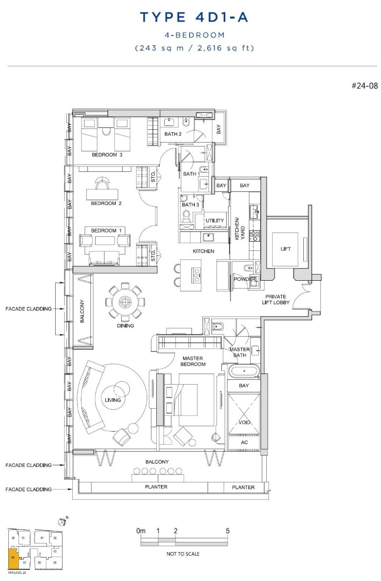
Of course, the 4 bedroom units also come with a private lift. In this particular showflat, 2 bedrooms were combined together to form a giant study room.
Entrance to the living room. With the curtains drawn and the floor to ceiling windows, it really accentuates the views.

The living room is nice and spacious, with enough space for this long circular sofa.
The dining area.

First, the master bedroom which is situated next to the living area in order to have a balcony space as well.
Of course, it comes with an attached bathroom.

There is enough space for a vanity area as well.
Likewise with the 3 bedroom, there is space for a wet and dry kitchen.



There is space for a helper’s room and even an attached toilet as well.
As we said earlier, this showflat combined two bedrooms into one study room.
If you can afford the space, it is an absolute palatial study room.


Here is the common bedroom, with a bay window for a little seating area.
There is an attached bathroom as well.
South Beach Residences is located along Beach Road and is on a really prime piece of real estate.
It is situated right next to Suntec City, which is a huge retail and shopping destination, along with Marina Square and Millenia Walk. Not to mention, adjacent to it is Raffles City, with Marina Bay Sands just a short walk away as well.
In short, when it comes to amenities and shopping nearby, it really does not get much better than this. The South Beach development consists of two towers, the North and South Tower. With the latter housing the South Beach Residences from the 23rd level to the 45th.
This means that even if you are looking at the bottom-most level of the development, you can expect to have really picturesque views of the Singapore city skyline.
The South tower is also facing the famous landmark, the War Memorial. Given that it is a heritage site, you can be sure that its status will be retained by the Government, and no further redevelopment will be done here.
(So residents facing this will always enjoy open views and no fear of any new development built to destroy that.)
South Beach Residences comes up tops when it comes to connectivity to the MRT. The Esplanade MRT station is directly located at the bottom of the development.
This MRT station links you to the Circle Line (CCL) which allows for easy access to places like Dhoby Ghaut, Macpherson, Serangoon and Holland Village.
For most developments, being conveniently located next to one MRT station is good enough, but not at South Beach Residences. Just a 5 minute walk away is City Hall MRT station, which is an interchange station between the North-South Line (NSL) and the East-West Line (EWL).
This means that you get easy connectivity to places like the CBD, Changi Airport and all the way to areas like Jurong East and Woodlands.
Finally, one of the attractive factors about buying a residential unit in an integrated development is the proximity to food (as we ascertained earlier). Even if you discount the options of all the shopping malls around, there are still plenty of dining options in the development.
| Grocery Shops | Distance From Condo (& Est. Walk Time) |
| Cold Storage – Raffles City Mall | 350m, 4-min walk |
| Marketplace (Jasons) – Raffles City Mall | 350m, 4-min walk |
| Fairprice Finest – Funan Mall | 850m, 11-min walk |
| Shopping Malls | Distance From Condo (& Est. Walk Time) |
| Esplanade Xchange | 170m, 3-min walk |
| Raffles City Shopping Centre | 400m, 5-min walk |
| Millenia Walk | 650m, 9-min walk |
| Suntec City | 600m, 9-min walk |
| Mustafa/City Square Mall | 2.9km, 11-min drive |
| Start of Orchard Road Shopping Belt (Delfi Orchard) | 5.9km, 15-min drive |
| Educational Tier | Names of Institutes |
| Preschool (within 1km walk) | ‘Growing Up Gifted’ MindChamps Global HQMindChamps PreSchool @ Marina Square Josiah Montessori: City Childcare Centre Little Neuro TreeViv’s SchoolHouse |
| Primary (within 3km-drive) | Stamford Primary Farrer Park Primary |
| Secondary (within 3km-drive) | – |
| Junior College (within 5km-drive) | – |
| University (within 5km-drive) | University of Newcastle Coleman College SMUMonash College James Cook University Victoria University of Technology Embry Riddle Aeronautical University |
| Polytechnic (within 10km-drive) | – |
Not the most education-friendly location – mainly because of its D3 location. But you do get quite a number of private universities and pre-schools to choose from, with the addition of the NAFA Arts preschool located a 15-min walk away.
| Bus Station | Buses Serviced | Distance From Condo (& Est. Walking Time) |
| ‘Esplanade Stn Exit F’ | 56, 57, 100, 107, 107M, 961, 961M | 260m, 3-min walk |
| ‘Suntec City’ | 10, 10e, 14, 14e, 16, 16M, 70, 70M, 196, 196e | 350m, 4-min walk |
Closest MRT: Esplanade MRT – Immediate
One of the biggest perks for residents of South Beach Residences is public transport convenience.
Its location along Nicoll Highway means easy access to the East via buses at the ‘Suntec City’ bus stop.
The journey to Orchard involves a 7-min walk to the ‘Capitol Bldg’ bus stop, thereafter lies an 11-min bus ride across 7 stops (aboard bus 111) toward Orchard Boulevard.
Given the proximity to the CBD, it is no surprise that a straight bus ride on bus 100 (9-mins across 3-stops) is all it actually takes to reach Raffles Place.
| Key Destinations | Distance From Condo (& Est. Peak Hour Drive Time) |
| CBD (Raffles Place) | 2.3km, 8-min drive |
| Orchard Road | 3.9km, 14-min drive |
| Suntec City | 1.2km, 5-min drive |
| Changi Airport | 17.4km, 19-min drive |
| Tuas Port (By 2040) | 39.1km, 50-min drive |
| Paya Lebar Quarters/Airbase (By 2030) | 10km, 18-min drive |
| Mediapolis (and surroundings) | 10km, 20-min drive |
| Mapletree Business City | 9km, 20-min drive |
| Tuas Checkpoint | 29km, 36-min drive |
| Woodlands Checkpoint | 26.6km, 28-min drive |
| Jurong Cluster (JCube) | 17km, 29-min drive |
| Woodlands Cluster (Causeway Point) | 25.8km, 31-min drive |
| HarbourFront Cluster (Vivo City) | 5.6km, 15-min drive |
| Punggol Cluster (Waterway Point) | 17.6km, 23-min drive |
*Note that Drive Times are calculated during Peak Hours
Immediate Road Exit(s): 1 exit along Nicoll Highway
Summary: Entrance to development shared with Hotel Lobby. It is single-laned, but plenty of space to maneuver around. Carpark is located opposite the drop-off point so no spillover of traffic from both ends, although they do share the same single-laned exit/entrance into the development.
I distinctly remember writing a piece on the ‘ Top 10 Developers with the Best Overall Capital Appreciation Yields ’ back in 2019. At that point, City Developments Limited (CDL) had the most projects with generally ‘positively-appreciated’ average psfs.
CDL is widely known for being a strong player in the Singaporean hospitality scene (though recent times have sent sector-related revenues into a downward lurch) – but what about its residential luxury projects?
While it does have 2 such projects in the pipeline ( Boulevard 88 & Haus on Handy), the only past (high-rise) developments in the CCR areas that also boast a (relatively) similar commercial/hospitality mix would be One Shenton and St. Regis Residences.
One Shenton, while beautiful from the outside, does have a notoriety for poor interior finishings – which is the last thing you’d expect from a luxury development.
Fortunately, St. Regis Residences boasts quality both on the interior and exterior fronts. Although similar to South Beach Residences, it does suffer from a low take up rate (tenancy-wise) due to its steep asking prices – which some might argue is an added exclusivity bonus.
Given that the South Beach Residence project is already fully built, this section isn’t all that important as you can view the actual units yourself to ascertain smaller factors like finishing quality and project maintenance.
Foster & Partners has just one other project in Singapore to date (Leedon Park House), which was of a different housing genre altogether.
That said, it’s had 42 other residential projects around the world over the past years, with 15 in the pipeline, so rather well-experienced in that regard. Feel free to check them out here.
AEDAS boasts a number of past local works, including the Sandcrawler and the Star (both commercial projects), as well as the one residential project in Asimont Villas.
You can find out more about their works here.
Unit mix
| Unit Type | No. Of Units | Size of Units (sqft) |
| 2-Bedroom | 88 | 936 – 1,798 sqft |
| 3-Bedroom | 32 | 1,604 – 2,282 sqft |
| 4-Bedroom | 19 | 2,239 – 2,616 sqft |
| 3-5 BR Penthouse | 6 | 3,897 – 6,728 sqft |
Overall, the 2-bedder variations is where the bulk of units lie (mostly due to buyer affordability basis and investor sentiment).
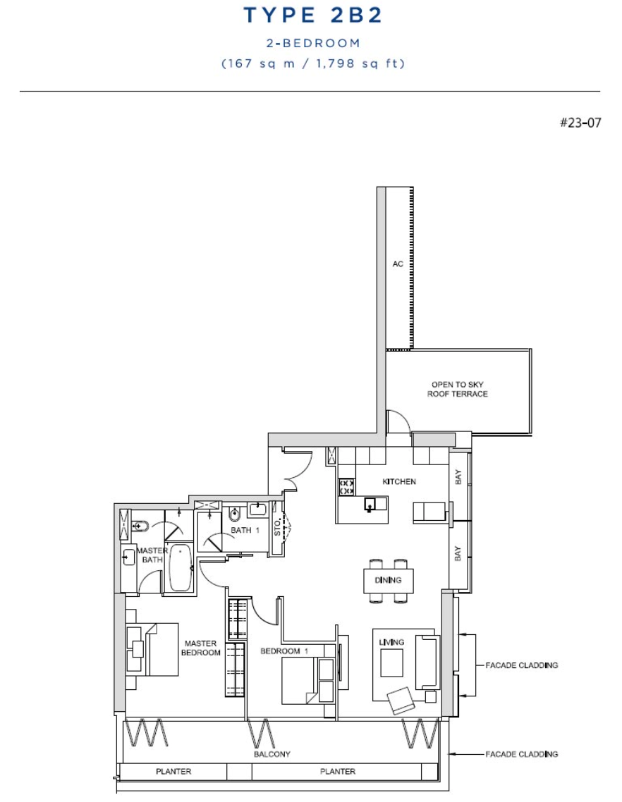
And befitting of an ultra-lux project, you get vastly expansive units with 2-bedders coming in at over 1,500 sqft. For those of you wondering how the 1,798 sqft 2-bedder unit actually looks like:
The addition of bay windows, a full length balcony (+ planter space), a large master bedroom and generally bigger living/dining spaces add to the bulk of this 1,789 sqft space.
The icing on the cake comes in the form of a Sky Terrace opening (unique to #23-07) which leads to the common facilities on the 23rd floor.
The rest of the 2-bedders in this stack are 1,593 sqft large (absent the sky terrace opening).
As for the smaller 2-bedder variations –
You’ll find them set at 1,216 sqft. It is the most common variant of smaller 2-bedroom units here at South Beach Residences.
Again, you get a full length balcony stretching across the Master, Common and Living rooms – but this time absent planter space and a spacious dining/living area (width-wise).
Finally, here’s the unit schematic for those interested to find out more:


| Project Name | Tenure | TOP | Average Price (PSF) |
| South Beach Residences | 99-year leasehold | 2016 | $3,278 |
| Eden Residences Capitol (District 6) | 99-year leasehold | 2016 | $3,206 |
| Duo Residences | 99-year leasehold | 2017 | $2,028 |
| Midtown Bay | 99-year leasehold | 2022 | $3,014 |
| The M | 99-year leasehold | 2024 | $2,651 |
| Concourse Skyline | 99-year leasehold | 2014 | $1,752 |
| City Gate | 99-year leasehold | 2018 | $1,940 |
The list you see here includes projects in D7 (and D6) that were built after 2012.
While there are a number of older developments in the area, I’ll keep the topic to higher-end residentials today.
As you can see, South Beach takes the cake in terms of PSF-value. But what’s more important is a unit’s overall quantum value for buyers to determine its affordability.
| Project Name | Smallest 1-bedroom Unit Size | Quantum (Last Sale Price/Asking Price) | Smallest 2-bedroom Unit Size | Quantum(Last Sale Price/Asking Price) | Smallest 3-bedroom Unit Size | Quantum(Last Sale/Asking Price) |
| South Beach Residences | – | – | 936 sqft | $3.19m (May 2020), Current Asking: $3m+ | 1,604 sqft | Current Asking: $5m+ |
| Eden Residences Capitol (District 6) | – | – | – | – | 2,120 sqft | Current Asking: $6.04m |
| Duo Residences | 420 sqft | $1.06m (April 2019), Current Asking: $1.2m+ | 818 sqft | $1.86m (December 2013), Current Asking: $2m+ | 1,432 sqft | $3.08m (June 2017), Current Asking: N.A |
| Midtown Bay | 409 sqft | $1.34m (Dec 2020),Current Asking: $1.4m+ | 732 sqft | $2.08m (January 2020),Current Asking: $2.05m | 1,324 sqft | $3.81m (February 2020),Current Asking: $3.3m+ |
| The M | 409 sqft | $1.06m (July 2020),Current Asking: $1.3m+ | 592 sqft | $1.6m (December 2020),Current Asking: $1.36m+ | 904 sqft | $2.5m (October 2020),Current Asking: $1.9m+ |
| Concourse Skyline | 775 sqft | $1.32m (August 2009),Current Asking: N.A | 1,087 sqft | $1.75m (July 2018),Current Asking: $2m+ | 1,668 sqft (Podium Block instead of Tower Block) | N.A |
| City Gate | 431 sqft | $1m (October 2020),Current Asking: 880k+ | 560 sqft | $1.14m (June 2015),Current Asking: $1.2m | 904 sqft | $1.6m (May 2019),Current Asking: $.1.7m+ |
Do note that both Concourse Skyline and City Gate are set towards the eastern-end of D7 (ie. further from the CBD – hence located in the RCR region as opposed to the CCR region).
As a result, they are deemed to have a more ‘affordable psf’ than their D7 counterparts in the list.
Judging from the unit sizes, it’s clear that both The M and City Gate cater smaller units (thus affording buyers a more affable overall quantum).
South Beach Residences, Eden Residences and Concourse Skyline have units on the higher space spectrum, thus higher overall unit valuations catered toward luxury/well-heeled buyers.
Duo Residences and Midtown Bay are a hybrid of sorts with smaller 1-bedroom units catering to the investor class, and more sizable 2 and 3-bedroom units for family-types.
When you look at the newer launches in D7 over the past decade, you don’t observe much of a price jump from their original unit sale prices – and rightly so.
In actuality, many of these ‘newer’ units were already priced exorbitantly at launch – no doubt to match land prices, amidst the incredible location benefits.
In essence, there just haven’t been any key factors that have contributed to increased investor demand/price-hikes in projects here – especially considering that just a handful of the population can actually afford these units.
While rental demand might have remained constant (read: good) over the past years, there hasn’t exactly been a justifiable uptick in demand to turn heads.
Another plausible point, (though not an incredibly pressing factor as yet) is that because all these developments are 99-year leaseholds, potential investors who might look to exit the market a number of years down might be wary that their then buyer at that time might fear a subsequent onsets of lease decay at these lofty quantums – and hence offer lower asking prices (ultimately resulting in paper losses).
My final highlight is that liveability really hasn’t altered all that much in the area over the past few years.
With your incredible outlay of malls, transport convenience and the CBD in the near distance, there just isn’t much that could cause a massive spike in quality of living here. Sure, the quality and variety of restaurants and entertainment are ever-increasing, but again, it’s not an aspect that’s completely head-turning – or at least powerful enough to warrant a price hike.
With the area being generally landlocked, I don’t anticipate too much commercial building potential in the area, with exception of a few land sales that would likely be converted into residences.
Perhaps that could lead to more attention toward residing in this area, hence posing a higher demand for smaller (more affordable) units here down the road (both on the investor and homeowner front).
At the end of the day, this is merely speculation.
In my opinion, the real winners were the older developments in the area that saw staggering price hikes over the decades – and might still observe en bloc sales in the coming years.
As for those looking to *solely make solid capital gains from buying into these newer projects, I do feel like you should look elsewhere.
For me, the biggest perk is really the livability/convenience factor of actually staying in an area such as this.
Standing atop the facility deck at the 32nd floor, I felt an incredible sense of awe at the views of the low-landed houses, CBD and oceanic views – something, which we rarely find in Singaporean condos.
The entire experience of being in this space screams luxury – from the surrounding high-end commercial spaces to the drop-off lobbies, the lifts and finally the actual units.
For Singaporeans who are able to afford a unit here, you also get the obvious choice of looking at a landed home.
Considering that these are two varied property types (one with the bonus of actually owning ‘forever’), it ultimately boils down to your lifestyle preference, financial management/outlook/goals and perhaps less noticeably, long-term plans for the house.
Ultimately for projects such as this, it’s tough to really put a price tag on the emotional pull that a development gives you. For those units that have the luxury of a view such as this, I can see why it commands the price tag it does.
This article was first published in Stackedhomes.