10 cheapest dual-key 2-bedroom units (starting from $853k)

Want tenants, but don't want to pay the 20 per cent ABSD? There's one alternative still available: the dual-key unit. These homes are split into two sub-units, allowing you to maintain a property count of one, while having a sub-unit you can rent out; and in complete privacy too.
Or perhaps just share the cost with family, where you and a sibling, parent, etc. can share without intruding on each other. Here are some of the cheapest options out there today:
| Project Name | Tenure | Completed | Type | Transacted Price ($) | Area (SQFT) | Unit Price ($ PSF) | Sale Date |
| THE HILLFORD | 60 yrs from 19/02/2013 | 2016 | 2 Bedroom Dual Key | $853,000 | 657 | $1,299 | 17 Nov 2022 |
| TRILIVE | Freehold | 2018 | 2 Bedroom Dual Key | $1,080,000 | 614 | $1,760 | 20 Jul 2023 |
| Q BAY RESIDENCES | 99 yrs from 21/08/2012 | 2016 | 2 Bedroom Dual Key | $1,100,000 | 883 | $1,246 | 6 Mar 2023 |
| URBAN VISTA | 99 yrs from 05/11/2012 | 2016 | 2 Bedroom Dual Key | $1,100,000 | 678 | $1,622 | 5 May 2023 |
| WATERFRONT @ FABER | 99 yrs from 17/09/2013 | 2017 | 2 Bedroom Dual Key | $1,120,000 | 764 | $1,466 | 6 Oct 2023 |
| LIV ON SOPHIA | Freehold | 2016 | 2 Bedroom Dual Key | $1,150,000 | 549 | $2,095 | 2 Aug 2023 |
| LIV ON WILKIE | Freehold | 2017 | 2 Bedroom Dual Key | $1,200,000 | 527 | $2,275 | 30 Aug 2023 |
| THE CITRON RESIDENCES | Freehold | 2017 | 2 Bedroom Dual Key | $1,250,000 | 721 | $1,733 | 24 May 2023 |
| BOTANIQUE AT BARTLEY | 99 yrs from 14/04/2014 | 2019 | 2 Bedroom Dual Key | $1,280,000 | 721 | $1,775 | 9 Feb 2023 |
| SIMS URBAN OASIS | 99 yrs from 29/07/2014 | 2017 | 2 Bedroom Dual Key | $1,310,000 | 786 | $1,667 | 31 May 2023 |
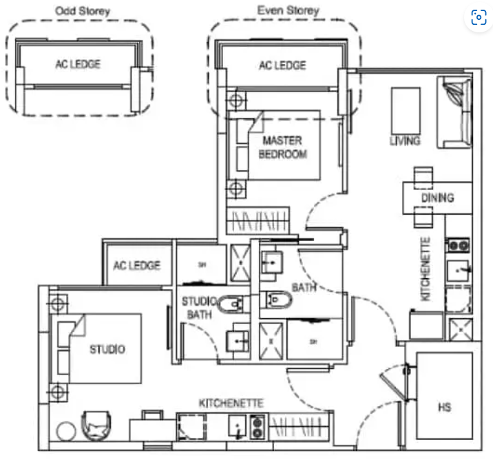
The Hillford is ideal if you're not looking for resale gains in the long term. The low prices of these units are due to Hillford's 60-year lease — The Hillford was originally intended as a sort of retirement resort, but this went out the window as there were as many 20 to 30-year old buyers as there were older ones.
There was some controversy over this — some market watchers complained that The Hillford was allowed to build as many shoebox units as the developer wanted, on the basis of it being for retirees — but given the lack of age restrictions, this could be interpreted as the developer building a "stealth" rental asset!
In any case, the cost makes The Hillford very attractive from a rental perspective. Tenants are not impacted by the 60-year lease, so you could reasonably expect the same rental rates as surrounding condos, while paying a much lower cost.
The Hillford is very close to Beauty World; just take bus 157 from Jalan Jurong Kechil (just outside the condo), and you'll be at Beauty World MRT (DTL) in about three stops. Beauty World Centre and Beauty World Plaza are near the MRT, which have most day-to-day amenities (including a Giant).
As such, rentability is also quite high. In any case, there are 18 commercial units available, like a Japanese and Korean eatery, along with a salon (among others).
With a quantum potentially under $900,000, this is probably also the most affordable condo so close to Beauty World.
The 60-year lease is the main bugbear, as this impacts potential resale gains. Some buyers have noted that Hillford is in an attractive location for an en-bloc, but on principle, that's something we'll tell you to never bet on.
Trilive may have the biggest number of dual-key units of any project, by percentage. About 80 per cent of the units here are dual-key, and about half of the 222 units are two-bedders.
(So for those who want a dual-key bigger than a two-bedder, note that most of Trilive's three and four-bedders are dual-key also.)
Trilive had a shaky launch, as the developer made a bold decision to put it out in 2014, right after the market had seen aggressive cooling measures. We speculate that their going ahead may relate to Trilive's abundance of dual-key units: perhaps the developer felt that, with the shock of ABSD rates, investors would turn to dual-key options as rental assets instead.
While Kovan is technically the closest MRT station to Trilive, it's also convenient to just go directly to Hougang MRT (NEL, CRL). This is because a bus stop near the condo (Aft Defu Ave 1) offers bus route 72, which goes directly to Hougang MRT.
Alternatively, bus 101 — at the stop close to Block 22 — also goes to Kovan MRT (NEL). We're aware Trilive is marketed as being within walking distance to Kovan (and it's not too far at about a 10-minute walk), but the bus is certainly more convenient.
Heartland Mall, near Kovan MRT, has a supermarket, a pharmacy, and most daily needs. Alternatively, Hougang Mall and Hougang Plaza, both near Hougang MRT, can provide a wider range of retail options.
On top of this, residents can walk to Hougang Street 32 in about six to eight minutes — there's a slew of small eateries here, along with a small neighbourhood grocer.
All in all, a fairly convenient place to live, if you can stomach the smaller unit sizes (because of the multiple PES, balcony, and foyer space taken up). Due to the unit mix though, Trilive will probably draw more landlords than home buyers.
Q Bay Residences was a bold move in its day, with the developers launching in 2013, one week after new cooling measures. On top of that, the developers banked on a new type of layout: there are 150 Verandah Homes, which feature oversized balconies that can be dining spaces (again, bold, as there's a subset of buyers who loathe big balconies as space-wasters.)
In any case, Q Bay Residences has done quite well. It's not in the most central location, but it's built to take advantage of greenery. Most units have an unimpeded view of Tampines Quarry Park and its lake, and the condo has good access to Tampines Central. From the bus stop at the neighbouring Tropica, bus 15 goes directly to Tampines MRT (DTL, EWL).
Around Tampines MRT, you'll find a big collection of malls like Tampines One, Century Square, etc. There are also Grade A office spaces, eateries, bank offices, etc., as Tampines is the regional centre of the east.
If you can overlook the need for a bus connection, or want to live near Tampines Central but away from its noise, Q Bay is a good option. There are also future prospects from the relocation of Paya Lebar Airbase, which is across from the Tampines Quarry Park.
Assuming some sort of through-road is provided, residents here may have access to a lot of future amenities once the base moves. For now though, this remains speculative (Paya Lebar Airbase is only moving in the 2030s).
Urban Vista both benefits and potentially suffers, from the emergence of Sceneca Residence. This is one of a cluster of condos, located around Tanah Merah MRT station (EWL). Along with Optima, Seneca Residence, and Grandeur Park, residents can easily walk to the train — and Tanah Merah is a significant stop, as this is where you can go directly to Changi Airport.
Apart from the obvious benefit to aviation industry workers, some homeowners consider the airport to be a major amenity. From the Changi Jewel to the various terminals, the whole stretch feels more like a giant mall that just happens to have an airport attached.
Sceneca Residence will offer competition, and will be newer. It's also integrated, and has a commercial space. On the upside, this will provide immediate amenities that Urban Vista and its neighbours have long lacked; including a supermarket.
That said, with so many condos near Tanah Merah MRT, we're sure the last thing landlords wanted was yet another rival project. The emergence of Grandeur Park Residences, for example, was probably a contributing factor to its poorer performance.
This aside, Urban Vista will appeal to those who work at the airport or Changi Business Park; and we do think you can find tenants despite the competition, given the sheer size and air traffic coming through Changi.
When Waterfront @ Faber launched, the marketing materials pitched a project that would take advantage of Jurong's transformation; in particular being close to Jurong East town central.
But this is a matter of opinion: some viewers will frown and feel that's quite a stretch, as Jurong East MRT is certainly not within walking distance (in fact, no MRT station is, although the future emergence of Jurong Town Hall on the Jurong Region Line may help a little).
It was also said that Waterfront would appeal to workers in nearby industrial parks, or within the Jurong East area. Again, we doubt it — there are many more accessible condos near these areas, and the recent arrival of condos like J'den will more or less cement the fact.
Instead, we feel the main draw of Waterfront is low-density living. This condo is within a landed enclave, and is itself a low-rise property. Couple that with a low unit count (210 units), and this becomes a very private and exclusive project.
We do suppose that certain tenants — such as the ones struggling with the shock of Singapore's urban density — may gravitate toward Waterfront.
That said, this project comes with the usual drawbacks of being in a landed enclave: there's limited access to public transport, and you'll need to travel out for amenities. It's not so bad if you drive: you can get to the Jurong East area malls like IMM, or to Clementi Mall, in under 10 minutes by car.
Finally, do note that next to Waterfront @ Faber is supposed to be a residential development under the URA Master Plan, so there would be a future project that would come up here.
ALSO READ: 10 most profitable small 1-bedroom unit in Singapore (resale condos only)
This article was first published in Stackedhomes.