11 considerations to pick the best condo unit for you

If you’ve been following this Ultimate Guide from the beginning – congrats! You are now almost getting to the finishing line of buying your first home.
Now here comes the slightly more complicated, but nevertheless fun part about buying a home – picking the unit.
This is the stage where you really have to drill down into what are the exact features and needs that you require based on your lifestyle.
For example, if you are planning to stay for the next 10 years with the expectations of having a kid and a helper – you’ll definitely require at least a 2 bedroom unit that comes with a helper’s room.
Are you an avid cook? Getting a place with an enclosed kitchen with proper ventilation would probably be at the top of your list of priorities.
With the current Covid-19 situation, does the future of your job look to be a WFH situation? You might have to consider getting a unit with a dedicated study/office area.
And the list goes on…
Now, depending on if you are looking at a new launch or resale condo , one of the main advantages of looking at a new launch condo early is you get to pick the best unit.
But for a lot of new buyers, this gets tricky in showflats. It can be hard to visualise factors like floor and facing, as they’re not apparent from the show flat itself (resale units are easier, as you can walk around in the actual property and get a feel for it).
So here are 11 considerations when it comes to picking out the best condo unit for you.
For a more detailed description of this, check out our earlier article explaining property relative to the sun’s position. In a “quick and dirty” sense however, here are the things to note:
Any other facing, like north-west, is relatively neutral. So in general, consider north-south or south-east facings first, unless you have specific reasons to do otherwise (e.g. you have renovation plans that will fix the issue).
Note that, with today’s advancements, it’s not impossible to correct conditions related to facing.
For example, everything from switchglass to reflective fabric curtains can moderate the impact of direct sunlight.
There are east-west facing units that some buyers snap up for a song (because they tend to be a bit cheaper), but then renovate and furnish accordingly to minimise heat issues.
Especially for bigger projects, you’ll find that there are many different types of blocks and facings. Generally, you can expect the biggest and more expensive units to feature the best views (unblocked/greenery/sea/swimming pool).
Besides just having a good view, there could be a premium priced in for units that have the best privacy. This includes being furthest distance away from neighbours, or the quietest facings as well.
Here’s another thought on deciding on a unit facing. Let’s say you’ve decided to do away with the fancy stuff, but are faced with the dilemma of an inward or outward view.
It’s actually quite simple. Depending on the location of the development, check up on the growth plans for the area.
For example, staying in a place that is positioned to take advantage of the Greater Southern Waterfront (GSW) may be a good thing for future appreciation potential.
But a unit that faces outward may have to contend with much more construction noise, or even changes to the views. So while an inward view unit might have internal noise from the playground or a BBQ pit (as an example), you can be assured of a stable outlook.
So you’ll have to decide how important the views are to you. For obvious reasons, units that have best in class waterfront or city views will also carry the biggest price tags. Check and compare this with a unit without those views – would that price jump be worth the premium to you?
The main advantages of lower / ground floors are:
One big plus of ground floor units is that you don’t need the lift. In bigger and taller developments, this can be a significant time factor.
Imagine, for example, if you leave your car keys at home in the morning: you might end up having to go back up and down 30 storeys, stopping at every other floor because everyone else is going to work at the time.
(Which brings to mind an important question to ask, how many lifts serve how many units on each floor).
Also, remember that lifts do breakdown, or need upgrading.
In 2019, for example, a particular condo near the Bayshore Road area had lift upgrading works in December (near Christmas), leaving only one of two lifts operating for 30 floors.
You can imagine the chaos when guests started to pour in for multiple parties.
None of these are issues if you live on the ground floor. On lower floors (e.g. the first three floors), it’s still viable to use the stairs, and it may be quicker than using the lift.
As an aside, most home buyers with mobility-impaired/elderly family members prefer ground floor units. This is because the area right outside the door is a wide lobby rather than, say, a tight corridor. This can make it easier if anyone needs to get on a wheelchair.
It isn’t true for every development; but if you opt for a more spacious floor plan, you might find it’s a ground floor or lower floor unit (with the exception of penthouse units of course).
Ground floor units also tend to have more lavish Private Enclosed Spaces (PES) than top floor units. For example, instead of just a narrow balcony, they may have a patio extending out onto the lawn. This might be appealing, if you like to host gatherings in the semi-outdoors.
While top floors give you an overall view of the neighbourhood, bottom floors can give you pool or garden views.
If people-watching rather than aerial views are your thing, then you might prefer this to a higher floor.
You get a ground floor view of people’s cute pets, your neighbours, and community events (e.g. Hari Raya or New Year shows organised by the management) right outside your window.
Of course you won’t do something silly like put a flower pot on a balcony ledge; but accidents do happen.
On higher floors, a thrown tennis ball going off the balcony is enough to send the police to your door (take note if you have children in the home).
There are also rare, but occasional conflicts when the owner of a high floor unit is accused or suspected of killer litter. When you’re on the ground floor, that won’t happen to you.
If you have young children who like to climb, then a ground floor unit is a safer choice (well, there’s no guarantee that a child can’t be hurt from falling out the ground floor window, but it’s much less serious than from a height).
This is also safer if you have pets such as cats, which are inclined to perch on window ledges.
The main advantages of picking the higher floors are:
The higher up the unit, the further you are from road noises, the MRT tracks, or the people hollering and running around the pools and BBQ pits. As such, top floor units provide a greater sense of privacy and seclusion.
However, there are some exceptions to this. Developments where there are rooftop facilities, such as BBQ pits or tennis courts on the roof, can sometimes have a bit more noise compared to ones without.
A good recent example of this is Meyer Mansion : there’s no penthouse unit in this development, but the top floor units have a much higher floor to ceiling span.
If you’re picking the unit which gives you sufficient room for a mezzanine floor, or just more ventilation / light from a high roof, chances are it’s an upper floor unit.
Note that this isn’t true of every development, as some have high ceiling units even if they’re not on the topmost floors (e.g. Parkwood Residences).
A higher-up unit will give you a better view of the surrounding area. Mind you, the quality will still differ – developments in low density enclaves (such as Bukit Timah), or along the sea (like Costa Del Sol) – will give better views than others of equal height.
If there are multiple tall towers for example, then your view may still be partially obscured.
Burglary rates are super low in Singapore. But just in case any are eyeing your home, being higher up makes your unit more difficult to access.
There’s an added layer of security compared to ground floor units, as you usually need the keycard for both access to the lobby, and then again to unlock your floor in the lift (for most condos built in 2010 or later).
Barring burglars, your family will also be safer from other crimes, like peeping tom incidents or vandals.
Upper floor units are usually the last to bear the brunt of any situations such as rat or cockroach infestations. This doesn’t mean they’re immune of course (a lot can climb through a garbage chute), but the higher floor means less exposure.
Note that this difference is more pronounced in new rather than resale units. In new developments, it takes time for any infestations to “work its way up”, especially for ground insects like termites.
For older resale units, if an infestation has been around for some time, it’s likely to have affected the whole block including the top floors; so you may not see much more relief in those situations.
There generally isn’t much difference between mid-floor units, not even in terms of the view. As such, you do have to seriously consider if it’s worth spending another, say, $10,000 for a unit that’s one floor higher. The ultimate difference may be negligible.
Again for bigger developments with many blocks, choosing which stack to live in can really make or break your travelling time.
For example, a large development with an advertised walking time of 5-minutes could really just be from the main entrance to the MRT station.
If you chose a unit at the back, just the walk through the massive development itself could add another 5 – 10 minutes to your walk.
The same applies for facilities too. If you gym/swim/play tennis a lot, looking for a unit close to these facilities would definitely make a lot of sense.
If you’ve found an ideal stack closer to the edge of the development, do note what exactly is positioned on the outside.
If let’s say it is a primary school, you might be thinking “hooray” for convenience in the future – but remember this will come at the expense of noise in the early mornings and during the day.
Everyone wants a development with great transport accessibility, but remember, being located close to a highway means a ton of road noise.
If you are used to waking up late on weekends, the road traffic could be a rude awakening for you. Unless you are planning on switching the air-con on 24/7 – this should be a serious consideration for you.
So generally, the downsides to better convenience would be noise and privacy levels. Staying close to the main road or facilities would naturally have higher noise levels – so ultimately it is finding a balance between both.
Lastly, units positioned close to the refuse centres and substations are normally priced the cheapest for a reason.
As a first time home buyer who is more cost conscious, you could be gravitating to these units but you could find it a tough sell when you are looking to exit.
Again, this is really a problem that buyers of large developments will face – the myriad of choices at your disposal.
First things first, be aware of certain showflat tricks – this can help you better identify if the unit type is right for you.
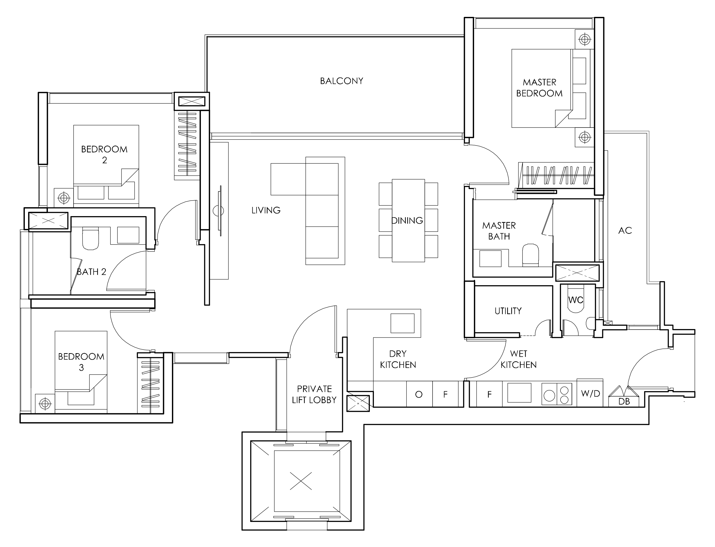
Be it a 2 bedroom unit with study, or 2 bedroom premium unit that comes with a private lift, there are quite a few different unit types that you can select according to your needs.
One reason for this is because of the falling unit sizes over the years. Instead of a one size fits all solution, the smaller unit sizes have forced developers to offer more niche choices instead.
With the compact sizes nowadays (and unless you are shopping in the luxury department), it’s also hard to find units with a balanced layout.
What usually happens is small rooms, bigger living space, or bigger rooms and smaller living space. So it’s a tough choice between more living space or more bedroom space.
Let’s go through each unit type to give you a general overview of what you should look out for.
Honestly with the size, it’s hard to go too wrong here in terms of layout. Some 1 bedroom units have jack and jill bathrooms, some only have access to the bathroom from the bedroom itself – so it really depends on if you usually have people over or not.
Watch out for those that have big entrance ways. Ideally, you want it to open straight into the kitchen, to really maximise the living space.
Most developments now feature the AC ledge as part of the balcony or right outside the window of the master bedroom.
Personally, I prefer those that are placed elsewhere as it allows for bigger windows. More light in, bigger, open views (depending on your facing) is always a good thing to have.
If you are looking for a 2 bedroom unit, you’ll usually have quite a few choices at hand.
To save on cost, you could opt for a 2 bed 1 bath type unit – especially if you don’t mind some inflexibility and inconvenience, or if you are planning on converting the common bedroom into an office/study.
But bear in mind that when it comes to the resale market in the future, you will only be appealing to a smaller group of buyers.
If you cook a lot, you’ll naturally want to find a bigger kitchen with windows at the very least. Nowadays many 2 bedroom units do not come with enclosed kitchens or even have any windows for ventilation – you’ll need to open up the main door and balcony for that.
Look out for 2 bedroom units with a dumbbell layout. This usually is more efficient in space, as it does away with the need for a corridor. Also, if you have occupants living in the second bedroom, it does provide a greater sense of privacy.
Depending on the size of the balcony, you could also move your dining table outside permanently – this gives you a much bigger living area as well.
3 bedroom units are usually the pick of the bunch for first time homeowners looking for their own stay with a longer term view towards the future – more so if you have plans for kids.
Naturally, as this is for your own stay, you’ll want to make sure that the room sizes are liveable enough for at least a queen-sized bed.
If you are planning to have a helper too, remember to look for one with a bomb shelter/utility room – especially if you require more privacy.
Something that is getting less common in 3 bedroom units nowadays is the lack of yard space, and I do think that this is quite an important feature that many first time buyers tend to overlook.
Again, because of the size constraints in newer developments, you can expect most 3 bedroom layouts to have a common bathroom shared between both common bedrooms in either a jack or jill layout or a standalone one.
Another thing that you absolutely have to look out for is what exactly comes with the unit. In showflat units nowadays, developers are required to show explicitly the difference between the show unit and actual unit.
If it is an ID feature, you will see that it is clearly labelled, and it would not be something that comes with the unit that you purchase.
Look at the flooring that comes in the showflat, whatever that is used there will be the same materials that will be coming with your unit.
Do remember that flooring and hacking is one of the more expensive items when it comes to renovation – so getting quality construction and materials here is very important.
For living and dining areas, you can expect to find the usual suspects: marble, compressed marble, and homogeneous tiles. Bedrooms are usually made of solid timber or laminate.
If you want a clearer idea of the exact materials used – get a copy of the brochure to look at the specifications at the end.
All new launches will definitely come with appliances too, mainly the fridge, washing machine, dryer, oven, or in some cases even a wine fridge.
The brands for these depend on the price point of the condo that you are looking at. For obvious reasons, the more premium condos tend to come with high end brands like Miele and V-Zug.
Either ways, it is worth your time to research and see if the developer is using a reliable brand – it is a small insight into their level of quality.
Sometimes when you look at a new project and how the various stacks are being priced – it doesn’t always mean that the most expensive stacks feature the best units.
For certain high rise condos that come with facilities or sky gardens on each floor, look out for those units that have direct access to them – sometimes you might find that the price jump from the floor below isn’t actually that big.
In real world situations, you’ll usually find that most people tend to not really bother about these facilities. So you might find that you have almost exclusive use of these facilities most of the time.
These unique selling points will certainly help when it comes to selling or renting in the future.
With new launch units, you don’t have any transaction history to view. As such, your best bet is to look at the prices of the closest condos (anything within one kilometre is a reasonable point of comparison).
You can use Google maps to spot nearby developments. You can also type “X to Y” in the Google search bar, to verify the distance (e.g. you can type “Leedon Green” to “Leedon Residence” to check the distance).
For the purposes of comparison, try to identify prices in condos that are of matching leasehold / freehold status, within one kilometre, with less than a five-year difference from the new project you’re looking at.
The more the condo matches your new project in terms of utility, the more accurate the estimate will be (e.g. if the new project is near the MRT station, try to find an older one that’s nearest to the MRT as well).
Once you’ve shortlisted the most comparable projects, visit the URA website to check the caveats lodged. This is based on the actual prices at which properties have been transacting, so it’s a good indicator of value.
You’ll want to find the median* price of similar-sized units transacted in the condo (or units that are as close to your intended new unit in size). You can use this to evaluate the price you’re being quoted.
If the unit (1) has been rented out before and you know the amount, and you (2) have the property valuation, you can work out the net rental yield. This can help you to decide between two or more units in the stack, even if you’re not actually going to rent out the unit.
The net rental yield is the net rental income, divided by the property value, multiplied by 100.
For example, say the net rental income of a property (the amount of rental income generated minus costs) is $24,000 per annum. The property’s valuation is $1.2 million. This gives the unit a net yield of around two per cent.
In theory, a high net rental yield can reflect on good value even if you’re not renting out the condo; it could mean the asking price is significantly below what someone might pay to live there.
And if you do plan to rent it out, then of course it’s even more important.
We can’t give you numbers for this as it’s purely subjective. Renovations, particularly those made in the past two to three years, often pump up the valuation of a resale condo.
But you need to decide how much those renovations matter to you specifically. Some buyers may feel a walk-in wardrobe is just a huge waste of space, for example.
So if you’re going to have to hack everything up and redo it, maybe a lower valued, un-renovated unit in the same development / stack is a better choice.
Many resale owners would have configured the unit specifically for their lifestyle. Just as with new showflats, don’t be taken in by the outward stylish appearances of some of the designs – they could be impractical for you.
You don’t want to fall into the situation of paying a higher price for a nicely designed space only to find upon moving in the frustrations of actually living there.
This matters for resale units. If any repairs or maintenance are needed, such as fixing of water heaters or cabinetry, you need to work out the costs.
If the seller won’t pay for them, then get an estimate on how much they’d cost to replace (call some contractors for quotes if you have to). These costs should be factored in, before you agree on the price.
This article was first published in Stackedhomes.