16 condos within 1km of popular primary schools in the East ($1.5m budget)

For all you young parents out there, we understand you want the best for your children – and that includes getting your child into the best primary school possible.
But as with many things in life, there will always be competition for the best. Realistically speaking, there aren’t that many ways to get into one and if you don’t have the good fortune of having attended one yourself, being 1km within that coveted primary school will be your best bet.
Now, we know that DPM Heng Swee Keat has already popularised the phrase “every school, a good school” and I do sincerely trust that MOE is doing its best to bring the best out of each child.
Nevertheless, there are some primary schools which have traditionally been more popular than others – either because of strong academic results, illustrious alumni or a combination of both.
The following primary schools and condos are not meant to be an all-encompassing list so do drop us at Stacked a message on Facebook if you are interested in finding out our condo picks for other primary schools!
Given the profile of buyers looking for condos within 1km of popular primary schools, these are the criteria we have set out:
As the main consideration here is for families to be in close proximity to the primary school, I have prioritised the practicality of the unit layout / development facilities over potential investment upside – but that doesn’t mean these will be loss-making condos of course!
Without further ado, let’s jump straight into our condo picks for popular primary schools – starting with the East!
| Phase | 2019 |
| Phase 1 | 158 |
| Phase 2A1 | 109 |
| Phase 2A2 | 22 |
| Phase 2B | 35 Within 1km = 35 Applicants Between 1-2km = 1 Applicant Outside 2km = 0 Applicant Total = 36 Applicants |
| Phase 2C | 36 Within 1km = 61 Applicants Between 1-2km = 1 Applicant Outside 2km = 0 Applicant Total = 62 Applicants |
Editor notes: The private homes within 1km to Tao Nan School include parts of Telok Kurau, East Coast Road, Joo Chiat, Katong and Marine Parade.
For the purpose of this article, I have excluded Telok Kurau developments in my choices as I feel that developments there tend to be more boutique in nature and have stiff competition amongst themselves.
Address: 539 East Coast Road S(429069)
Unit types: 1, 2, 3, 4, 5 BR
Total units: 104
Built year: 2013
Tenure: Freehold
Developer: Far East Organisation
Unit of focus:
Description: The Sound, despite being a low rise condo, has one of the larger land plots in its nearby vicinity. Coupled with it being relatively new and its branded developer status (Far East Organisation), you will be pleased that it comes with decent facilities for your family.
There is a good sized pool, a gym, playground, clubhouse and 24 hour security onsite.
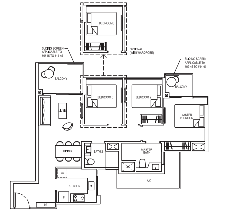
In terms of pricing, a 2 bedroom 2 bathroom 892 sqft unit is being listed for $1.38 mil ($1,547 psf) and comes with an enclosed kitchen, a yard and a home shelter. From a practicality perspective, this ticks all the boxes for a family.
Besides being 1km from Tao Nan School, it is also within 1km to CHIJ Katong, Ngee Ann Primary, St Patrick’s School and Victoria Junior College so one can truly say you have plenty of educational options here.
Connectivity wise, the upcoming Marine Terrace MRT station will be 600m (~8mins) away and is estimated to complete by 2023. Otherwise, being on East Coast Road itself, there are currently plenty of buses that can take you further East to Bedok and beyond or straight to the CBD.
Address: 530 Joo Chiat Road S(427710)
Unit types: 1, 2, 3 BR
Total units: 127
Built year: 2014
Tenure: Freehold
Developer: Grovehill Pte Ltd
Unit of focus:
Description: Even though its address states Joo Chiat Road, it is very much a part of Marine Parade to me.
It is located just opposite Marine Parade Central, where you will find Parkway Parade, an ever popular mall for those living in D15. Banks, enrichment centres and food options also come aplenty here.
Coralis is located right beside Parc Seabreeze, a condo of similar vintage and both developments have similar land plots at 50,000+ sqft, which is large enough for Coralis to pack in facilities such as a lap pool, gym, playground, BBQ pits, jogging track and 24hr security. It is a high rise development with ~20 storeys.
In terms of pricing, a 2 bedroom 2 bathroom 807sqft unit is being listed for $1.49 million ($1,844 psf) and comes with an enclosed kitchen. Both bedrooms can also comfortably fit in a Queen-sized bed and the living room comes with a good sized balcony.
Besides being 1km from Tao Nan School, it is also within 1km to CHIJ Katong, Haig Girls School, Tanjong Katong Primary School and Canadian International School. Just like The Sound covered before this, one can truly say you have plenty of educational options here.
Connectivity wise, the upcoming Marine Parade MRT station will be about 150m (~2mins) away, located just across the road and is estimated to complete by 2023.
Otherwise, being on Marine Parade Road itself, there are currently plenty of buses that can take you further East to Bedok and beyond or straight to the CBD.
Address: 510 East Coast Road S(459135)
Unit types: 2, 3 BR
Total units: 56
Built year: 2006
Tenure: Freehold
Developer: World Class Land
Description: Costarina is located in a quiet corner of East Coast Road and beside the landed Jalan Keris enclave. What stood here before Costarina was Jackie’s Bowl (a bowling alley) with a popular eatery called Different Taste Café & Restaurant, which has since relocated to Frankel Avenue.
Costarina is also beside and towered over by Ocean Park, a 30-storey development built in 1983. Do note that the facilities in Costarina are more basic compared to its 2 other peers mentioned above.
In terms of pricing, a 3 bedroom 2 bathroom 840 sqft unit is being listed for $1.28mil ($1,523 psf) and comes with an enclosed kitchen, household shelter and a yard.
At 840sqft for a 3 bedroom, it is definitely small for condos of its generation (while it doesn’t have a balcony, not everyone would be a fan of the planter and bay windows too).
This means that you have a smaller living room and common bedrooms. Nevertheless, from a practicality standpoint, having a household shelter will definitely be a plus for families.
Besides being 1km from Tao Nan School, it is also within 1km to Ngee Ann Primary. Connectivity wise, the upcoming Marine Terrace MRT station will be about 800m (~10mins) away. Otherwise, there are currently plenty of buses that can take you further East to Bedok and beyond or straight to the CBD along East Coast Road.
| Phase | 2020 |
| Phase 1 | 113 |
| Phase 2A1 | 42 |
| Phase 2A2 | 30 |
| Phase 2B | 41 |
| Phase 2C | 44 |
Editor Notes: The 1km radius around Kong Hwa is populated with many small developments along the (many) Lorongs of Geylang and has traditionally been a not so child-friendly location. Nevertheless, there has been significant efforts to weed out shady activities over the last decade.
For the purposes of this write-up, I have gone with only 1 condo from Geylang – The Waterina, which is located in the “better” part of the area. The other 2 selections are from Dakota and Geylang East respectively.
Address: 51 Lor 40 Geylang, S(398075)
Unit types: Studio, 1, 2, 3, 4 BR
Total units: 398
Built year: 2005
Tenure: Freehold
Developer: Capitaland Residential
Description: A friend of mine who has been a long time Geylang resident remarked that “the higher the Lorong, the less seedy it is”. Regardless of how factual his comment is, one cannot deny that The Waterina is one of the best choices in Geylang.
It is located along the Geylang River, with some units getting a view of the river (any form of water element is prized in Singapore) and Guillemard Road, where Kong Hwa is just a 550m (6 mins) walk away.
Despite being 15 years old, the development is still well maintained and comes with a good sized lap pool, fitness corner, BBQ pits and security. It is also a large development by Geylang standards, with 398 units and developed by a reputable developer (Capitaland).
In terms of pricing, a 2 bedroom 2 bathroom 1055 sqft unit is being listed for $1.45 million ($1,374 psf) and comes with an enclosed kitchen, a yard and a bomb shelter.
As you can already tell from the size, it is extremely large for a 2Br unit by 2020 standards. Both bedrooms can also comfortably fit in a Queen-sized bed and the living room is big by current standards.
Connectivity wise, Dakota and Paya Lebar MRT will both be accessible by foot. Dakota will be nearer at about 600m (~8mins) walk away while Paya Lebar, which has both the Circle and East-West Line will take you about 10mins (800m).
Either way, the stations will take you to town very quickly, with City Hall and Bayfront just 5 stops (10mins) away from Paya Lebar and Dakota MRTs respectively. It’s little wonder why the latest Geylang BTO was 14x oversubscribed.
Address: 72 Dakota Crescent, S(399942)
Unit types: Studio, 1, 2, 3, 4, 5 BR
Total units: 616
Built year: 2013
Tenure: 99 Years
Developer: UOL Group Limited
Description: Among the 3 condo picks for Kong Hwa School, Waterbank at Dakota is the most ‘atas’ of them all.
Developed 3 years after its neighbour Dakota Residences, Waterbank at Dakota is a 20 storey tall condo with many units getting sweeping views of Geylang River and the Mountbatten landed estate, which has some of the most expensive homes in the East.
Being a relatively new condo, having only TOP-ed in 2013, the blocks still look modern. The development comprises of 4 20-storey and 3 19-storey blocks.
It offers facilities such as an infinity-edged pool overlooking the Geylang Park Connector, a gym on the fifth storey, a jogging track and a 50m lap pool for Joseph Schooling wannabes.
At 883 sqft, this 2 bedroom 2 bathroom unit is being listed for $1.4 million ($1,585 psf) and comes with an enclosed kitchen. It also has a typical layout to the rest of the unit with no odd corners.
Connectivity wise, Dakota MRT is just 200m (3 mins) away by foot. The Paya Lebar interchange will just be 1 stop away, where you will also gain access to the East West Line. Old Airport Road hawker centre is also a short 5 mins stroll away, where good food beckons!
Address: 7 Geylang East Avenue 1 S(389782)
Unit types: Studio, 1, 2, 3, 4 BR
Total units: 250
Built year: 2018
Tenure: 99 Years
Developer: Sustained Land, MCC Land and Greatview Development
Description: TRE Residences is the newest among my 3 picks for Kong Hwa School, having only been completed in 2018.
When it was first launched in 2014, the sales were frankly mediocre at best but has since picked up significantly with the spillover effects from the Paya Lebar transformation. In terms of proximity to Kong Hwa School, it is literally at the edge of the 1km radius.
The development is laid out simply, with 2 blocks of 17 storey buildings. Facilities are similar to those offered by my 2 other picks, with a lap pool, gym, playground, 24 hour security etc.
What sets TRE Residences apart though, would be the sky terraces on the 4th, 9th, 14th and 17th floors, which provide residents more spots to chill and enjoy the night.
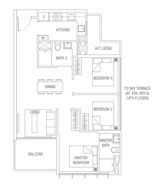
At 850 sqft, this 3 bedroom 2 bathroom unit is being listed for $1.55 million ($1,824 psf). Yes I know, this is $50k higher than my criteria.. but you do get 3 bedrooms here, which I couldn’t help but to squeeze in here.
It also comes with an enclosed kitchen suitable for heavy cooking. Do note however that the rooms, including the living room, will be a bit of a squeeze given that there are 3 bedrooms for just 850 sqft of space.
Connectivity wise, Aljunied MRT is just 250m (3 mins) away by foot. The Paya Lebar interchange is just 1 stop away, where you will also gain access to the Circle Line. You will also be close to many highly recommended eateries along Geylang and Geylang East.
| Phase | 2020 |
| Phase 1 | 107 |
| Phase 2A1 | 40 |
| Phase 2A2 | 45 |
| Phase 2B | 12 |
| Phase 2C | 106 |
Editor Notes: The 1km radius around Temasek Primary includes parts of Upper East Coast and the Tanah Merah estate. There are more landed properties than condos in the 1km vicinity, with the Lucky Heights and Kew estates being relatively large landed neighbourhoods.
Prominent condos such as Costa Del Sol and The Bayshore have been excluded due to their age. Heng Swee Keat’s East Coast plan, coupled with the upcoming Bayshore MRT, are set to bring about more vibrancy and connectivity to this neighbourhood.
Address: 457 Upper East Coast Rd, S(466503)
Unit types: 2, 3 BR
Total units: 242
Built year: 1994
Tenure: Freehold
Developer: Tuan Huat Development Pte Ltd (Ban Hin Leong)
Description: The Summit was completed way back in 1994 and is still relatively well maintained despite its age.
For those of you who aren’t as familiar with the development, it has a long and winding road leading up to the different blocks and high floor units will literally be at ‘the summit’ as they will get to enjoy sea views in the distance.
Given that this condo is closer to thirty than it is to twenty years of age, space is really a given. A freehold 1,249 sqft East Coast condo going for $1.55 million ($1,240psf) is very reasonable by today’s standards (psf wise) but you do have to take into consideration the potential issues that come with an old development.
If you are fine with that, you will get great facilities at The Summit as well – including 2 tennis courts, 2 squash courts (1 has been converted to a table tennis room instead), a lap pool and good sized gym. Not bad at all given that there are only 242 units here.
Connectivity wise, the upcoming Bayshore MRT is a mere 280m (4 mins) away by foot and it will take you 11 stops (22mins) to get to Shenton Way station, where you will find Grade A offices such as Marina One and Asia Square.
Address: 412 Upper East Coast Road 466488
Unit types: 2, 3, 5, 6 BR
Total units: 59
Built year: 2010
Tenure: Freehold
Developer: East Coast Residences @ Bayshore Pte Ltd (Crescendas Group)
Description: East Coast Residences is actually located just down the road from The Summit. However, it is a boutique low-rise project with just 59 units. What you do get in exchange, is a much newer project completed just 7 years ago in 2013.
Being a much smaller development (in size and number of units) compared to The Summit, you cannot expect the same abundance of facilities here at East Coast Residences.
Nevertheless, you will still get a lap pool, gym and security onsite, which is probably sufficient for most of us in our generation (we don’t have time to use the facilities anyway).
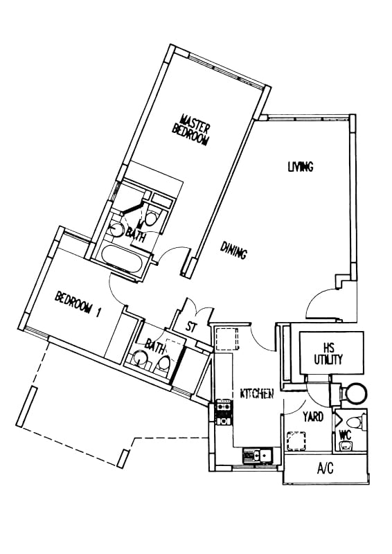
This unit is 893 sqft with 2 bedrooms and 2 bathrooms with an asking price of $1.2 miliion ($1,343 psf). It comes with an enclosed kitchen (as with most of my choices here) giving you the flexibility of heavy cooking. Plus, it also has a good sized balcony for those of you who love the al-fresco concept.
Connectivity wise, the upcoming Bayshore MRT is mere 400m (5 mins) away by foot and it will take you 11 stops (22mins) to get to Shenton Way station, where you will find Grade A offices such as Marina One and Asia Square.
Address: 1 Bedok South Ave 3, S(465461)
Unit types: 1, 2, 3, 4, 5 BR
Total units: 722
Built year: 2021
Tenure: 99 Years
Developer: CEL Residential Development Pte. Ltd
Description: So while I did mention at the start of this article that I’d only be focusing on resale condos, Grandeur Park Residences does look set to be completed quite soon, so I decided to include it here as well.
It is the newest and largest development of the 3 I’ve chosen for Temasek Primary School and consequently comes with the latest facilities available, including interesting ones such as smart home capabilities, Salt Room and Ice Therapy corners.
The distance between the many blocks is also a minimum of 46 metres, which is considered good by today’s standards.
A 3 bedroom 2 bathroom 883 sqft unit is currently being listed for $1.35 million ($1,528psf). The layout is pretty typical of a 3 bedroom unit and even has an enclosed kitchen, albeit a small one. Given the size of this unit, do note that the rooms will fit a Queen bed but not much more.
Connectivity wise, Tanah Merah MRT is mere 200m (2 mins) away by foot and you can get to Changi Airport in 5 minutes. Otherwise, it will take you 9 stops (18 minutes) to get to City Hall.
| Phase | 2020 |
| Phase 1 | 108 |
| Phase 2A1 | 73 |
| Phase 2A2 | 25 |
| Phase 2B | 11 |
| Phase 2C | 65 |
Editor Notes: The 1km radius around Red Swastika that meets the criteria I have set out is concentrated on the long row of condos along Bedok Reservoir Road, with many of these units having views of Bedok Reservoir and the park, both of which are just a 2 mins walk away.
The 3 condos I have selected are the newest along the road and have very similar vintage (2012 – 2015) and names (Waterfront series).
All 3 also have full condo facilities – pool, tennis courts, BBQ pits etc and are in fact developed by the same developer (Frasers Centrepoint) and are also within 750m (9mins) walk from Bedok Reservoir MRT station.
Hence, I will not delve too much into the details of each development but will simply showcase the layout and asking price of each unit.
Address: 736 Bedok Reservoir Road S(479264)
Unit types: 1, 2, 3, 4, 5 BR
Total units: 561
Built year: 2015
Tenure: 99 Years
Developer: Fraser Centrepoint Homes
3 bedroom 3 bathroom $1.45 million ($1,192 psf)
Address: 752 Bedok Reservoir Road S(479257)
Unit types: 1, 2, 3, 4, 5 BR
Total units: 361
Built year: 2014
Tenure: 99 Years
Developer: Frasers Centrepoint Limited
3 bedroom 2 bathroom $1.4 million ($1,327 psf)
Address: 770 Bedok Reservoir Road S(479250)
Unit types: Studio, 2, 3, 4 BR
Total units: 437
Built year: 2012
Tenure: 99 Years
Developer: Far East Organisation, Frasers Centrepoint Homes
3 bedroom 3 bathroom $1.465 million ($1,214 psf)
| Phase | 2020 |
| Phase 1 | 131 |
| Phase 2A1 | 49 |
| Phase 2A2 | 40 |
| Phase 2B | 53 |
| Phase 2C | 105 |
Editor Notes: Condo options within 1km of Maha Bodhi are limited to developments at the edge of the boundary, closer to the PIE. The 3 I have selected are on the Eunos / Ubi side as opposed to a couple of apartments available at the Kembangan estate.
Address: 212 Jalan Eunos, S(419537)
Unit types: Studio, 1, 2, 3, 4, 5 BR
Total units: 748
Built year: 2016
Tenure: 99 Years
Developer: Far East Organisation
Description: euHabitat is unique because it has a combination of SoHo, townhouses and normal apartment unit types, catering to a wide range of buyers.
Given the large number of units, there are also a good number of facilities available – no tennis courts sadly, but there are 3 pools available for the condo units (30m, 40m and 50m) and another 4x 25m lap pools for the townhouses.
Coupled with kid’s adventure zones, lounges, pavilions and cabanas all around the development, your family will not be short of spots to relax and chill out.
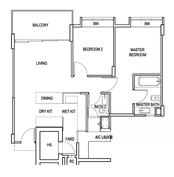
A 3 bedroom 2 bathroom 1,173 sqft unit is being listed for $1.47 million ($1,253psf). The layout is pretty typical of a 3 bedroom unit and has a dry and wet kitchen and a home shelter.
There is a bit of a walkway leading into the unit and comes with a good sized balcony for those who enjoy the al-fresco lifestyle.
Connectivity wise, Kaki Bukit and Ubi MRT are both about 850m (11 mins) away by foot. Not the nearest by any measure but you should definitely try the walk yourself if you are interested in securing a condo within 1km of Maha Bodhi.
Address: 178 Jalan Eunos S(419530)
Unit types: 2, 3, 4 BR
Total units: 48
Built year: 2020
Tenure: Freehold
Developer: Roxy-Pacific Holdings
Description: The Navian is literally just beside Euhabitat and is part of an odd little nook similar to that of the new launch NoMA at Geylang.
The Navian is an amalgamation of 2 land plots acquired by Roxy Pacific in 2016 and 2018.
Evidently, this development has a way smaller land plot than its neighbour but its key selling point here is its freehold status. Whether you prioritise facilities over the land tenure would be a call you will have to make.
Developer units were 100 per cent sold after its launch but there is a ground floor listing for a 3 bedroom (+ guest room) 2 bathroom 893 sqft unit going for $1.47 million ($1,647sqft).
Despite its small size for a 3 bedroom unit, it does come with an enclosed kitchen. The other 2 common rooms should fit a Queen bed with not much room for anything else.
The Navian still comes with decent facilities such as a pool and BBQ pits and its main selling point over euHabitat would be its Freehold status.
Connectivity wise, Kaki Bukit and Ubi MRT are both about 850m (11 mins) away by foot. Not the nearest by any measure but you should definitely try the walk yourself if you are interested in securing a condo within 1km of Maha Bodhi.
Address: 3 Foo Kim Lin Road S(419679)
Unit types: 1, 2, 3 BR
Total units: 105
Built year: 2016
Tenure: Freehold
Developer: Feature (East) Developments Pte Ltd
Description: Yet another new development in the vicinity, Tropika East sits snugly between euHabitat and The Navian in terms of land size.
It is also situated just beside the 2 developments and is also of freehold status. Facilities are also decent and similar to those found in The Navian – swimming pools, BBQ pits etc.
This 2 bedroom 2 bathroom unit is being listed for $1.1 million ($1,439 psf) for a 764 sqft unit. This unit has a slightly more unique layout, with no wasted corridor space and the option of converting the common bedroom into an ensuite as well.
As with most of the other layouts here so far, the kitchen is also enclosed. However, the living room is pretty narrow so that might be a consideration especially if you are thinking of having some friends over often.
Connectivity wise, Kaki Bukit and Ubi MRT are both about 850m (11 mins) away by foot. Not the nearest by any measure but you should definitely try the walk yourself if you are interested in securing a condo within 1km of Maha Bodhi.
| Phase | 2020 |
| Phase 1 | 107 |
| Phase 2A1 | 38 |
| Phase 2A2 | 33 |
| Phase 2B | 21 |
| Phase 2C | 91 |
Editor Notes: If you would like to purchase a private property with the criteria set out above within 1km of Gongshang Primary, you will only have 1 development to consider – Citylife @ Tampines, an Executive Condo.
Address: 57 Tampines Central 7 S(528593)
Unit types: Studio, 1, 2, 3, 4 BR
Total units: 514
Built year: 2016
Tenure: 99 Years
Developer: SingHaiYi, Amara, Kay Lim Holdings
Description: The first luxury-hotel styled Executive Condominium project in Singapore, CityLife@Tampines sold 90 per cent of its units just 2 days after its launch, and was completely sold out very soon after.
It boasts several interesting facilities benefitting of its claim, including a Home Concierge Service, a 100m infinity lap pool and resort style landscaping.
This 3 bedroom 2 bathroom unit is 1,130 sqft and asking for $1.2 million ($1,062psf).
It comes with an enclosed kitchen, a yard and home shelter, all important features that can only be found more frequently in resale developments these days. There are also balconies in both the living room and master bedroom.
Connectivity wise, Tampines MRT, which is an interchange is 9 mins (650m) away, linking you to both the Downtown and East West Lines.
You will also find the 3 large malls there – Century Square, Tampines 1 and Tampines Mall. Sun Plaza Park is also just opposite Citylife @ Tampines.
So that wraps up our guide on 16 suitable condos within 1 km to popular primary schools in the East. Keep a watch out for more guides to different regions in Singapore soon!
This article was first published in Stackedhomes.