Dairy Farm Residences review: 84m infinity pool and 40,000 sq ft retail

Overall Rating
Affordable home with doorstep conveniences at Dairy Farm
Dairy Farm Residences allows you to combine the convenience of a mall and the allure of peaceful surroundings. However, if transport convenience is important to you, its 1km distance from Hillview MRT and from the Downtown Core might make this project a little less attractive.
Unit efficiency
4.5
Squarish and regular layout for all units with no odd corners
Unit size
3.5
Standard unit sizes. No 1 Bedrooms in this development.
Quality of fittings
4
Decent quality for its price point
Design
3.5
Residential blocks are plain but extra points for the 84m infinity pool
Variety of Facilities
4.5
Good offering for just 460 units
Quality of Facilities
4
2 pools, 1 tennis court and plenty of inviting dining spaces
Surrounding Amenities
4
Mall right at your doorstep with a supermarket and food hall. Otherwise, amenities are lacking in the vicinity.
Developer
4
Reputable local developer now backed by Yanlord Land
Transport Links
3.5
1km from Hillview MRT with free shuttle bus for the 1st year
Driving Accessibility
3.5
Close to BKE but a distance from the Downtown Core
Price Point
3
One of the cheaper new launches but expect more competition up ahead
| Project: | Dairy Farm Residences |
|---|---|
| District: | 23 |
| Address: | 4, 6, 8, 10 & 12 Dairy Farm Lane |
| Tenure: | 99-year leasehold from 05/12/2018 |
| No. of Units: | 460 |
| Site Area: | 211,485 sqft |
| Developer: | United Engineers Limited |
| TOP: | 2024 |
Let’s start with a little titbit on the origins of Dairy Farm.
For those of you who are new to Singapore, the origins of road names in Singapore are often attributed to prominent community and business leaders (Aljunied, Boon Tat St), places tied to the British colony (East Sussex Lane, Bishopsgate), fruits and plants (Chiku Rd, Cactus Cres), and regions from which communities tended to congregate at (Arab St, Ceylon Rd).
Dairy Farm’s name is both self-explanatory and an oddity, especially when you consider what the area is like now – peppered with condos and nature reserves (in case you were wondering). Clearly, this wasn’t always the case.
Back in the 1930s, Fred Heron, then Managing Director of Cold Storage, founded the world’s first tropical dairy farm. This won him worldwide acclaim, as it was unprecedented to rear Friesian cows in a climate like ours. At its peak, there were 800 cows in that farm.
The purpose was to produce fresh, pasteurised milk for expatriates’ children back in the day. Ultimately, the dairy farm ceased its operations in the 1970s but its name has lived on. If you are interested, Mothership ran an article on Dairy Farm’s history here.
But enough about its history, let’s move on to the development proper. The launch of Dairy Farm Residences in November 2019 is the first in the Dairy Farm area since 2013, when the 420-unit Skywoods development was launched. Of course, if we were to include the nearby Hillview area, there were more launched in the years after with Midwood and Mont Botanik being the current new launches around.
In our recent Midwood review , we mentioned that only 4 per cent of their units were sold over its launch weekend in October 2019. Well, Dairy Farm Residences fared slightly better in the month after, with 8 per cent or 35 units sold over its first weekend. Definitely not sizzling by today’s standards.
Despite Midwood’s closer proximity to Hillview MRT, I’m guessing that Dairy Farm Residences had slightly better sales due to two reasons – the mixed use development component with ~40,000 sqft of retail space and a slightly more affordable psf of between $1,550 – $1,650 psf.
So without further ado, let’s dive straight into what facilities Dairy Farm Residences has to offer!
I’ll start with what is arguably an important selling point of this project – the commercial retail component that will offer residents everyday conveniences at their doorstep. Spread across two floors over some 40,000 sqft of space, the retail component will be managed by United Engineers, who have prior experience managing Rochester Mall and UE Square.
The commercial component here will be curated and will house a gourmet supermarket, food hall, childcare as well as F&B outlets. For context, the retail component here will be slightly smaller than the 50,000 sqft Rail Mall and the 53,150 sqft HillV2 nearby.
Do not underestimate the importance of the mall being developer-managed, as many mixed developments that have sold retail shop lots to individual buyers have seen poor rental take-up rates. That in turn, may decrease the attractiveness of a development.
Off the top of my head, I can think of City Gate, Stars of Kovan, and KAP Mall with poor take-up rates, with the latter having 28 shop owners collectively sue Oxley for misrepresentation before it was revived following the intervention of prominent ophthalmologist Dr. Julian Theng and his sister, corporate lawyer Lisa Theng.
So I’m definitely happy to see here that the mall would be properly managed. Get that tenant mix right, and it would be a huge amenity for the area.
This may greatly depend on personal preferences, but I really like how most of the shops are located away from the main residential blocks.
So it does give some semblance of privacy to residents, but yet the shops are still located close by. It’s an arrangement you don’t see often as the residential blocks are usually built atop the mall due to the lack of space – so the way it’s been laid out here is quite refreshing.
In a way, the shorter blocks get the shorter end of the stick as well (see what I did there?), so depending on how crowded some of these shops may get, residents living above should expect some form of noise. It’s a trade off for convenience so you will have to weigh out what’s more important for you.
There are separate entrances to the carpark for both residents and mall visitors, which helps to give more privacy to residents. The driveway leading to the mall is an oddly long stretch though.
There will be 57 lots catered to visitors of the mall and a further 460 for residents, a one-to-one ratio that ought to be expected for a development that is neither particularly near to the MRT nor close to the city. More than half the units here are two bedroom units too, so I would expect that carpark lots here should be adequate even for the bigger units.
In paying tribute to Dairy Farm’s past, there’s even two cow sculptures here, which I think is an interesting and thoughtful touch. For those taking the bus to get here, there will be a sheltered walkway all the way to the nearest bus stop at Petir Road.

The residential component is made up of two 15-storey blocks and another two 5-storey blocks with a total of 460 units, making this a mid-sized development. This is an L-shaped plot of land, with about 220m frontage towards Petir Road and the vast greenery surrounding it.
There are a total of three floors worth of facilities, with each having a different themed name – Woods, Canopy and Oasis – although I’m not sure if there is that much to distinguish between them.
At 211,485 square feet of land, this is a sizeable plot. For those keeping score, this is quite significantly bigger than the nearby Midwood plot (153,882 square feet) and with fewer units to boot too. So if you are looking for more space, this could be a more suitable option to look at.
Starting first with the Drop Off and Atrium Lobby at Dairy Farm Lane, I like it that this is currently the only residential development along this road, making this an exclusive one although there is also an educational institution – the German European School Singapore (GESS International School) here.
Of course, do note that things will probably start getting busy here once the neighbouring residential plots are tendered for sale. For now though, these are peaceful surroundings, even when I visited during after-school hours at GES. It is after all a big point of why buyers are looking at such a location.
There are two lanes for vehicular entry, 1 for exit, and a squarish drop off point with some plants and a tree as the centrepiece. The drop off itself does look a little tight and might pose a bit of trouble when Grab drivers have to wait to pick residents up.
I would have figured with that land size, a more sizeable arrival area could be attributed here. You don’t really get a sense of the development’s offerings through this, which is a pity. I’d like to add though, this isn’t a big deal at all and just a topic of discussion!
Just after the lobby on Level 1 is where you will be greeted by the 50m Lap Pool, one of 2 pools within the development, with the other being the 84m infinity Valley Pool on Level 3. It must be said that despite the length of the other pool, this 50m Lap Pool is the more practical one for serious swimmers due its more regular shape.
Lining the pool on both sides are the standard pool decks on one side and cabanas on the other. Definitely more than sufficient for 460 units! I really like that the distance from the pool to the units is quite substantial too so you don’t get that boxed-in feeling that you sometimes get with smaller developments.
Overall, the design isn’t exactly much to speak about. Save for the valley pool (that you’ll see shortly), it is quite ordinary to look at. Taken positively, it’s a safe choice, and it is a harmonious look that I think people would take a liking to easily.
Moving further on is where you will find spots to host your friends and family such as the Banquet and Grill House, with the latter being located on the outer rim of the development and close to the Outdoor Fitness areas and Jogging Trail. It’s a quiet spot set away from the rest of the development which does allow for a more private gathering.
At this point in time, these will be facing the open space across Dairy Farm Walk, so you will have a nice expansive view to look out to as well.
Now let’s move along to the shorter residential blocks.
In between both the shorter residential blocks is the water court, basically a sheltered pavilion of sorts.
Before we get to the main facility deck/shops (named The Oasis), there is a Grand Atrium area where you’ll find more water features surrounding a seating deck along with a large feature tree.
They’ve certainly gone all out to make sure the entire space is decorated with greenery, and that emphasis is in keeping with its immediate surroundings as well.
Moving up to the top is the Hilltop Bar and Function Room. It looks to be a nice enough space that you can hold indoor events at, which is always welcome in Singapore’s unpredictable weather.
So the facilities area is split into two parts, level 2 and level 3 (where the pool is). On Level 2 is where you will find more BBQ Pits as well as different lounge spaces and gardens, each with creative names such as Stream Walk, Fern Garden and Mist Garden among others.
I have two small gripes about these spaces – firstly, because there is another floor of facilities above it, this space might turn out rather dark and claustrophobic. Of course, if these remain equally well-lit at night there isn’t an issue.
It could yet prove to be a very romantic setting, but not the most practical so that will be something that remains to be seen until it is built. (Side note, I do like how the trees appear from below the pool though, it does make for a unique view).
Secondly, all of these facilities fronts Petir Road, which has a pretty big Heavy Vehicle Parking area located just opposite – which isn’t really the best view for now
All that said though, it does shape up to be a very different proposition with regards to common spaces within a development so I am happy to be proven wrong once the project is built.
Besides the dining facilities on the 2nd floor, you will also get a tennis court, which is commendable for a 460 unit project! It is also strategically located right at the end of development, just beside the football pitch at the GESS International School and minimises the noise pollution for residents.
Additionally, the gym is also located at the corner, boasting of natural light flowing through all day long. (Hence the name, Sunrise Gym).
Finally, moving on to Level 3, the highlight is undoubtedly the 84m infinity Valley Pool. While the developers have milked it by giving each nook along the pool a different name, I’m going to take the infinity pool as a single facility.
I like the infinity concept of the pool, which allows residents to blend in with nature. The pool once again fronts the Heavy Vehicle Parking but is probably just about high enough to give you greenery views of some form. It is also irregularly shaped, with clever coves being shaped out for residents to soak in the views and relax. If getting wet isn’t quite your thing, there are also pool decks for your enjoyment.
I really do like the varied shape of it, and that the pool is set above garden lounges and shops does give off a very country club feel vibe. You hardly get a swimming pool that isn’t completely surrounded by buildings (at least, in the near future), and that would be a plus point on its own.
One thing that Dairy Farm Residences is certainly not short of is dining facilities. On Level 3, you will find an Upper Function Room, Water Lounge, Hilltop Bar and Hilltop Dining areas. These are actually the most premium ones to me, as it is seemingly cantilevered with large window panels fronting Zhenghua Park.
Last but not least, they’ve termed the straightest part of the pool as the kids pool. As it is one long pool after all, I wouldn’t say that this is exclusively a kids pool. So in that regard, perhaps this really isn’t the best if you were looking for children-specific facilities.
Overall though, for 460 units, I’m very pleased with the offerings here at this development – plentiful dining areas, a tennis court and two sizeable pools for residents to enjoy. It’s a major selling point indeed.
Enough about the facilities, let’s head straight to the showflat units!
At 710 sq ft, this 2 Bedroom unit is slightly above average by today’s new launch standards and is one of the larger 2 Bedroom types in this development. The larger unit has the inclusion of a Study.
If you have been reading my reviews, you would know that I generally prefer the dumbbell layout which I find to be more space efficient. For those keen on such a layout, the smaller 2 Bedroom units starting from 624-657 sqft offer you that option, albeit with just 1 bathroom.
Before we delve into this show unit proper, let me walk you through an ongoing furniture promotion the developers are running for the 2 Bedroom units only. For $30,000 more, they are assuring you of a fuss-free move-in.
I’m not going into the specifics but they will essentially be providing you with most of the furniture you need – dining table and chairs, coffee table, sofa set, lighting for the living room, bed frame, mattress and curtains for the Master Bedroom and lighting for the kitchen and balcony. The list goes on by the way.
Who might this be suitable for? Investors who are intending to rent out their units are presumably the target audience, as well as buyers who are not fussy about their furniture choices. They have a display area here at the showflat for those interested in the exact pieces of furniture that will be used.
For this unit, the layout comes with the common corridor instead, although that might just be a worthy sacrifice for the inclusion of a second bathroom. When you step into the unit, you are greeted by the open concept kitchen right away, so you can say that there’s no real wasted space here.
The quartz countertop space here is quite limited and could be a bummer if you intend to cook a lot. That said, the space is wide enough for you to have a movable side table if you so wished.
Electrical appliances are provided by Bosch, and this includes the fridge, oven, induction hob, and washer cum dryer. The sink and mixer are provided by Franke and Grohe respectively.
The kitchen, living and dining areas are arranged in a long, rectangular format, which is relatively typical for smaller units in new launch condos. Just across from the kitchen is where you will be able to build some storage spaces, as they have done with the display shelving here.
The space is quite wide so it does give you room to build quite a fair bit of them here. This is especially important for buyers intending to stay in the unit given the lack of any utility room here.
For all units at Dairy Farm Residences, porcelain floor tiles with marble accents are provided for common areas with vinyl in the bedrooms (standard too, for mass market developments). Ceiling height is average at best at 2.8m.
Adjacent to the kitchen is the dining area, where they have used part of the bench seating to create a 4-seater dining area. Length wise, this area does seem quite comfortable but do bear in mind that the table is quite narrow – more suitable for a 1-dish meal rather than a typical 6-course Asian feast.
To be fair, it is quite a common issue in 2 bedroom units. So do have a careful think of the type and size of your dining table that you’d want to fit in. At worst, you do have multiple dining spaces in the condo grounds to take advantage of should you have a larger group to entertain.
As for the living area, bench seating probably works best as a proper sofa set might be too bulky for the space. The developers were quite ambitious in placing a coffee table set here and you can tell how tight this space actually is after doing so. You will barely get any walking room even with selective furniture (read: compact) chosen for this unit.
Clearly, it would be best to do away with a coffee table altogether to make the space feel more spacious.
Moving onto the balcony, which at 5.7 sqm, is slightly above average for a 2 Bedroom unit. It’s a good-sized space for those who enjoy a bit of outdoors within your own unit.
They have placed two high stools with a bar countertop here and it’s not difficult to imagine this scene playing out, especially with units fronting the massive greenery available at the Chestnut Nature Park. (Likewise, you could move your dining area here, or at the very least have this as an alternative dining space).
Now, moving onto the bedrooms!
As for the Common Bedroom, its 8.8 sqm of size is average in the market. With a Single bed here, the developers have managed to fit in a small study with a lamp. Although compact, this layout is already as practical as it gets for a typical family.
As the aircon ledge is located just outside this bedroom, you will only get half-length windows. As usual, this isn’t the most desirable arrangment.
This room also comes with the standard two-panel sliding wardrobe that stretches from floor to ceiling.
Moving onto the Common Bathroom just opposite the bedroom, its size of 4.6 sqm is the norm in the market as well. It’s pretty standard fare in here, with mirrors stretching from one end to the other and storage spaces behind them.
While there isn’t a rain shower provided, you do get a wall-hung w/c which is most costly than your typical flush toilet. Sanitary wares are provided by Villeroy & Boch while fittings come from Grohe, both reliable European household names within the condo realms.
The bathroom relies on mechanical ventilation so you will have to be conscious of moisture gathering to prevent mould from forming.
As for the Master Bedroom, its 11.8 sqm of space is good for a unit of 710 sqft. Although there is some inefficient space in terms of the entranceway, it does provide you with a better amount of privacy.
With a Queen sized bed in place, as they have done here, you do at least get more room for a bedside lamp and table. Alternatively, you can have a small dresser to help you get ready for work.
Of course, this Master Bedroom is by no means amazing, but it does the job for a 2 Bedroom unit. Similar to the Common Bedroom, you will get a floor-to-ceiling two-panel built-in wardrobe with a bronze accented finish.
The Master Bathroom is ever so slightly larger than the Common Bathroom, at 5 sqm to be exact. Features are similar to those found in the Common Bath, but it does come with an extra rain shower though.
Otherwise, it’s the same mechanical ventilation it relies on and similar quality fittings will be provided. Sanitary wares are provided by Villeroy & Boch while fittings come from Grohe, both European brands trusted by many in Singapore.
Again, it’s nothing spectacular here and will be very much in line with what other new launch projects are offering today.
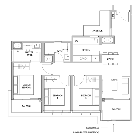
At 936 sqft, this is a regular sized compact 3 Bedroom unit. For those looking for something bigger, 3 Bedroom units at Dairy Farm Residences range from 915 sqft to 1,313 sqft, with the largest unit inclusive of a utility room, an extra WC and PES space on the ground floor.
For all units at Dairy Farm Residences, porcelain floor tiles with marble accents are provided for common areas with vinyl for the bedrooms. Both of these are slightly cheaper than the more typical marble and engineered timber used in new launches these days, but it’s no red flag for me given the lower price point of this development. Ceiling height is average at 2.8m.
Upon entering the unit, you will find the enclosed kitchen directly to your left. Developers are cognizant of the fact that there is demand for enclosed kitchens so almost all 3 Bedroom new launches have them, as with gas hobs.
Well, it’s one thing to have an enclosed kitchen and another to have a substantial one. The one here, at 5.5 sqm of space, definitely belongs more to the compact category.
The developers have at least tried to maximise it by building quartz countertops and top and bottom cabinets on both sides so you have space to store your pots and pans away. I would say that the countertop space is quite limited though.
German maker Bosch supplies the fridge, oven, gas hob, and washer cum dryer while the sink and mixer are provided by Franke and Grohe respectively. There’s a two-panel window here for owners to ventilate the space as they go about their cooking.
What’s lacking, however, is a utility room in this unit type. If you do require one, you do need to look at the bigger 3 Bedroom types here at Dairy Farm Residences that offer you that option.
As we move on to the dining area, it’s very much the same situation. For 936 sqft, I would have frankly expected more. It seems like a struggle to even fit a table of four right here. It’s a scene that we see all too often at new launches – small dining areas, visually maximised only by the use of benches flushed against the wall.
The saving grace for those aspiring to host dinner parties is that there are just so many dining spots among the facilities offered here at Dairy Farm Residences.
Moving on to the living room, the space is a rather long one, where you will be able to place a three-seater sofa set or more. I definitely wish that more of this space could have gone to the dining area instead.
It is a consequence of the way the unit is laid out, as the entrance to the hallway is already set – so the dining area will always be constrained, unlike those units where the dining and living are joined together.
In that sense, those layouts are a lot more flexible as you can pick and choose just how much space you want to allocate depending on your lifestyle.
Width-wise it is passable but is more run-of-the-mill rather than being particularly outstanding compared to its new launch peers. That said, it does feel more spacious compared to the 2 Bedroom unit reviewed earlier. After all, this unit is 32per cent larger.
Collectively, the living and dining areas make up 27 sqm of space, which compares with 26.3 sqm in the 2 Bedroom unit, although the latter also includes the kitchen.
The balcony is one with 5.6 sqm of space, which is in fact 0.1 sqm smaller than the one found in the 2 Bedroom showflat. Nevertheless, this is still a practical space that can be utilised. They have gone with plants and just a simple coffee table with a couch chair here, although you will notice that there is still room to fit another chair at least.
On to Bedroom 2, which is just adjacent to the living room at 9.4 sqm of space. I would say the market average is between 8.8 sqm to 9.5 sqm so this comes in at the higher end of the scale. Not that you’d be able to fit plenty more to be honest.
With that Queen sized bed they have gone with here, they have just about sufficient space to have 2 bedside tables.
Unless you plan on having the other common bedroom as a study, going without a table in a bedroom is probably not the most practical choice. Once again, you will get the standard 2-panel built-in wardrobe included as well.
While it’s most typical to have the other common bedroom just beside, this layout is slightly more efficient as it saves on the corridor space by having it located directly opposite the Master Bedroom instead. Although this does mean that neither common bedroom will have an attached bathroom.
At 9.6 sqm, this room is slightly larger than the other bedroom. You will be greeted by the built-in wardrobe when you first enter and they have done this room up as a kids’ room. It’s a cute space, with a bed on top and a small kids study below. There’s even a mini bookshelf to store your child’s books away. Definitely a very cosy setup.
Although I must say, I have questions about the safety of the space given the lack of bed rails. For older children, a Single bed and a Study by the windows would fit just right as well.
And while the AC ledge at this unit is well located, it’s a little unfortunate to see that this unit would not have a full set of windows. It is still floor to ceiling, except that in this case it has been halved width wise.
As for the Common Bathroom, which is shared between the 2 Common Bedrooms, it is pretty much standard, size and features wise. You get storage cabinets behind the mirrors, which is always helpful and marble-accented tiles laid across the entire bathroom.
As with the 2 bedroom units, there’s no rain shower here. Otherwise, you still get a wall-hung WC and good fittings and sanitary wares from established European brands such as Villeroy & Boch and Grohe. The other plus point here is that you get windows for natural ventilation of the bathroom.
We move next to the Master Bedroom, which at 14.5 sqm, is definitely more comfortable than its common bedrooms. There’s even a bit of a walkway before you reach the bed proper, which gives that additional touch of privacy. The bathroom door in this instance, does not face the bed directly, for those of you considering it from a fengshui perspective.
Features wise, you get your standard built-in wardrobe from floor-to-ceiling, as well as large full-length windows that will let in a good amount of light and ventilation.
The upside to bigger units, especially 3 Bedroom and above, is that your windows are almost always full length, unhindered by the AC ledge, which will be placed next to the kitchen instead.
As always, there is a two-panel wardrobe included by the space afforded is almost never enough for most couples.
Finally, onto the Master Bathroom, which is sized at 4.9 sqm. The main difference will lie in the inclusion of a rain shower here. Features wise and size are otherwise similar to those that you find in the Common Bath.
There’s also a window here to ensure that moisture doesn’t gather as quickly. Good European brands are used for the sanitary wares and bathroom fittings here, including Grohe and Villeroy and Boch.
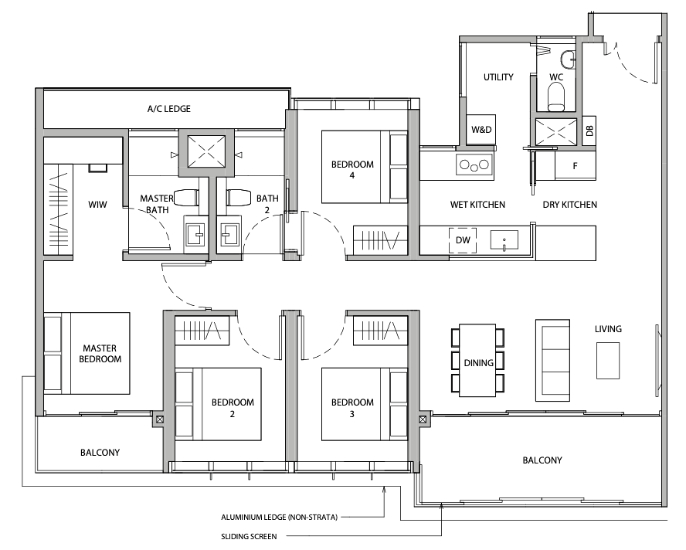
This 4 Bedroom show unit here is the smallest that Dairy Farm Residences has to offer, with the other unit being marginally larger at 1,335 sqft and ground floor units being 1,475 sqft. I would say the size for this unit is average for 4 Bedrooms in the new launch market.
The ceiling height in all units is 2.8m, which is standard. While the flooring provided will be porcelain floor tiles with marble accents in the common areas and vinyl for the bedrooms. As you might expect for a project at this price point, there’s no private lift access available for the bigger units.
For a unit of this size, having an entrance walkway is expected especially where privacy is concerned. The area gives you the flexibility of placing a bench, as they have done here, to put on your shoes in comfort.
There’s also room to build more shoe cabinets which will come in handy especially if you have a large family staying here.
As with most 4 Bedroom units, they have a dry kitchen here, which is basically an island countertop, with additional storage spaces below and cabinets built behind it.
I like to call it a pseudo dry kitchen as without a hob and sink it is really just additional countertop space. So while I do like the additional space, it doesn’t actually increase my usability of the kitchen.
On the brighter side, it can double up as a breakfast counter or just a space to grab a quick meal as well.
This space also houses a 2 door Bosch fridge, which is expectedly the largest fridge you’d find among the show units I have reviewed here (Yes, it’s a good size). The cabinets are all in the same wood grain-like texture that blends in with the rest of the theme at Dairy Farm Residences.
As you enter the wet kitchen, you will find even more cabinets built in for your family’s needs. Having these cabinets might look like an overkill now, but I think you’d be thankful for them especially if you are not a first time buyer.
A small point to note though, 1 panel of the bottom cabinet here has clearly fallen off and I certainly hope it’s not an indication of poor workmanship in the development.
That aside, you do get a plexiglass feature here so that helps to integrate the kitchen and the living room more. There’s also a dedicated microwave, oven, 3x gas hob, and hood provided by Bosch. Of course, not forgetting the windows which are an important feature for homes who regularly engage in heavy cooking.
Moving further in, this is where you would find the utility room and additional WC at the end. This utility room here also houses the separate washer and dryer, both also by Bosch, which makes the 3.8 sqm space look even narrower. While the utility room would usually be used as either the helper’s room or a storeroom, it looks like a tricky situation here.
The mirrors here help to enhance the perception of space, but it doesn’t take long before you realise this is basically a cramped space made worse by the washer and dryer, which ought to be stacked on top of each other anyway. As for the WC, there’s nothing much to shout about and I have seen some families who use that space as a storeroom as well.
Moving on to the main living room is where you will find the dining and living laid out in parallel form. This is common for the larger units and will typically allow a six seater dining set, as they have done here. It’d be difficult to place a table that is any longer as it will impose on the corridor leading to the bedrooms.
At least they were realistic with the placement of the dining set – I’ve seen some with seats on one side literally flushed against the wall. Overall, the width of space here is decent and good enough for comfortable dining.
As for the living room, having a L-shaped three seater sofa set should fit in nicely. Of course it’d be better to be able to fit more people, especially when you have friends over but well, if it hasn’t already hit you, let this sink in – real estate in Singapore is costly.
Do also realise that while there is a coffee table here, there isn’t a TV console so you will have to factor that in as well.
The total balcony size is big – 14.8 sqm to be exact. To put it in context, this is larger than the Master Bedroom in the 3 Bedroom unit above. However, they have included the balcony found in the Master Bedroom in this calculation as well.
In any case, let’s see what they have done with this space. With a cocoon swing chair, two arm chairs, and a small coffee table, you can see that this space is not the best width-wise, so it will be difficult to have a proper al-fresco dining set.
However, it is long length-wise, and will thus be able to accommodate more chairs, albeit in bar counter style.
Let me show you a shot from the outside so you can better judge the space available.
Bedroom 3 is the common bedroom adjacent to the living room and measures 9.5 sqm, which is at the upper end of average room sizes in new launches. With a Single bed in place, the room definitely feels roomy.
It also helps that the study table was flushed against the windows and also a narrow one, to begin with. It’s definitely something you can consider to maximise the room space.
Besides that, there’s also the usual built-in wardrobe you can expect from the developer. It’s a cosy set up and yet gives you enough space to walk around comfortably.
Bedroom 2 is just beside Bedroom 3 and is similarly sized at 9.5 sqm. They have gone with a Queen sized bed here to highlight the different layouts you can explore with the common bedrooms. While it’s more comfortable for the occupant, it’s also less practical, since there is neither room for a study nor a dresser.
Of course, one of the bedrooms could be turned into a proper study to serve that purpose, as the developers will show in the final common bedroom, Bedroom 4. Otherwise, you can also expect a 2-panel wardrobe to be provided by the developers here.
Much as what you’ve seen so far, there’s nothing truly special to highlight in the units here. It’s more or less the same that you might have encountered if you’ve been house hunting for awhile.
Bedroom 4 measures in at 9.4 sqm, which is still on the larger side for new launches. This room has access to the only other common bathroom in the unit, which will also be shared among the two other common bedrooms.
So while it gives the occupant in this room more convenience, it might still be a rush in the morning, depending on how many of these rooms are occupied. I would say that three bedrooms sharing a single bathroom will be a squeeze, so do consider that carefully.
Nevertheless, they have done up this room more like a study, with some bookshelves by the side. This is also actually a space-saving Murphy bed, which can be stowed away easily (as it is here in the photos) or used as a guest room when required.
It’s practical, but people are put off by its slightly higher price sometimes. It still comes with the standard built-in wardrobes just in case you were wondering.
Bathroom 2, which is connected both to the common corridor and Bedroom 4, measures at 4.5 sqm, an average size. There’s natural ventilation in here with windows provided so you don’t have to be too worried about mould growth.
You get a wall-hung WC and good fittings and sanitary wares from established European brands such as Villeroy & Boch and Grohe.
Finally for the Master Bedroom, they have gone quite over the top by new launch standards. They have a balcony here, as well as a walk in wardrobe, which are both commendable as they give the owners of the house more to look forward to when they get home.
The balcony space allows you to have a morning stretch while breathing some fresh air from your green surroundings. The space afforded is not too shabby too, and with only just two inward facing stacks of the 4 bedroom units, the views wouldn’t be too bad at all.
The master Bedroom itself stands at 10.8 sqm, with the walk-in wardrobe adding another 5.2 sqm of space. The balcony space collectively forms 14.8 sqm when coupled with the one found in the living room.
A King-sized bed fits well here, and with space for a dresser at the walk-in wardrobe, so you can have a rollin’ good time here at night.
The walk-in wardrobe, while it might still be just two sliding panels, it is larger than those you find in the other bedrooms. The ability to place a dresser here also makes this space instantly more practical for those required to get ready for work.
As for the Master Bathroom, it does feel a little plain considering how the rest of this Master Bedroom has tried to oomph things up. It’s an averagely sized space, with a rain shower as the main differentiating factor from the common bathroom.
There’s also a window here for natural ventilation and you still get your bathroom wares and fittings supplied by quality brands such as Villeroy & Boch and Grohe.
This development is located right at the edge of the Dairy Farm and Chestnut Nature Parks (read: large swathes of greenery) that you will probably not find anywhere else in Singapore. However, with that comes an element of inconvenience, in my opinion at least.
While I can personally look past its ‘far West’ location, especially if you have grown up in the West, I find that the distance to Hillview MRT is not too helpful for my consideration. Well, at least there’s direct (and sheltered) access to the nearest bus stop, which will be located just by the mall.
Many marketing materials put the distance to Hillview MRT at 10 minutes, but a simple Google Maps search will tell you that it probably takes you ~14 minutes (1 km) to get there. The saving grace, if anything, is that most parts of the route are sheltered. The developer will also be providing free shuttle bus service from the development to Bukit Panjang and Hillview MRTs for the first year, saving you some walking time especially when the weather turns south.
As for those who drive, despite Dairy Farm Residences’ proximity to the BKE, drive times are still relatively lengthy although I do note the slight improvement over Midwood due to this project’s proximity to the expressway.
| Grocery Shops | Distance From Condo (& Est. Walk Time) |
| HillV2 Cold Storage | 1.2 km, 14-min walk |
| The Rail Mall Cold Storage | 1.2 km, 14-min walk |
While the nearest grocery stores are some distance away, the biggest advantage to Dairy Farm Residences in the future would be an onsite supermarket at its retail section.
| School | Distance From Condo (& Est. Walking Time) |
| GESS International School | 0.1km, 1 min |
| CHIJ Our Lady Queen Of Peace | 1.3km, 16 mins |
| Bukit Panjang Primary School | 1.5km, 19 mins |
| Fajar Secondary School | 1.4km, 17 mins |
| Bus Station | Buses Serviced | Distance From Condo (& Est. Walking Time) |
| Aft Dairy Farm Rd (Petir Rd) Id: 44369 | 966, 973, 971 | 450m, 6 mins |
| Opp Dairy Farm Rd Id: 43069 | 67, 75, 170, 171, 178, 184, 961,961C | 450m, 6 mins |
Nearest MRT: Hillview MRT (1km, 12-15 mins walk)
| Key Destinations | Distance From Condo (& Est. Peak Hour [0830] Drive Time) |
| CBD (Raffles Place) | 22.4 km, 39 mins |
| Orchard Road | 11.5 km, 24 mins |
| Suntec City | 18.0 km, 30 mins |
| Changi Airport | 26.9 km, 33 mins |
| Tuas Port (By 2040) | 33.3 km, 42 mins |
| Paya Lebar Quarters/Airbase (By 2030) | 16.5 km, 30 mins |
| Mediapolis (and surroundings) | 15.3 km, 27 mins |
| Mapletree Business City | 16.9 km, 31 mins |
| Tuas Checkpoint | 23.2 km, 27 mins |
| Woodlands Checkpoint | 9.8 km, 12 mins |
| Jurong Cluster (JCube) | 11.5 km, 17 mins |
| Woodlands Cluster (Causeway Point) | 10.3 km, 17 mins |
| HarbourFront Cluster (Vivo City) | 20.0 km, 34 mins |
| Punggol Cluster (Waterway Point) | 24.5 km, 31 mins |
Immediate road exits: 1 – Dairy Farm Lane, which leads on to either Petir Road or Dairy Farm Road, which can take you on to BKE a short distance after.
United Engineers is one of Singapore’s oldest companies, having been founded in 1912 and was instrumental in the construction of some of our most famous landmarks including the former Supreme Court, Cavenagh Bridge and OCBC Centre.
They have since diversified into more business lines, including Property Rental & Hospitality, Property Development, Engineering and Distribution, and Manufacturing. Some of their residential property portfolio include The Rochester, Kovan Melody and Ascentia Sky.
They were previously listed on the Singapore Exchange before being bought out by Chinese developer Yanlord Land for $1.7 billion in 2019.
DP Architects is one of Singapore’s most recognisable practices. Since its founding in 1967, it had its hand in Singapore’s history with brutalist concepts such as People’s Park Complex and Golden Mile Complex.
More recently, they have helped with the design of projects such as 8 St Thomas, Frasers Tower, Woodleigh Residences, and Dairy Farm’s Hillview competitor Midwood, which we covered in an earlier review.
Dairy Farm Residences sits on an unusual L-shaped plot of land, hence its unique layout arrangement. It isn’t a bad thing, as it does result in the residential and facilities sections to be set apart, which will help in the noise department.
Also while residents are close to the shops, that nearly separate section does again help with giving some privacy.
There have been concerns over the electric substation located just outside the development. I know some people are concerned that it may be harmful, while others aren’t bothered at all.
It’s something that has been argued about for a long time – but there’s nothing really conclusive that you can draw from the different studies either. My take is that it isn’t a dealbreaker to me for sure, and neither will it be the first or the last development to be located next to one.
| Unit Type | Size | No. of Units |
| 2BR | 624 – 775 sqft | 240 |
| 3BR | 915 – 1,313 sqft | 200 |
| 4BR | 1,324 – 1,475 sqft | 20 |
The unit mix here is one of the more straightforward ones out there. There are no 1 bedroom units, which I personally feel does not have much demand in the Dairy Farm area anyway. The majority of units here are 2 and 3 bedrooms, although I must say 624 sqft is very compact for an OCR project.
Nevertheless, the 3 bedrooms start from a comfortable size and 4 bedrooms are sizeable as well. When compared to Midwood, its closest new launch competitor, units here are slightly larger.
About 90 per cent of units here at Dairy Farm Residences are North-South facing, so the undesired West sun will not be much of an issue except for Stacks 35, 36, 41 and 42 of Block 12.
Besides the internal pool facing units, the external facing units actually get a selection of unblocked views to choose from, both of which I would certainly have no complains about.
[[nid:532856]]
For units facing Petir Road, you get boundless greenery views of the Central Catchment Nature Reserve looking into the horizon. This is perhaps my most preferred view because these views are likely to be permanent for a long time.
As for units facing Dairy Farm Walk and Dairy Farm Lane, you will get unblocked views of the Chestnut landed estate, which is by the way, one of rare Good Class Bungalow estates located outside the prime districts of 10, 11 and 21.
The only trouble though, is that these views are unlikely to be permanent, for lower-floor units at least. URA Masterplan indicates 3 residential plots surrounding Dairy Farm Residences, with another catered for a place of worship and an educational institution.
The final external-facing units would be from Block 6, which faces GESS International School and its football field. I wouldn’t mind watching from my unit if there’s some mini-Timo Werner action right there!
Given that most units are north-south facing, having lots of afternoon sun isn’t much of an issue here. For south-facing units, expect some afternoon coming in towards the end of the year, while north-facing units would face some of the heat towards the middle of the year.
Stacks with the least afternoon goes to (no surprises here) the east facing units! These are stacks 37 – 40 and 32 – 33. That’s not to say it would not get hot in the morning to afternoon though, as it does face the morning sun all-year round.
If you are considering Dairy Farm Residences, you will undoubtedly compare it against its neighbouring developments. So here is how it stacks up!
| Development | Units | Psf | TOP | Tenure |
| Dairy Farm Residences | 460 | $1,582 | 2024 | 99 Years from 2018 |
| Midwood | 564 | $1,643 | 2024 | 99 Years from 2018 |
| Eco Sanctuary | 483 | $1,236 | 2016 | 99 Years from 2012 |
| The Skywoods | 420 | $1,310 | 2016 | 99 Years from 2012 |
| Foresque Residences | 496 | $1,175 | 2014 | 99 Years from 2011 |
| Tree House | 429 | $1,114 | 2013 | 99 Years from 2009 |
| The Dairy Farm | 477 | $1,333 | 1989 | Freehold |
When doing the price review for Midwood, there were just so many condos in the vicinity to choose from. I have chosen a whole different set of developments for comparison here to better match developments closer to Dairy Farm Residences.
Dairy Farm Residences is offered at four per cent discount over Midwood, which is understandable as the former is more inaccessible MRT-wise but has the advantage of having a retail mall just downstairs.
Units here at Dairy Farm are also don’t have to deal with privacy screens in their balconies, since the MINDEF facility is a distance away. Therefore, it will come down to whether you prefer accessibility to the MRT or to everyday conveniences.
As for the resale condos nearby, they are between 18 per cent-30 per cent cheaper than Dairy Farm Residences on average, with Tree House being the cheapest and oldest at eight years old.
[[nid:532351]]
If you were to do a simplistic calculation and take the average psf of the resale developments and run rate the numbers back to a 99 year tenure, you will notice that most will still be slightly lower than Dairy Farm Residences’ average psf. While I do think that an 18 per cent-20 per cent premium is acceptable,
I do think that the 30 per cent gap is pretty wide given that these condos are still relatively new in the grand scheme of things.
But let’s dive further to explore.
The Dairy Farm area isn’t exactly known for excitement and growth. On the contrary, we see this more of an area meant for nature lovers. Condo names like Skywoods, Eco Sanctuary and Tree House are more than telling of the type of area it is in.
Furthermore, there are numerous GLS sites that point to suppression of price growth here, as there is an ample supply of sites zoned for residential purposes.
Couple this with a lack of growth story in the vicinity and we can see why we can’t expect much capital appreciation here.
But how has $PSF in this district fared over time? Here’s what it looks like compared to its neighbouring districts in the west (D25 excluded as it’s considered north).
$PSF growth of D23 compared to west side districts
Chart: Comparing $PSF of resale condos in districts 5, 21, 22 and 23 (west). To avoid distortion in $PSF due to new sales, only resale data is taken into consideration here.
As you can see, district 23 started off quite close to districts 5 and 21 in the late 1990s. During the early 200s when the market was sluggish, $PSF was relatively close to each other.
However, since 2006, $PSF for district 23 started to diverge with district 5 (the Clementi/Queenstown area) and 21 (the Upper Bukit Timah area). Even district 22 which was low prior to 2008 surpassed district 23’s $PSF.
Now that we’ve seen how the district 23 $PSF, let’s take a look at how Dairy Farm Residences prices fare against condos in the vicinity.
| Projects | Tenure | 1BR | 2BR | 3BR | 4BR |
| Eco Sanctuary | 99 yrs from 25/04/2012 | $692,600 ($1,369 psf) | $885,241 ($1,301 psf) | $1,218,000 ($1,233 psf) | $1,950,000 ($1,426 psf) |
| The Skywoods | 99 yrs from 21/12/2012 | – | $851,200 ($1,331 psf) | $1,299,250 ($1,337 psf) | $1,589,000 ($1,265 psf) |
| Tree House | 99 yrs from 23/11/2009 | – | $860,000 ($1,080 psf) | $1,316,278 ($1,142 psf) | – |
| Foresque Residences | 99 yrs from 10/01/2011 | $626,000 ($1,353 psf) | $868,000 ($1,241 psf) | $1,350,600 ($1,162 psf) | $1,670,000 ($1,166 psf) |
| Midwood | 99 yrs from 01/10/2018 (New Launch) | $799,939 ($1,650 psf) | $1,116,308 ($1,650 psf) | $1,439,923 ($1,611 psf) | – |
| Dairy Farm Residences | 99 yrs from 05/12/2018 (New Launch) | – | $1,059,923 ($1,600 psf) | $1,615,641 ($1,574 psf) | $2,010,284 ($1,493 psf) |
| The Dairy Farm | Freehold | – | $1,620,000($1,316 psf) | $2,380,000($1,222 psf) | $2,410,000($1,131 psf) |
These are the average bedroom prices by quantum and $PSF. For resale developments, data was taken from June 2020 – June 2021 (incomplete). Data for new launches Midwood and Dairy Farm Residences were taken from all sales, so these prices are the average across all bedroom types.
Do note that these are averaged according to the bedroom type, not by size of the unit.
In terms of pricing, it’s pretty straightforward here – most of the resale options around are leasehold in tenure, have a tenure that’s older by about 6-9 years and generally further from the MRT (except for The Skywood).
As such, those looking for a 2 or 3-bedroom unit and aren’t too fussy on age are actually spoiled for choice here.
Unlike the usual conundrum one faces with new launch units where it comes in at a higher $PSF but lower quantum vs a lower $PSF and same/higher quantum for resale condos, Dairy Farm Residences is competing with units that are both lower in quantum and $PSF – and this is primarily due to it being the newest on the block here.
This will be an issue in the long-run, as the development will constantly be compared to the cheaper resale developments around. And in the case of all of them (apart from The Dairy Farm), the age difference is not too stark.
Of course, comparing prices across the table without considering their location and layout isn’t fair. So let’s take a look at how Dairy Farm Residences’s 3 bedroom units compare against its resale peers. We have chosen to look at 3 bedroom units as it’s geared towards a more own-stay profile, which we think this development is more suited for.
For our 3-bedroom analysis, we’ll be looking at the 936 sqft (87 sqm) and 1,012 sqft (94 sqm) 3-bedroom units.
Again, here’s what the 936 sqft (87 sqm) layout looks like:
Here’s where the stacks are located:
The south-facing plot directly faces the football field at GESS International School. A big downside to this is that there are strong lights used on the field here, which may be turned on at night as well (this is something that we cannot confirm as of now, but it’s a possibility!). North-facing stacks do boast an unblocked view (for now) towards the landed enclave.
On average, the 936 sqft (87 sqm) has gone for $1,505,083, with 12 units transacted thus far. Do note that only floors three to five in stacks 37 and 40 have this 87 sqm unit:
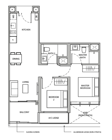
Unlike the previous layout, this one features a long entrance way as well as a longer hallway, a more standard layout than the previous one.
The biggest difference is the 2nd balcony in the master bedroom – a deliberate decision given this stack faces the greenery view towards the east.
Next, let’s have a look at the 1,012 sqft (94 sqm) layout:
The 1,012 sqft (94 sqm) layout looks like a duplicate of the 936 sqft (87 sqm) layout just above, except that there is a utility yard and a WC, making it more practical for families.
This is essentially where the extra space has gone. In terms of facing, you get the pick of either north or south just like with the above 936 sqft (87 sqm) stacks:
On average, the 1,012 sqft (94 sqm) units have gone for $1,627,894, with 11 units transacted so far. This is about a $122,000 difference, or an 8per cent premium you’ll have to pay for having a utility yard and water closet.
First, we will look at The Skywoods. This development has a lease start date that’s 6 years earlier and is closer to Hillview MRT station.
Facilities-wise, The Skywoods comes with the full package: lap pool, gym and a tennis court.
Unlike Dairy Farm Residences, however, it does not have retail options below.
The last transacted (smallest) 3 bedroom unit at 872 sqft (81 sqm) went for $1.17M ($1,342 psf) on 31 May 2021:

872 sqft (81 sqm) for a 3-bedroom is considered really small – it sort of reminds me of the Trivelis DBSS where the 4-room flats are also around this size.
Judging from the layout, this 3-bedroom unit is not so ideal. There isn’t much of a countertop space in the kitchen. Each bedroom is also quite compact. However, it is quite efficient considering the hallway to the bedrooms is not too long. Overall, it is quite similar to the 936 sqft (87 sqm) unit in terms of layout.
The real target audience for this unit are those who want some decent view while getting away with a small quantum for a 3-bedroom unit. This layout in particular is located in stack 12, and the AC ledge is smartly tucked outside the kitchen which allows the bedroom to enjoy floor to ceiling views of the greenery across.
However, stack 12 is partially blocked on the south-east side by an opposite block – though we do imagine the view on the south-west side to be pretty decent.
The $1.17 million transaction was for the 4th storey unit, and in February 2021, a 10th storey unit was transacted in the same stack for just $15,000 more at $1.185 million.
If we go by this alone, it goes to show that it is very possible to own a good-view facing 3 bedroom unit that’s within walking distance to the MRT (8 minutes) while enjoying full-fledged condo facilities – all for below $1.2 million here.
Now compared to Dairy Farm Residences, a 9th storey unit at Dairy Farm Residences facing the south side (football field) went for $1,507,968. This translates to a 27 per cent premium for what is a similar layout, an extra 6 sqm of space and a completely unblocked view (of the football field) and greenery beyond, and a slightly further distance from Hillview MRT.
Would this extra 6 sqm mean that Dairy Farm Residences 3-bedroom unit is more liveable? Let’s compare the liveable space with the help of Attribuild:
On the left, we have the 81 sqm Skywoods layout. From here, you’ll see that the total liveable area is 52.3 sqm, slightly more than Dairy Farm Residence’s 87 sqm layout. It does boast a slightly bigger kitchen, and the dining area does feel bigger overall. However, the bedrooms and living areas are smaller in this regard.
To be frank, a 27 per cent premium seems a tad bit high for a development that isn’t that much older and bigger after considering the similarities in liveable space.
For you to really decide if it’s worth it, you will need to visit the actual 81 sqm unit at The Skywoods to see if the size is something you can live with. If so, then perhaps the closer distance to the MRT and much smaller quantum is a better choice.
Next, we look at the neighbouring Foresque Residences which is the closest resale condo on the east side of Dairy Farm Residences.
Unlike The Skywoods, Foresque Residences is further out from the MRT compared to Dairy Farm Residences:
Let’s face it, residents of Foresque Residences aren’t buying for convenience. Dairy Farm Residences is both closer to the MRT and has retail dining options below, so it wins in terms of convenience.
However, it is a full-fledged facility condo, boasting several pools (including the main pool that spans almost the full length of the development), 2 tennis courts and even a half basketball court.
So how does the 3 bedroom here fare price wise?
The last transacted (smallest) 3 bedroom unit went for $1,295,000 and is located on the 10th floor. It’s 1,130 sqft in size (105 sqm).
Here’s what the layout looks like looks like
At 105 sqm, this 3-bedroom unit is pretty decent. It has 11 sqm more space compared to Dairy Farm Residences’s 3-bedroom with a utility yard.
For reference, a 12th floor unit at Dairy Farm Residences went for $1,664,200 in December 2020, which is a 28.5per cent premium. This is quite similar to the premium comparing The Skywoods with Dairy Farm Residences.
Let’s take a look at the liveable space:
You’ll immediately see that despite having just 11 sqm more space overall, Foresque Residences has in fact 18 sqm more liveable space than Dairy Farm Residences’s 94 sqm unit – so this bigger space does translate to even more liveable space!
Those with a keen eye would also see that the bigger 3-bedroom Dairy Farm Residences unit actually has less liveable space than the smaller one.
This can be explained by the fact that the utility yard as well as the balcony was included, so sacrifices had to be made elsewhere.
The downsides to Foresque Residences is, as mentioned before – the distance to MRT and having no retail options below. However, if you are someone who drives, then this distance to the MRT should not make much of a difference. In that case, I would prefer having more liveable space for a lower price for a development that’s 7 years older by lease tenure.
The Dairy Farm has the privilege of being the only freehold condo development in the area. It’s also really old – about 35 years of age by now. The target audience for The Dairy Farm is also very different from those buying Dairy Farm Residences.
Firstly, the age. Those looking for something new wouldn’t even consider The Dairy Farm.
But more importantly is the quantum difference. Units in such old developments tend to be bigger, and in The Dairy Farm’s case, it’s much, much bigger.
The last transacted 3 bedroom unit here is a whopping 1,948 sqft in size which translates to $2.38M. It could also be impractical for buyers to purchase a 2 bedroom unit to build an extra bedroom due to layout issues.
As such, this is really an apples to orange comparison.
So now that we’ve compared Dairy Farm Residences to resale developments nearby, how does it fare compared to the nearby new launch development: Midwood
In case you’ve missed it, you can read our full review of Midwood here .
Here’s what the average prices of 3-bedrooms look like between both new launches:
There are several attributes worth pointing out between both developments before jumping into the pricing.
Facing: Midwood faces either the north or south. The north side has unblocked views all the way to the Bukit Panjang enclave if you can surpass Kingsford Hillview Peak across the road. The south side has unblocked landed views of the nearby Elizabeth Drive landed area.
Dairy Farm Residences has 3 facings – north, south and east. In the south and east facing direction, residents here would be treated to better greenery views. North-facing residents would also benefit from the lack of any development across, and will have unblocked views towards Chestnut Avenue. In this sense, I would say that Dairy Farm Residences has the better view (in my opinion).
MRT access: Midwood boasts being just a five-minute walk to Hillview MRT, contrary to the longer walk for Dairy Farm Residences.
Access to retail shops: While Midwood doesn’t have retail shops directly below the development, it is just opposite HillV2 with a host of retail and dining options.
Carpark access: Readers would know that I was quite disappointed with Midwood’s multi-storey carpark based on my last review. The fact that it’s located in a separate block from the residential units makes it a real chore if you drive – particularly when you’re moving heavy things. Dairy Farm Residences does not have this issue.
In order to have a comparable analysis, we’ll be looking at the 84 sqm unit at Midwood (instead of the 83 sqm unit), as this stack (stack 08) faces the Elizabeth Drive landed area as opposed to the 83 sqm unit which has an inner-facing stack.
The last 904 sqft (84 sqm) unit here went for $1,428,000 (10th floor).
In comparison, here’s a 87 sqm transaction at Dairy Farm Residences with unblocked views towards the south:
Dairy Farm Residences trades at about a slight premium of 5-6per cent.
So what does this mean?
In terms of overall quantum, the difference is around $80,000. With that, you get:
The downside here, of course, is the further distance from the MRT. However, if you are driving, then this should not make much of a difference to you.
Ultimately, if you are struggling between both new launches, I think it just comes down to whether or not you rely on the MRT, and whether you want that greenery view.
In my opinion, I believe that choosing to stay in such a location and not having that greenery view is quite wasted, considering how the area boasts being “close to nature” – of course this is a personal choice.
If we are comparing between Dairy Farm Residences and its resale (and leasehold) peers, then I do believe that the price difference does warrant greater consideration towards the resale units.
Of course, financing requirements are very different, however, if that is not an issue, then the resale condos in the vicinity do offer:
Of course, it is older – but not by more than 10-15 years (tenure-wise) which would justify a huge price premium (over 25per cent in both cases we saw earlier!).
If we are strictly looking at Midwood, then I think it boils down to your facing, whether you drive or not, and how tight you are with the budget, as Midwood does offer a lower price overall.
As you can see, there are several relatively new developments in this area, with most being completed in the mid 2010s. With all having a 99 year tenure, Dairy Farm Residences (and Midwood for that matter) benefits from having the freshest lease of the lot.
For now at least, as we expect many more developments to be launched in the Hillview area over the coming years, given the number of empty land plots here.
1. Beauty World Integrated Transport Hub
For Dairy Farm Residences, Beauty World, being 1 stop away, is slated to become an integrated transport hub. This entails facilities such as a community club, hawker centre, sports hall and a condo which can house more than 800 units.
This has led to solid demand in Beauty World projects such as The Linq @ Beauty World. While Dairy Farm Residences is certainly not the main beneficiary of this transformation, especially in comparison with D21 projects such as Verdale or Forett at Bukit Timah , it is still expected to generate renewed interest when the transport hub is finally ready.
1. New Park Connector & Upcoming ABC Waters Project at Dairy Farm
According to the 2019 URA Masterplan for Bukit Panjang, there will be a new park with a rain garden and park connector. The park connector will provide an expansive cycling network that will stretch to the Bukit Timah Nature Reserve, Chestnut Nature Park and Zhenghua Nature Park. Frankly, that doesn’t sound like the most exciting thing out there.
1. Tengah Masterplan
The Tengah Masterplan involves an area of 700 hectares, which is almost the size of Bishan and is expected to be fully developed by 2036. The aspiration is for the area to be Singapore’s first car-free town centre with more than 42,000 new homes.
Dairy Farm Residences is some distance away from Tengah and moreover, it will take time before the entire precinct is fully developed. The idea is for the demand for private condos to spill over from the HDB upgraders from the peripheral areas, including Tengah in the future.
Let’s start with the positives first.
Dairy Farm Residences is nestled in a tranquil residential enclave – free from the hustle and bustle of the CBD and at the fringe of vast swathes of nature. At the same time, everyday conveniences will not be lacking with the retail mall located just steps away.
Moreover, I like the facilities that are available here – with plenty of dining spaces and a really nice infinity pool that allows you to look out to nature. If you were to just judge the development characteristics on its own, it does score quite highly in that regard.
But as you may very well know, one of the biggest considerations of a property purchase will always be its location. So while I do like the combination of the aforementioned things, more importantly, you have to first be comfortable with its location.
[[nid:532025]]
So although it is close to the highway, peak hour drive times are still longer than many condos we have reviewed. Next it may be sheltered for the most part and walkable, but the distance from Hillview MRT will not be the closest either. There’s a reason why free shuttle bus service will be provided for the first year, right?
I am also wary of the fact that there are several plots around Dairy Farm Residences that have been earmarked as Residential in the URA Masterplan. While that may help bump up prices slightly, there will also be the concern of an oversupply in the area, especially with many new plots in the Midwood area as well.
Lastly, it’s the issue of price. The biggest hurdle for buyers to overcome is the resale options in the area. Because they are still rather new as well, the choice becomes less clear cut as a result.
For now though, Dairy Farm Residences (as with Midwood) is the newest kid on the block. We are unsure how long that title will last but if you do enjoy the peacefulness of living beside a huge nature reserve, this could be the project for you.
Located just opposite vast greenery will allow nature lovers to soak in the sights and sounds without having to go too far
Having a mall just downstairs will allow you to pick up groceries and dinner while on the way home instead of having to make a detour
Distance to Hillview MRT is not the closest and its location means longer travelling times for those working in the city
Other than its unique pool, the units itself are mainly rather ordinary in its offering
This article was first published in Stackedhomes.