Feb 2021 BTO unit analysis: Parc Woods @ Tengah

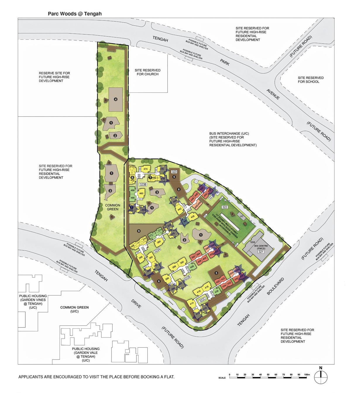
Another Tengah BTO was launched during HDB’s Feb 2021 BTO sales exercise. Parc Woods @ Tengah sits within the Park district, one of the five districts in Tengah. If you have decided to pick a flat in this new hood, we have the deets on which unit to go for.
| Unit types | 2-room flexi, 3-room and 4-room flats |
|---|---|
| Total units | 767 |
| No. of blocks | 5 |
| Block heights | 12 to 14 storeys high |
| Housing district at Tengah | Park District |
| Amenities | Market Place (car-free town centre within Park District) |
| Other information | Built using Prefabricated Prefinished Volumetric Construction (PPVC) method. Flats will come with full floor finishes, internal doors, and sanitary fittings that you cannot opt out for. |
| Estimated completion date | First quarter of 2025 |
There are no 5-room flats available in this Tengah launch. If you are looking for a larger flat in this new town, consider waiting until the May 2021 sales launch which will also see another Tengah development released. The location is expected to be just next to Parc Woods.
The Park district sits in the middle of Tengah town. Within Park district itself, there will be some 3,000 sqm of green space set aside for community gardening and farming.
In terms of nearby amenities, Parc Woods @ Tengah is located next to the upcoming Tengah Boulevard Bus Interchange. Besides the news about the construction being up for tender in 2019, there are not a lot of additional details about the bus interchange at the moment.
However, the close proximity to the bus interchange does mean you will benefit from having more transport options.
Besides buses, you will also have easy access to the nearby MRT stations from Parc Woods. Tengah MRT station (linked to the future town centre) is within walking distance.
By our estimates, it is approximately 500 metres away, which will take you around 5 mins by foot (sans any obstruction in between). However, Tengah Plantation MRT station — also along the JRL — is likely to be the closest MRT, seeing as it is 385 metres away.
The expected completion date for Tengah MRT station is 2026 under stage 1 of the JRL construction, while Tengah Plantation MRT station will only be ready in 2027 under stage 2.
One of the highlights for this BTO is its proximity to the car-free town centre (Market Place), where roads will run underneath to free up the ground level for retail and recreational use.
The town centre will also be integrated with a sports centre and Central Park, a green lung that sits to the northeast of the site.
Just across from Tengah Boulevard and next to Parc Residences @ Tengah (launched back in Aug 2020) is the area’s neighbourhood centre. The 3-storey structure will also house a polyclinic in addition to retail options.
The stacks mentioned below are highlighted by stars on the map.
If peace and quiet are important to you, you will want to avoid stacks that are close to the bus interchange. The coming and going of buses will likely be very noisy.
Stacks facing the road (both Tengah Drive and Tengah Boulevard will see buses passing through because of the bus stops along the roads) as well as stacks facing common areas where people congregate (car park, playgrounds, fitness centres, drop-off points, pavilions and childcare centre) will likely experience higher noise levels as well.
These are the best stacks to choose for peace and quiet:
322A : 360, 380
322B : 382, 388, 390
322C : 416, 426
323A : 442
323B : 464
There are some stacks with more privacy than others. These are usually corner units where the likelihood of a neighbour walking by and looking in is low. These are units that are also away from areas like the rubbish chutes or the lifts.
If you value your privacy in a flat, these are the best stacks to pick:
322A : 362, 364, 376, 378
322B : 382, 384, 398, 400
322C : 410, 412, 426, 428
323A : 440, 444, 450, 452
323B : 462, 464, 476, 478
In Singapore, the hot afternoon sun comes in two directions: northwest (March to September) and southwest (September to March), depending on the time of the year. As such, you will want to avoid flats with the main lounging areas of the home (living room and bedrooms) facing these two directions.
These are the best stacks if you want a cooler home away from the hot afternoon sun:
322A : 360, 362
322B : 382
322C : 410
323B : 460
With everything surrounding Parc Woods still under construction, it is difficult to determine exactly the vantage points of the stacks. However, based on what we have seen from the maps, these are the stacks with the best views:
322A:
360, 362 (view of car park, but quite some distance away)
364, 366 (view of the common green at the neighbouring housing estate)
366, 370 (view of the common green, unblocked as the single-storey childcare centre fronts these stacks)
322B:
382 (unblocked; facing the bin centre, although it is quite some distance away)
322C:
410 (unblocked, view of traffic)
323A:
442 (unblocked, view of the childcare centre)
323B:
464, 466, 468, 470, 472 (view of the common green)
460 (mostly unblocked)
Pro tip: It’s best to check out the 3D model of the BTO when HDB releases it to get a better idea of what your flat’s views will be.
This article was first published in Renonation.