Ki Residences, Phoenix Residences, or The Arden: Which 3-bedroom is better if you have a $2m budget?


Hi,
I will share more background on my scenario. I am looking for a condo that can house six persons (myself, my wife, my mum, two toddlers, and a helper) thus space is quite important and three bedrooms is a minimum requirement for me. My current five-bedroom HDB MOP (Bukit Batok Skypeak) is in November 2022 and my mum is currently staying in a four-bedroom HDB in Toh Guan Road. So our intention is to sell both our HDB flats to fund the new condo with a housing loan.
Both our kids are currently in pre-school in the Bukit Timah area thus we are currently shortlisting our condo selection based on the West area but we are open to changing our mindsets.
So far we have shortlisted some new launches (less those already fully subscribed) — Ki Residence, Phoenix Residences and The Arden. We are open to a non-new launch but will need to assess the conditions and prices of the property.
Budget-wise, I am looking at somewhere below $2 million. We have an agent who has brought us to view some show flats so far but nothing agreed with him yet.
Hey! Thanks for sharing your requirements with us. All three developments are located in a landed enclave (coincidence?), however, there are some notable differences in their locations which we'll share more about below.
Since the focus is on your family profile as well as sticking with a budget of below $2 million, we'll mainly focus our answer on the availability of units today, the pricing, layout, as well as the facilities and amenities of the highlighted developments.
In some aspects, Ki Residences At Brookvale is the creme de la creme of the three shortlisted projects. It's got the longest tenure (999-year as opposed to 99-year), it's closer to town (absolute distance-wise) and is a full-fledged condominium with pools, gyms and even a tennis court!
With 660 units in total, Ki Residences would offer you and your family the variety of facilities that boutique developments (like The Arden and Phoenix Residences) do not have.
However, we aren't the biggest fan of its location. Currently, it's situated at the end of the Sunset Way landed enclave with no current MRT nearby. (Although there is rife speculation that an MRT station along the Cross Island Line will be located close by — the area does need one).
The good news is that there will be a new road linking Ki Residences to Clementi Road. Despite this, however, it's still about 900m to 1km between the development and the road. This is approximately a 10-15 minute walk out, depending on which block you stay in. Thus, those looking to purchase a home here would preferably be getting around by car or do not mind the long walk out.
In terms of amenities within convenient reach, residents here very much have to rely on Clementi Arcade. It houses the closest grocery store — Cold Storage and is a nine-minute walk away (again this depends on your block, so you could add a couple of minutes here depending on how far you are from the development's exit).
Otherwise, the next closest would be Giant at Clementi Avenue 5 and NTUC FairPrice at Bukit Timah Plaza.
Let's be real — at this distance, not having a car makes it impractical unless you've somehow optimised your grocery shopping routine so that you don't have to drop by often.
However, since you do have a helper, perhaps this is not much of a drawback for you. Cold Storage should be more than enough to meet your family's needs, and if that's not the case, at least Bukit Timah Plaza can be reached in ten minutes once you hit the bus stop along Clementi Road (a total of 23 minutes including the walk from the development).
Moreover, Ki Residences will offer a free shuttle bus to Clementi MRT station for the first year and subsidised for the subsequent three years, which should definitely make things a lot easier for residents here in the first few years.
Apart from that, there's a hairdresser, an ice-cream parlour, a childcare centre, an international school, a cake shop and a clinic that specialises in children and babies (paediatrics).
So when it comes to amenities, there's really not much on offer here but it's quite expected given its location next to a landed enclave. The only saving grace is the shuttle bus to Clementi MRT, but even then, having to follow its schedule and not having the certainty of having it after the first four years is a point worth pondering.
Here are the available three-bedroom units left at the time of this writing:
| Unit no. | Floor plan type | Bedroom type | Size (sqft) | Available as of July 6, 2022 | Price |
| 01-17 | Type C2-G | 3BR + yard | 936 | Available | $1,835,000 |
| 01-18 | Type C2-G | 3BR + yard | 936 | Available | $1,835,000 |
| 02-01 | Type C2 | 3BR + yard | 936 | Available | $1,883,000 |
| 02-03 | Type C2 | 3BR + yard | 936 | Available | $1,883,000 |
| 03-03 | Type C2 | 3BR + yard | 936 | Available | $1,892,000 |
| 04-03 | Type C2 | 3BR + yard | 936 | Available | $1,902,000 |
| 05-03 | Type C2 | 3BR + yard | 936 | Available | $1,910,000 |
| 02-26 | Type C3 | 3BR + yard | 980 | Available | $1,913,000 |
| 02-46 | Type C3 | 3BR + yard | 980 | Available | $1,913,000 |
| 07-03 | Type C2 | 3BR + yard | 936 | Available | $1,948,000 |
| 08-03 | Type C2 | 3BR + yard | 936 | Available | $1,959,000 |
| 12-02 | Type C1-P | 3BR | 1,033 | Available | $1,996,000 |
| 04-47 | Type C3 | 3BR + yard | 980 | Available | $1,999,000 |
| 02-27 | Type C3 | 3BR + yard | 980 | Available | $2,013,000 |
| 11-03 | Type C2 | 3BR + yard | 936 | Available | $2,022,000 |
| 11-01 | Type C2 | 3BR + yard | 936 | Available | $2,031,000 |
| 04-27 | Type C3 | 3BR + yard | 980 | Available | $2,041,000 |
| 02-11 | Type C3 | 3BR + yard | 980 | Available | $2,047,000 |
| 11-23 | Type C3 | 3BR + yard | 980 | Available | $2,053,000 |
| 04-11 | Type C3 | 3BR + yard | 980 | Available | $2,076,000 |
| 12-14 | Type C2-P | 3BR + yard | 1,152 | Available | $2,123,000 |
| 12-03 | Type C2-P | 3BR + yard | 1,152 | Available | $2,182,000 |
| 12-23 | Type C3-P | 3BR + yard | 1,195 | Available | $2,185,000 |
| 12-26 | Type C3-P | 3BR + yard | 1,195 | Available | $2,185,000 |
| 12-46 | Type C3-P | 3BR + yard | 1,195 | Available | $2,185,000 |
| 12-51 | Type C3-P | 3BR + yard | 1,195 | Available | $2,185,000 |
| 10-11 | Type C3 | 3BR + yard | 980 | Available | $2,187,000 |
| 12-01 | Type C2-P | 3BR + yard | 1,152 | Available | $2,190,000 |
| 11-11 | Type C3 | 3BR + yard | 980 | Available | $2,195,000 |
| 02-07 | Type C4 | 3BR + yard + utility | 1,109 | Available | $2,246,000 |
| 02-10 | Type C4 | 3BR + yard + utility | 1,109 | Available | $2,246,000 |
| 03-07 | Type C4 | 3BR + yard + utility | 1,109 | Available | $2,257,000 |
| 04-07 | Type C4 | 3BR + yard + utility | 1,109 | Available | $2,268,000 |
| 05-07 | Type C4 | 3BR + yard + utility | 1,109 | Available | $2,278,000 |
| 12-47 | Type C3-P | 3BR + yard | 1,195 | Available | $2,279,000 |
| 12-27 | Type C3-P | 3BR + yard | 1,195 | Available | $2,302,000 |
| 07-07 | Type C4 | 3BR + yard + utility | 1,109 | Available | $2,318,000 |
| 08-07 | Type C4 | 3BR + yard + utility | 1,109 | Available | $2,329,000 |
| 12-11 | Type C3-P | 3BR + yard | 1,195 | Available | $2,338,000 |
| 12-07 | Type C4-P | 3BR + yard + utility | 1,313 | Available | $2,535,000 |
| 12-10 | Type C4-P | 3BR + yard + utility | 1,313 | Available | $2,535,000 |
Prices as of July 6, 2022. These are subject to change at any time.
For a budget of $2 million and below, you're looking at the 980 sqft three-bedroom + yard (deluxe) unit type. So let's take a look at its layout:
Coming into the unit, you'll find that there's a small foyer area which would allow for some storage to be built immediately on the left where the DB box is located. To the right is also some storage area that you can build shelves in to put some household items, however, it is a lot smaller than the usual household shelters would provide.
Immediately after that is the enclosed kitchen — for a three-bedroom unit, this isn't particularly big especially if we consider that the "yard" is actually part of this kitchen. You could install a compact clothes drying rack here, but we doubt it'd be enough for a family of your size. The window behind the "washer/dryer" spot also makes it hard to stack a dryer on top of a washer, and those washing machines with dryer functions cannot do a complete job at drying.
The good news is that at least it's got good natural ventilation.
Moving forward in, there's a dining area which just nicely fits a table for six and an average-sized living room. There's also a balcony that can possibly fit a table of six, but that would probably be pushing it.
The bedrooms here are quite decently-sized, allowing you to fit queen-sized beds comfortably with allowance for decent wardrobes too. Your children and elderly mum should find this amount of space to be quite suitable for them.
Both bathrooms are also naturally ventilated (rare for new launch layouts these days) and the master bedroom is quite decently-sized too! It even has a small window on the opposite end to provide some cross-ventilation!
Overall, we would say that this three-bedroom unit is efficient. However, we do not think that this layout is suitable for you. While your helper can stay with the toddlers, for now, the long-term implications could spell trouble since there is no helper's room or utility room that you can use.
One way to overcome this is to shift the dining area out completely to the balcony and put a partition wall where the dining area is to house your helper. This does require some renovation spend on your end and a sacrifice towards settling on alfresco dining every single day. Of course, you can mitigate this by installing blinds along the balcony that help keep the air-conditioning such as ZipTrak. It is a lot of hassle though, and probably not worth the inconvenience.
A better layout that suits you would be the three-bedroom premium (with yard and utility):
We covered this extensively in our Ki Residences review, so we won't touch on it again here. However, the current pricing puts it at 12.3 per cent higher than your maximum budget so if you are able to stretch to this amount, then it's worth considering it. With a helper's room and a proper yard area, it really does increase the usability of the space.
Instead of pushing your finances, however, let's take a look at the two more affordable shortlisted condos you mentioned.
As SkyPeak@Bukit Batok will reach its MOP in November, there may be far fewer units left for sale so gunning for Ki Residences could also be quite tight for you later on.
Since both developments are close to each other, we'll look at them in tandem.
Both developments are located in District 23 — Bukit Batok/Bukit Panjang. The Arden has the advantage of being closer to the MRT (Bukit Panjang), being just a seven-minute walk away compared to Phoenix Residences which is an extra four minutes by foot.
You'll be pleased to know that there's an LRT nearby that's only four and eight minutes by foot from The Arden and Phoenix Residences, so both developments are already miles ahead of Ki Residences when it comes to public transportation access (at least, as of now).
Despite the four-minute difference in walking times on Google Maps, you should know that the journey between both developments is a slope — and quite a steep one at that! Here's what the road looks like:
According to Google Maps, this elevation goes up to 21 metres in height! As such, if you do not drive, you may find this walk up and down to be quite an annoyance after some time.
In terms of amenities, both developments are much closer to the nearest shopping mall as compared to Ki Residences — Junction 10. And unlike Clementi Arcade, Junction 10 is a proper shopping mall that offers a myriad of commercial outlets, including numerous F&B establishments, health services, hairdressers, tuition centres and a Sheng Siong supermarket.
There's also Hillion Mall, another shopping mall that offers an NTUC FairPrice and a Kopitiam.
Needless to say, both developments seem to be the better option when it comes to daily amenity convenience as compared to Ki Residences.
The downside to both developments is in their size, although this could be seen as a pro or a con. Given their boutique status, residents here can expect greater privacy as compared to the larger Ki Residences. However, the smaller plot area also means fewer facilities. At 105 units for The Arden, and 74 units for Phoenix Residences, these are definitely much smaller than Ki Residences.
For one, they're both not full-fledged condominiums as they do not have a tennis court, unlike Ki Residences. Here's a look at Phoenix Residences site plan:

Residents can expect a lap pool (not a 50m one) as well as a splash pool and a gym. We'd say that usually when the size of the pool isn't shown, it typically isn't a very big one. The rooftop facilities house the children's playground and the barbecue pits that are useful if you like to host guests.
It's more or less the same story for The Arden:
For 105 units though, to have a 30m lap pool is pretty decent. And while there isn't a barbecue pit stated on the list of facilities, we'd expect there to be some form of dining features at the pavilion.
Now that we've briefly looked at their amenities and facilities, let's consider their pricing.
We do not have the exact developer's pricing for Phoenix Residences, so we'll refer to the last transacted prices and assume an increase/decrease of $10,000 per floor. With that, here are the available units and their estimated pricing (as of now):
| Unit | Floor plan type | Bedroom type | Size (Sqft) | Price |
| 01-14 | Type C1a-P | 3 Bedroom | 1023 | $1,477,340 |
| 01-10 | Type C1-Pa | 3 Bedroom | 1033 | $1,554,007 |
| 01-15 | Type C1-P | 3 Bedroom | 1033 | $1,616,257 |
| 02-15 | Type C1 | 3 Bedroom | 1033 | $1,626,257 |
| 01-01 | Type C2-P | 3 Bedroom | 1098 | $1,601,438 |
| 02-01 | Type C2 | 3 Bedroom | 1098 | $1,611,438 |
| 03-01 | Type C2-1 | 3 Bedroom | 1098 | $1,621,438 |
| 02-02 | Type D | 3 Bedroom + study | 1367 | $2,024,879 |
| 03-02 | Type D-1 | 3 Bedroom + study | 1367 | $2,034,879 |
| 04-02 | Type D-1 | 3 Bedroom + study | 1367 | $2,044,879 |
Most of the three-bedroom unit is well within your budget of $2 million, with the +study option just slightly above your budget. Here's what the three-bedroom looks like:
Right from the get-go, you'll see that the three-bedroom unit here appears to be more practical to your family's needs.
First, there's an enclosed kitchen that's immediately on the left of the entrance. It comes with natural ventilation as well as a WC that's also naturally ventilated! Next is the utility room. This can either be used to dry clothes, however, it would seem more practical to have your helper staying here as it nicely fits a single bed with a decent amount of walkway space too.
The dining area outside is a little tight, but still manageable. Moving on, you'll find the common bedrooms to be quite suitable for your family too, and there are even two bathrooms that are both naturally ventilated. The master bedroom is pretty decent too - being able to fit a king-sized bed with two small side tables. There's even a sizeable balcony here!
Overall, we are pleasantly surprised at how much they've managed to fit into 1,033 sqft. The only thing it lacks is a place to put the washer and dryer, but perhaps that could be stacked next to the cooking hob. The balcony at the master can also be covered with blinds to increase the amount of indoor space you have.
Assuming such a unit goes for $1.6xx million (or around $1,4xx psf), we'll say that this is quite attractive. Here's a look at 99-year leasehold new sales in the Outside of Central Region (OCR) for units between 900 - 1,100 sqft:
Considering its distance to the MRT and shopping malls, Phoenix Residences looks to be one of the more affordable new launches around. To top it off, you get a more suited layout that meets your family's needs too.
Unfortunately, prices for The Arden are not officially out yet, however, judging from the land purchase price of $630 psf ppr (which is higher than Phoenix Residences $556 psf ppr), it's reasonable to assume that The Arden will cost more than Phoenix Residences.
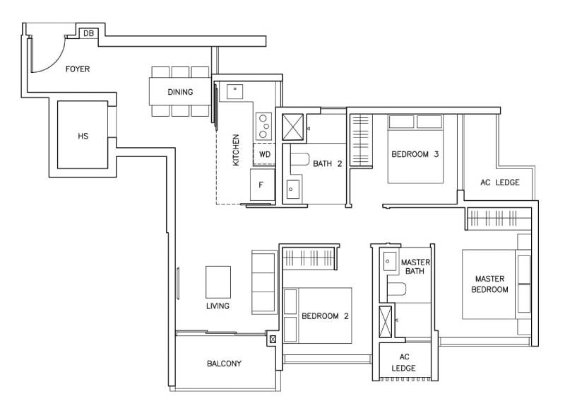
There are two types of three-bedroom units here, the classic and the +study. The classic is 1,012 sqft while the one with the study is 1,109 sqft.
Here's a look at what the three-bedroom (1,012 sqft) looks like:
The layout here is not confirmed as the official developer's brochure has not yet been released, however, this version can be found on multiple sources online.
The entrance here faces the wall directly so this provides great privacy to the resident. Moving in, you'll be greeted by the dining table. We aren't really a fan of the dining table being positioned here as it does seem quite awkward next to the foyer area. There also isn't really space elsewhere in the unit to put the dining table, so it seems that they were trying to make the best of an awkward layout.
Moving in, you'll find a kitchen that has sliding door options to make it enclosed. It's not very big, but for 1,012 sqft, we wouldn't expect much either. The kitchen does come with natural ventilation, so that's good news. As there's no yard, you'll also find the placement for the washer and dryer here.
Just behind the kitchen is the household shelter. This is generally used for storage, however, many households have resorted to using this as a helper's room. It can technically fit someone of small stature, but a bigger utility or study room would be preferred.
Moving on, you'll find the living room to be a tad bit small. The balcony could possibly fit a table of six but it would be a squeeze. It's more likely that you'll be hanging the laundry there, as there's no yard area.
Both bathrooms are naturally ventilated which is good, and the common bedrooms are of average size — enough to fit your family.
From the looks of the floor plan, it seems that the master bedroom can nicely fit a king-sized bed with side tables, but not much else.
If you prefer housing your helper in a study room, you could look into the 1,109 sqft unit:
This layout is very similar to the classic layout — including the awkward positioning of the dining area. The only difference is the larger AC ledge, balcony and the study/guest room.
Assuming a $PSF of $1,550, this unit should go for $1,718,950 while the classic one should go for $1,586,600.
Both price points are quite acceptable in today's context, and at this $PSF, it would still be within the average range of a new launch leasehold OCR project.
If we think about a family's own stay profile, we'll want to consider these things:
Based on all of these factors, we think that The Arden would be our pick. While pricing isn't officially out, we think that it would only be slightly more expensive than Phoenix Residences and that would still be within your $2 million budget. Ki Residences would definitely have been a good choice because of its bigger land size and facilities (which are all much more suited for young children), but the layout and budget aren't something as suitable for your needs right now. So unless you can push that budget, Ki Residences, unfortunately, wouldn't be as logical a choice.
The main consideration why we'd go with The Arden and not Phoenix Residences is simply due to the uphill slope that you'd need to climb often just to get home. This is especially true since you mentioned that your mother would be living with you, and we wouldn't wish for her to have to walk up and down a hill on a daily basis to reach the mall! If anyone is looking for exercise, Phoenix Park next door does provide ample space to walk or jog it out.
It's also the reason why we picked The Arden since it's the closest to Junction 10 and Hillion Mall, making it the most liveable out of the three.
In addition, it has a bigger main pool, and a seemingly bigger kid's pool and playground as well — which is better for young children.
In terms of layout, The Arden is the most awkward of all, however, the 3-bedroom study layout does leave you with a more practical space with the study room that you can use to house your helper. The dining area is also quite a comfortable size despite its awkward placement. And if we compare that to the Ki Residences layout within your budget, then it's even less practical since there's absolutely nowhere your helper can stay.
One downside here is that The Arden is along the main Choa Chu Kang Road, but you do get the convenience. This can be mitigated by getting a stack that's further away.
Facilities-wise, there's no denying that Ki Residences wins this one. However, we are hesitant to recommend Ki Residences to you simply due to your budget. You'd be stretching it close to your maximum budget — all for a layout that isn't as practical as the one Phoenix Residences/The Arden offers. We also have to consider the rising interest rates today and how this can put a strain on your finances in the longer term.
You might be thinking that Ki Residences has better value retention due to its 999-year leasehold tenure. This is true, and it would have better retention. However, it is worth thinking that the depreciation effects of a new leasehold property are small enough such that the pros of the practical layout and lesser financial stress outweighs its 99-year leasehold status.
To add on a final point, do bear in mind that you'll need to factor in the timeline for your move. First, since you are selling your HDB once it hits its MOP in November this year, a lot of things could change between now and then. For example, units at Phoenix Residences and Ki Residences may no longer be available — putting you in a tighter spot.
There is also the ABSD remission to consider here — once you purchase your new home, you'll have six months to sell your HDB to get the ABSD refund.
Another thing to consider is the TOP date. We are not sure what was discussed with your agent, but you'll need to think about your housing situation between the sale and move-in date of your new property. All three shortlisted developments have a TOP year of 2024 which would be around two years from your HDB's MOP, so you'll have to factor in the cost of renting a three-bedroom home during this time too.
All that said, we do think that unless you strictly want a newer development, there could be resale options out there that may suit your needs better so it's worth taking the time to explore further as this will be a big move.
We hope that you've found our opinion on all three developments to be useful in your decision-making. Ultimately, buyers prioritising their family's objectives should think carefully about what’s important to them. In this instance, we’ve balanced the five factors mentioned above to conclude that The Arden would be most suitable.
ALSO READ: 10 stunning, profitable condo transactions in the past 5 years
This article was first published in Stackedhomes.