Where to find the biggest dual-key condo units in Singapore (from 1,130 sq ft)


With ABSD rates now at 20 per cent (for Singapore citizens), buying a second unit for rental income or children/parents has become much less manageable. So it's not surprising that some homeowners are now considering dual-key units: a single unit separated into two sub-units.
This doesn't incur ABSD as it counts as a single home — but due to the split, it becomes more important to find a comfortably sized unit. While smaller dual-key units are quite popular, larger ones are more difficult to find. As such, let's go through some projects where you can find them:
2 bedroom dual key condos
| Project | Bedrooms | Bedrooms | Sqft |
| Urban Vista | 2 Bedroom Dual Key Penthouse | 2 | 1,249 |
| ParkSuites | 2 Bedroom Dual Key | 2 | 1,227 |
| Q Bay Residences | 2 Bedroom + Study | 2 | 1184 |
| ParkSuites | 2 Bedroom Dual Key | 2 | 1,184 |
| Prestige Point | 2-Bedroom Duplex + Study Dual Key | 2 | 1184 |
| ParkSuites | 2 Bedroom Dual Key | 2 | 1,173 |
| Urban Vista | 2 Bedroom Dual Key Penthouse | 2 | 1,163 |
| Suites 28 | 2 Bedroom + Study Dual Key | 2 | 1,130 |
3 bedroom dual key condos
| Project | Bedrooms | Bedrooms | Sqft |
| Flamingo Valley | 3 Bedroom Penthouse | 3 | 3,111 |
| Bently Residences | 3 Bedroom Penthouse Dual Key | 3 | 2,153 |
| The Minton | 3 Bedroom Dual Key | 3 | 2,013 |
| Jade Residences | 3 Dual Key Penthouse | 3 | 1,701 |
| 8@Woodleigh | 3 Bedroom Dual Key | 3 | 1,690 |
4 bedroom dual key condos
| Project | Bedrooms | Bedrooms | Sqft |
| Sky Green | 4 Bedroom Dual Key Penthouse | 4 | 2,906 |
| Heron Bay | 4-bedroom Dual Key Penthouse | 4 | 2583 |
| 1 Canberra | 4-bedroom Dual Key Penthouse | 4 | 2540 |
| Terrasse | Garden Duplex | 4 | 2,497 |
| 1 Canberra | 4-bedroom Dual Key Penthouse | 4 | 2,422 |
| Heron Bay | 4-bedroom Dual Key Penthouse | 4 | 2,271 |
| Bartley Residences | 4 Bedroom Dual Key | 4 | 2,250 |
5 bedroom dual key condos
| Project | Bedrooms | Bedrooms | Sqft |
| Fulcrum | 5-Bedroom Penthouse + Study Dual Key | 5 | 4,865 |
| Heron Bay | 5-bedroom Dual Key Penthouse | 5 | 2,841 |
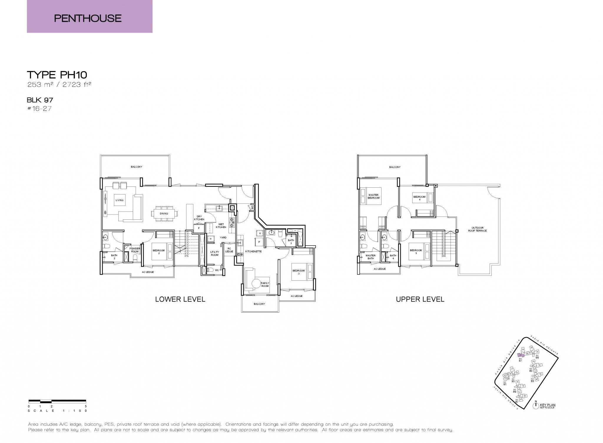
| Vue 8 Residence | 5 Bedroom Dual Key Penthouse | 5 | 2,723 |
| 1 Canberra | 5-bedroom Dual Key Penthouse | 5 | 2,713 |
| D’Nest | 5 Bedroom Dual Key | 5 | 2,379 |
6 bedroom dual key condos
| Project | Bedrooms | Bedrooms | Sqft |
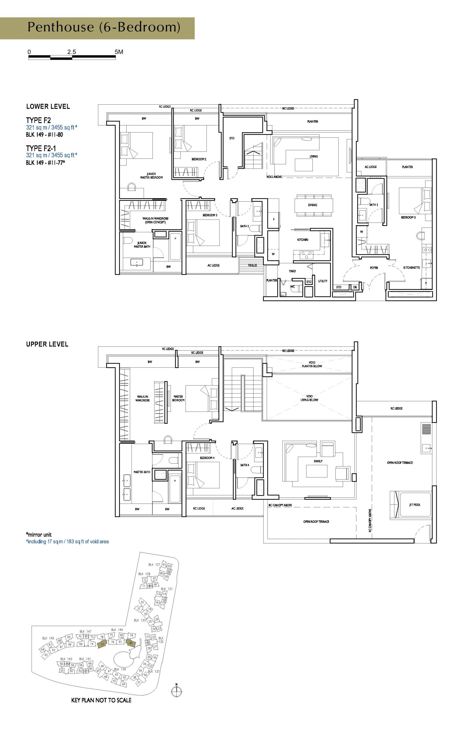
| D’Nest | 6 Bedroom Dual Key Penthouse | 6 | 3,455 |
This is the only six bedroom dual key unit we could find
D'nest is a Pasir Ris-area condo with a surprisingly strong track record, given the time of its launch. Despite initial sales being in 2013 (the peak of the last property market), it has only three unprofitable transactions and 238 profitable ones.
This might be due to the competitive launch prices (a mere $920 psf), as the developers gave a seven per cent discount to offset recent cooling measures at the time; quite a win for the buyers, as the average price today is around $1,399 psf.
The dual-key unit for D'nest is not the biggest we've found (see Fulcrum below), but it's the only time we've seen a dual-key designated as a six-bedder. At a massive 3,455 sq ft, this is a penthouse unit.
Part of this condo's desirability is its proximity to Pasir Ris MRT station (EWL, CRL), which is within walking distance. White Sands, the major mall in the area, is near the station. But the project is also across the road from a well-developed HDB enclave, where you can find a Sheng Siong and other heartland amenities.
Elias Park Primary School is also within walking distance, so it's overall a very convenient spot in Pasir Ris. You also have the upcoming Pasir Ris 8 Mall to look forward to, which would add more amenities to the area.
The only thing that might put off some buyers is the project's size — at 912 units, this is almost a mega-development; and those who like small, exclusive condos may find it lacks privacy.
When we see a condo unit that’s 4,865 sq ft, we tend to jump to the conclusion that it’s some ’80s-era giant home. But Fulcrum was just built in 2016, and it’s rare to see newer condos with so much room. The unit count is small and very private (128 units), but this part of District 15 may see more neighbouring condos in the near future.
This condo’s location previously had accessibility issues, but this will be remedied by Katong Park MRT (TEL). The station is just across the road from the project. The major draw, however, will be its location next to Dunman High; and also note that Chung Cheng High School is within one-kilometre; both are rather respectable names. And if you’re a member of Singapore Swimming Club, this location is probably very familiar to you (the club is just across from Dunman High).
The main complaint for the area would be the limited retail and entertainment options; you’ll probably be heading into Katong or Kallang for any serious shopping needs, movies, etc. There aren’t many across-the-road conveniences here, at least not at the moment.

How much you like this project depends on how you react to MacPherson; and by that we mean the area straddling Paya Lebar, near Tai Seng. People tend to be quite divided about this area: they either find it noisy, grey (not enough green space) and too "industrial," or they find it super convenient because of the eateries and proximity to Paya Lebar Quarter (PLQ).
In either case, Sky Green's location makes it very close to the new commercial hub of PLQ. It's also close to commercial developments like Oxley BizHub, and the industrial estates in Tai Seng. Landlords might consider it a good catchment area for tenants, and prices here can be lower than those closer to the heart of Paya Lebar. Tai Seng MRT station (CCL) is within walking distance.
As for own-stay use though, this is a place for people who don't mind dense urban areas or traffic. We would opt for something on a higher floor, or in a block that's further back from the ones directly facing MacPherson Road (the road is next to the condo, and it's one of the busier ones.)
Back in 2012, the property market was rather exuberant, and during that year Heron Bay set a new record for ECs. This project had, for time, the single highest transaction for any EC ($1.774 million for a five-bedder penthouse unit, not related to the dual-key unit in the list).
In more recent years, Heron Bay has often been compared to Kingsford Waterbay and Riverfront Residences. These projects overlook the Serangoon River, so a good number of units offer greenery and a waterfront view (the area is also a favourite among joggers and cyclists.) And because Heron Bay has a much lower price point, being an EC, the price comparison issue is bound to come up.
Heron Bay is also conveniently across the road from the HDB enclaves of Hougang View and Serangoon View, where you'll find an NTUC and other heartland amenities; so while there isn't a big mall nearby, it's still a convenient location.
Serangoon Secondary School is also just a short walk away (next to neighbouring Kingsford Waterbay), and North Vista Secondary and CHIJ Our Lady of Nativity are also within one kilometre. Couple this with the greenery of Punggol Park and the surrounding Serangoon River, and you've got a very nice family-oriented area.
The main drawback is going to be accessibility, as there's no MRT station nearby; but this is a trade-off for being in a quieter green area.

As the name implies, the view is a major highlight of this project. There are unblocked views of Pasir Ris Park and the coastline, looking out in the direction of distant Pulau Ubin. You can walk to Pasir Ris Park from this condo, and it's close to where the Adventure Playground is, which might appeal to families with children.
There are no big malls within walking distance (which we suspect is how residents here prefer it), but the HDB-run Elias Mall is within walking distance. Besides Sheng Siong, the mall has the usual heartland shops that meet most everyday needs. You'll probably have to travel further out for more major retail or entertainment though; this location is mainly catered to the "quiet nature lover" types. Arguably, most of Pasir Ris is.
The future Elias MRT station (CRL) is just across the road from Pasir Ris Drive 10, and it's only one stop away from Pasir Ris MRT (EWL). So while this is still some time away (2032), you do have future benefits here in terms of accessibility. White Sands is also located next to the MRT and is the major mall servicing the neighbourhood. So while this condo is in an enclave, access by public transport is still good.
That said, if you're the sort who wants exciting nightlife or access to the CBD, this condo's location probably won't do it for you.
ALSO READ: 5 unique new landed homes within a condo development: Here's where to find them
This article was first published in Stackedhomes.