Terra Hill review: Freehold luxury in Pasir Panjang set on a slopey terrain

Overall rating
Terra Hill is a 270-unit freehold development that sits at the cusp of the Greater Southern Waterfront transformation. Even though it is years ahead of us, its location in the RCR already means it is within close proximity to key nodes such as Mapletree Business City, one-north and the CBD. The development is built on sloping terrain, with some units enjoying beautiful vantage points.
Unit Efficiency 4.5/5
Squarish layouts for all units with special mention for the smallest two bedroom units that have home shelters and second bathrooms
Unit Size 4.5/5
Good range of unit sizes, with a number of large format units (Prestige Collection)
Design 4/5
Simple design that seeks to be sleek and timeless
Variety of Facilities 4/5
Packed as many facilities as possible
Quality of Facilities 4/5
Generally looks to be high quality, with better designed interiors for common spaces
Surrounding Amenities 3.5/5
Many food options close by, but larger supermarkets/malls are a train ride away
Developer 4.5/5
Experienced JV partners in Hoi Hup and Sunway
Transport Links 4.5/5
Short walk to Pasir Panjang MRT
Driving Accessibility 4/5
Very good access to the CBD, one-north and Mapletree Business City
Price Point 3.5/5
Asking price can be seen as steep if you aren’t looking for something luxurious
| Project: | Terra Hill |
|---|---|
| District: | 05 |
| Address: | 18 – 22B Yew Siang Road S(117755-118955) |
| Tenure: | Freehold |
| No. of Units: | 270 |
| Site Area: | 208,443 sqft |
| Developer: | JV between Hoi Hup Realty and Sunway Developments |
| TOP: | 2026 |
Pasir Panjang, as we know it today, is a far different beast from what it once was. Translated from Malay as long sand, it represented the long stretch of sandy beach that once stood here, which consequently attracted wealthy families to build their seaside homes in the 1920s, including the likes of Lee Kong Chian and Aw Boon Par, the founder of Tiger Balm. What transpired in the years after was Singapore’s rapid industrialisation, prompting the reclamation of land to build what is now PSA’s Pasir Panjang Terminal, which in turn has played a crucial role in Singapore’s position as the world’s top transhipment hub.
This brings us to the launch of Terra Hill – the redevelopment of the former Flynn Park, a 72-unit condo that was sold en-bloc for $371mil, or $1,355 psf. The land has since been fully maximised by Hoi Hup Sunway for a total of 270 units at Terra Hill, representing almost 4 times the initial number of units. This does become evident as we explore the site plan of Terra Hill but more on that later.
Terra Hill has the unique advantage of being built on an incline, with the entrance and the highest point (Block 20) having a 20m difference, which amounts to about 5 storeys. This is not unique to Terra Hill and one such other condo is Palisades, which has dealt with the incline through a one-of-a-kind funicular lift. If you are interested, check out the Mothership article on it, or the really nicely photographed coverage by Finbarr.
In any case, the incline at Terra Hill allows for a good vantage point, especially for those who purchase units on higher ground. From the drone shots, these units offer views of the PSA Pasir Panjang Port and the sea in the distance, which is to be completely unblocked once the port moves to Tuas by 2040. However, due to this incline, the downside would certainly be higher construction costs as the developers grapple with the uneven terrain of the development. For those who have looked at estimated breakeven costs online – don’t be mistaken by those numbers as they definitely don’t take into account the higher costs of the sloped terrain.
It must also be said that Terra Hill is at the cusp of several important transformations, including the PSA Port’s move to Tuas by 2040. This will free up desirable land for redevelopment as part of Singapore’s Greater Southern Waterfront vision. Much as 2040 seems like a long time away, Terra Hill’s freehold tenure means that time is on your side. Moreover, there are more imminent developments in this area, including the completion of the Circle Line loop by 2026 through the addition of 3 new stations (Keppel, Cantonment, and Prince Edward), which will take you from Pasir Panjang to Marina Bay in seven stops.
I’m sure you’re excited to find out what makes Terra Hill unique so let’s go right to the Insider Tour!
Terra Hill is located at the cul-de-sac of Yew Siang Road in Pasir Panjang, lined by landed houses and the Fragrance Court condo on your way in. If you need a reminder of Pasir Panjang’s illustrious past where the wealthy used to build their seaside homes, look no further than the sprawling Breakthrough Missions just beside Terra Hill at 24 Yew Siang Road.
For interest’s sake, this compound is actually larger than Terra Hill itself at 240,304 sqft with most of it dedicated to greenery on your way in.
Terra Hill’s entrance is somewhat inconspicuous compared to what the rest of the development has to offer, with a two-lane ingress and one-lane egress which will be more than sufficient for its 270 units. It has one-to-one basement parking, which is a great bonus to have considering Terra Hill’s proximity to Pasir Panjang MRT. That said, considering that units here will cost around $2.5mil on average, I expect many residents to have at least one car for easy accessibility.
To orientate you better, Terra Hill consists of two different classes of units. One is the Signature Collection, all of which will come with a household shelter and high ceiling for first-storey units. The more premium class is the Prestige Collection, where you get an exclusive block layout of two units per core with private lift access. There’s a high ceiling for all first-storey units too, among various other perks which I’ll explain later on during the unit tour.
All the blocks are positioned such that you don’t get any direct west-facing unit, which is great too.
For those concerned about sustainability and the environment, Terra Hill is targeting to achieve the Green Mark Platinum through various initiatives like solar panels, EV lots, energy-efficient aircon units, as well as the inclusion of ceiling fans in every unit (a definite first for me!).
Design wise, the dark-brown copper hue is something that has been very in trend for the last few years. Terra Hill doesn’t look to reinvent that wheel, but I don’t suppose many people would argue that overall it does look pretty upscale with the darker tones.
You have 24/7 security here as standard, and your guests can be dropped off at the drop-off point that features a soothing water courtyard. The sloping grounds provide a great opportunity to create a heightened sense of arrival here. This belongs to the first of five zones here at Terra Hill, with “The Valley” zone also featuring other facilities such as a Mini Putt and Chill Out Deck among others.
Moving next to “The Enclave” where I would say houses the most useful of the condo’s facilities. This is located where the Prestige Collection units are, so you can be sure that you also have the best views of the development here. Given the 20m incline of the development, which is really rather steep, you have a ramp that brings you from the entrance to here. You will need that as this is where you can find the two-storey clubhouse, named Terra House.
Terra House somewhat cantilevers over the 50m lap pool, giving the second floor gym users more reason to stay motivated as they see other residents diligently doing their laps. The developers have also made an interesting move to go with a social space in the gym, which I find rather unique. I understand that this is made in part to foster friendships within the gym, making it a more dynamic space rather than one that is solely utilitarian.
The first floor of Terra House features one function room (The Club Room) and one movie room (Media Screening Room), which play different roles depending on the age group and type of friends you are hosting. The Club Room is about 500 sq ft and has two tables that can accommodate up to 16 pax, complete with a sink and fridge while the Media Screen Room is just under half its size and meant for a more cosy affair. There is another function room in the other zone of the development, which may be closer for those staying in the other blocks.
You will also find the 50m lap pool here, and due to the sloping nature of Terra Hill, the pool will actually feel like it is on lower ground compared to Jacuzzi Pods and Coast Cabanas above. I actually quite like this “hidden” feeling and it helps that there look to be some cascading plants that will help enhance the aesthetics of the pool’s surroundings. By the lap pool itself, you have a bunch of pool decks, a poolside cove, and an aqua lounge to laze by.
Additionally, you also have a poolside pavilion that looks to come with BBQ facilities as well. Great for hosting if you’re into a poolside party kinda thing!
For the kids, you also have a falling water feature as well as a kid’s pool just behind the clubhouse as well.
Moving next to “The Sanctuary” where you will also find a number of water features. You have the Aqua Gym, Jacuzzi Seats, and Hot Tub among others. For more sporting activities, there is even a Basketball Hoop (not a half court) and more dining options in the BBQ Pavilion and Teppanyaki Pavilion for hosting.
To its north, is “The Alcove”, which looks to cater a little more for the little ones. You have the Play Cove and the Embankment Slide here while having a few more water features through The Creek. The third and last function room of Terra Hill are located here, featuring seating for eight people and a microwave and fridge for small events.
Finally, at the highest point of the development, you have “The Hillside”, which is so aptly named. There’s a side gate that leads you to Pepys Road, which is a long and winding road up to The Peak condo and Reflections at Bukit Chandu. This is where you can take a stroll to the various parks, including Kent Ridge Park and HortPark.
Be warned though, this is one steep journey up the stairs, so if you’re keen to bring toys for the kids or a picnic basket, there is a fair amount of exercise involved before you even get there! Also, this isn’t too great for the elderly either, as close by as you are to the park, the stairs might be a bit of a challenge.
Besides that, you have yet another BBQ pavilion here in addition to a herbs garden and meditation lawn that you have here. Perhaps rather aptly given its location beside the Pepys Road side gate, you also have a fitness terrace here to help you get prepared.
Overall, there are a number of facilities packed in for just 270 units. I would say that facilities have been as generous as they get but Terra Hill does lack a tennis court despite its land size. You may also question if the blocks are very close to each other – well, the average distance seems to be around 24m and most blocks do not actually face each other.
However, the southeast-facing units only have 3.5m from the boundary wall (an unfortunate outcome because of the sloping terrain) and low-floor units here certainly do not have any views or facilities of any form. The only advantage? You can be sure that it will be a quiet and tranquil area here.
(Oh, and that also means this is where you will likely find the lowest-priced units in the development).
With that, let’s move to the show flat units!
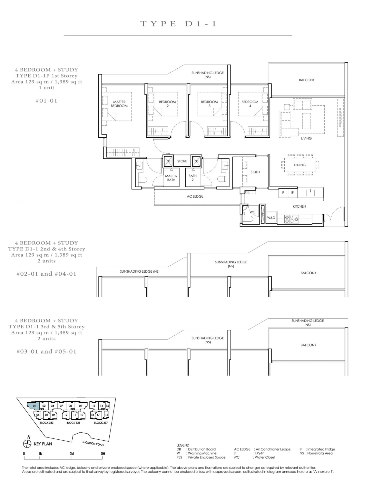
There are a total of 11 stacks of four-bedroom units, with six of those belonging to the more luxurious Prestige Collection, all of which are sized equally at a massive 1,894 sqft. Those in the Signature Collection range start from 1,302 sqft to 1,335 sqft (excluding Penthouses), making the four-bedrooms in the Prestige Collection nearly 50 per cent larger in size. Beyond its size, there are also differences in the materials and fittings that are provided in the unit.
The first difference is the private lift access that all Signature Collection buyers will have the privilege of having. The exclusiveness provided to a unit of this size (and price) is definitely much appreciated. As such, you have your own private lift lobby that is 5 sqm in size, with a built-in shoe cabinet by the left provided by the developers.
While it’s not a great deal of space, you have the bonus of a window that looks into your dining room, allowing some light to flow in or perhaps another avenue to know that your guests have arrived! I definitely like the addition of the window, which is something that I’ve yet to see in other new launches that have a private lift lobby.
As you enter the unit proper, this is where the unit truly starts to excel. You get marble flooring throughout the unit (only available for four-bedroom units) and a standard 3m ceiling height (Prestige Collection), which is higher than your typical 2.8m ceiling. Combined with an exceptionally wide living room at 6m in width, this is one impressive space to have your friends and family over. There are no unsightly air-conditioning units too as they are ducted in both the living, dining, and master bedrooms. (You might have noticed the white ceiling fan too, which is included, and no, there are no colour options).
It’s definitely a very impressive first impression, and it’s rare to find a new launch today with segregated living and dining areas – which I do actually prefer.
You can already tell how huge this space is with the sofa set that the IDs have gone with – an absolutely massive L-shaped set that could probably fit more than 10 people. This compares to my usual statement on how the average living room in new launch condos can only fit three-seaters comfortably.
Of course, I acknowledge that being able to afford a place that can fit 10 easily is a privilege! Mind you, despite that large sofa set, you continue to have walking room and space for a single-seater couch by the side. In any case, the point here is that you have options – go with a smaller sofa set and you probably will get an even better sense of space.
The 12 sqm Balcony benefits from the 6m wide living room, as it spans the full width of that space. Buyers can choose to have an al-fresco dining area here, just as the developers have done with a six-seater set here.
You can do a bigger one here if you wish, but I am guessing that on a typical day, a six-seater would suffice, freeing up room for a mini garden or outdoor gym zone. Remember that the Prestige Collection sits on the highest elevation of the site, giving outward-facing units distant views of the port and sea.
The dining room is tucked away beside the living room and the sheer amount of space here makes it suitable for either a long table or a traditional round table.
Here, the developers have gone with the latter which can fit 10 people comfortably. I personally like round tables better as they give off a more intimate, familial atmosphere.
The dining area is adjacent to the dry kitchen, which I really like. The kitchen island has a luxurious-looking engineered stone countertop, which is sure to impress guests. The same material is also used for the countertop and backsplash just across the island.
What makes the space even more aesthetic is definitely the presence of the tinted glass cabinets with glass shelves (plus the inclusion of soft lighting), which are perfect for showing off your alcohol collections or fancy plates. There are also storage spaces below your kitchen island, which include thoughtful features such as a cutlery tray as well.
To your right are another four panels of floor-to-ceiling built-in storage spaces, which are great for a unit of this size. You have a pull-out larder system for one of those panels and have your integrated fridge, oven, and wine chiller built in here too. All these appliances are from Swiss luxury maker V-Zug, which is definitely one of the most expensive brands you could opt for in the market. So far, you certainly get the impression of this unit’s luxurious ambitions, and it’s been a good start.
The wet kitchen is also a great space for those who enjoy cooking. You have generous countertop space for food preparation, which extends the full length of your L-shaped kitchen. It also offers a corresponding amount of top and bottom cabinet spaces.
I can’t emphasise enough the need for these in a large home like this – where you often either have a large family or tend to have friends over often. As standard, you get top-quality V-Zug appliances in the form of a five-burner gas hob and an integrated dishwasher. Samsung will supply the washer, dryer, and a two-door fridge. You also have windows by the sink for natural ventilation in the kitchen.
At the end of the wet kitchen is the secondary door that leads you to the common lift lobby, with the w/c and home shelter here as well.
Many who live in such a large unit may have helpers, hence this private space may be suitable for them.
The common corridor leads you to the four bedrooms in the unit, with all bedrooms coming with an ensuite bathroom (although one of the bathrooms is shared between bedroom three and bedroom four).

How about guests you may ask? There is a 3 sqm powder room that is catered for them just by the corridor. Powder rooms are great because they usually don’t take up a great deal of space, providing the perfect opportunity to lux the space up. True enough, the developers have gone full-on marble here, with the wall, floor, and vanity top all constructed with marble.
Modern and luxurious fittings are provided here, with a Gessi tap and toilet roll holder in a black brushed finish (Signature Collection units are in chrome finish), Laufen basin and wall-hung w/c, and Tece flush plate. These brands are more upmarket than many condos I have seen in the last couple of years, as many developers have gravitated towards more reasonably priced options.
Starting first with bedroom four, which is larger than your average condo common bedroom at 11 sqm. However, you do lose a bit of space because of the L-shaped nature of the entrance, hence the room may not feel like the full 11 sqm worth.
This room has been done up as a study, although it will also come with a built-in wardrobe should you choose to have it as a bedroom. It also has full-length windows as expected.
Bedroom three is more or less a mirror image of bedroom four and is of identical size at 11 sqm as well. It has the same L-shaped entrance as you step in, but this room has been done up as a regular bedroom instead.
As with most other condos, fitting a queen-size bed will be of no issue here, although a single would certainly be more suitable if you require a study table or a dresser in the room.
Both Bedroom three and Bedroom four have direct access to Bathroom three, making it a jack-and-jill concept. It’s of an average size at 5 sqm and comes fitted with a mirror with storage, a quartz countertop, and tiled walls. If you must know, only the powder room and Master Bath will be in natural marble.
The standard fittings come in the form of Gessi’s black brushed chrome range for the tap, shower, and toilet roll holder and Laufen’s basin and wall-hung w/c.
Moving on to the junior master bedroom, which is 18 sqm large. Don’t be deceived by this number though, as it also includes the junior master bath and a relatively long corridor.
This long walkway actually houses the built-in wardrobe, which comes in a more expensive glass finish, which is certainly classy. Here, you get a very thoughtful mix of an accessories drawer, power point, a side dresser, and other standard compartments. It’s overall impressive nevertheless and shows the level of thought the developer has put into the unit.
This leaves the junior master itself with not a great deal of space, but it should be able to fit a queen bed, albeit with less room to manoeuvre thereafter. I would add that the perception of space should be enhanced positively through the 3m high ceiling and large panel windows though.


As for the junior master bath, it is actually very compact and does not come with windows. It’s in the same tile finish as the common bathroom but continues the same quality fittings from top European brands Gessi, Laufen, and Tece. They include chrome black finishes and rain shower by Gessi and wall-hung w/c from Laufen.
Just before heading to the master bedroom, I would like to highlight the fantastic store that is provided for every unit. It is an intelligent use of space that allows you to store away all the small appliances or household objects that you may use fairly often. There’s even a power point that will be provided here, which makes it easier when you actually need to charge your appliances as the typical options will include your vacuum cleaner, robot vacuum cleaner, luggage, etc.
Finally, we are in the opulent master bedroom, which is truly the focal point of the house. It is 33 sqm large, which is almost double that of the junior master.
Starting from the walk-in wardrobe, there is a dresser that the developer will be providing (that is movable). This includes a glass accessories drawer on the top shelf and drawers below so it’s not just a pretty sight but practical as well.
It’s very much the same story as the L-shaped walk-in wardrobe. It’s quite significantly larger than your typical master bedroom wardrobe, and the aesthetics here are on point too. You get black glass door panels instead of your typical wood laminate for the other rooms (except the junior master), which makes the wardrobe here look more modern and upscale.
The walk-in wardrobe is also located strategically beside the master bath, making it very convenient for occupants to get changed as well. As with the powder room, the master bath is tiled in natural marble from the floor to the walls. Mind you, this is a large amount of space so the developers have clearly spared no expense here.
Additionally, you get a few special features in this bathroom. The first is the rimless w/c that comes with a cleaner jet and remote control from Laufen, as well as a bathtub and his and hers sink. This bathroom feels significantly bigger than the other bathrooms, and rightfully so since it will belong to those who are actually paying for the house.
Overall, it’s a great layout, and the finishings and fittings seem to be of good quality.
There are a total of 108 three-bedroom units at Terra Hill, which range from 904 sq ft to 1,098 sq ft. This excludes the 18 other three-bedroom penthouses, which are between 1,249 sq ft to 1,335 sq ft. The show flat unit here is the 2nd largest regular three-bedroom unit type and is also the ground floor unit, with a higher ceiling height of 3.55m (it looks really good).
As you enter, there is an L-shape foyer that gives you complete privacy from your neighbours. This could come in handy as a number of blocks have about eight units per floor. You could also use the space to build some floor-to-ceiling shoe cabinets. Yet on the other hand, you could argue that this is a wasted amount of space that could’ve been better used in the other parts of the unit. Frankly, I tend to agree with the latter.
This becomes more evident when you look at the size of the dining area. They do have a five-seater table here, but you can see that the fifth chair is already transgressing on the corridor space and the seats closest to the wall don’t look the most spacious either. In short, this is a compact amount of space for dining, especially if you intend to have friends over sometimes.
What I have absolutely no complaints about is the kitchen, which is 9 sqm in size. It’s a rectangular shape, so you get countertop space across the full length of it.
In fact, you also get a little more counter space on the other side, which has a glass window to make the kitchen look a tad more spacious. This smaller countertop space could be perfect as a mini-pantry, as it is closest to the kitchen door, allowing guests to self-service if necessary.
From here you can see that you do have adequate storage space from the top and bottom built-in cabinets, but it’s worth noting that the top cabinets have less depth. So while you do lose out on some storage space, the overall effect is a more open feel.
The kitchen also comes complete with a three-zone gas hob and hood from De Dietrich. Do recall that the Prestige Collection features V-Zug appliances but let it be said that De Dietrich is one of the more luxurious brands around too. I’m actually very pleasantly surprised at their choice of brands used at Terra Hill. You will get a washer cum dryer and fridge from Samsung as well.
Towards the end of the kitchen are windows for natural ventilation, as well as a home shelter measuring 3 sqm and a w/c as well. These are helpful if you have a helper, or you could well use it as your storeroom, which is probably a must-have if you intend to stay for the long term anyway.
Moving back to the living/dining room, one of the most unique aspects is the ceiling fan in the middle of it. Most people might think this is just part of the ID treatment, but this is actually a developer provision for all units, as it seeks to build a sustainable development for the modern generation. I do like the inclusion of it, as well as the thought behind it (because let’s face it, not many households will be switching on the air-conditioning the whole day). That said, the limitation here is that it’s in white, and you don’t have a choice of colours here.
As for the living room, it is fairly sized and can fit a three-seater sofa set easily. Given the unit’s larger-than-average size, there is also room for a small TV console and coffee table.
They have skipped the former, as with most show flats, to showcase the extent of the space. You do also of course get a greater sense of space here, given the high ceiling of the unit.
For a breath of fresh air, you also have a 6 sqm balcony to rest and relax. Here, they have already placed a high stool and table – providing an alternative workstation for your WFH days or simply to read a book after work. Some people might expect that for a ground floor unit, there might be an exit/access point here – but none of the units will have provision for that. So even if you are pool facing, you can’t easily just walk out seamlessly.
Along the corridor leading to the bedrooms is the store (the first left door), which is probably the biggest life hack that all developers should be embracing. It’s a compact space that allows you to store away daily necessities such as your ironing board, umbrellas, and vacuum cleaner.
Bedrooms two and three are identical in size at 9 sqm, which is very average in the market today. In bedroom three, it has been done up as a regular bedroom with a queen bed.
As you can see, you really don’t have room for much else. They have a small bedside table, which leaves you little room to access your wardrobe. Well, at least you get full-length windows and a high ceiling for this particular unit.
For bedroom two, the developers have utilized the 3.55m ceiling height to their advantage, creating a dream kid’s room. You get a loft of sorts, with storage spaces every step of the way while climbing up. You also have the ability to place a table below to ensure that there’s a space to complete his or her homework if required. This room definitely feels more spacious, as much as it is actually the same size as bedroom three.

Bedrooms two and three (and guests) will all share bath two, which comes with a small window for ventilation. It is very much a standard bathroom, complete with good quality European brands in the form of Gessi and Laufen. No rain shower for those of you looking for it – you can only get this in the master bathroom!
On to the master bedroom, which is 20 sqm when combined with the master bath. Because this room is larger, coupled with the higher ceilings and large panel windows, I must say that this space felt rather big.
As you can see, you can place a dresser here much more comfortably than in the other bedrooms.
As you can see with its master bedroom status, you do have your typical accessories cabinetry by the side of the wardrobe.

The master bath here seems to be just a tad larger than the common bath and similarly comes with a window here. While the Prestige Collection gets black brushed Gessi taps and mixers, the ones you get here as standard is just the typical polished ones.
You also have a Laufen w/c and sink here as standard. Overall, it is a practical space that should be more than sufficient to meet your daily needs.
There are a total of 70 two-bedroom units at Terra Hill, with the smallest ranging from just 624 sq ft. The show flat here showcases the largest of them all – although its size makes it just about a little larger than average in the market. This unit, as with every other two-bedroom layout, comes in a dumbbell layout and this is, of course, the more efficient choice. What is even more impressive is that all layouts also boast of a second bathroom, even for the 624 sq ft unit.
The standard ceiling height for the Signature Collection is 2.85m, with higher ceilings for only the ground floor and top floor units. You get tiles for the common areas and natural timber for the bedrooms, the latter being more expensive and uncommon in today’s market.
As you enter the unit, the kitchen is to your immediate left and about 5 sqm in size. It’s a good size for a two-bedroom and while it is not officially enclosed, its U-shape allows you the ability to have sliding doors of some form. However, there are no windows here so you will have to rely entirely on your hood to rid of the smoke and smell.
As always, it is a fully equipped kitchen, complete with a two-zone induction hob and oven from De Dietrich, which is a luxury appliance brand objectively speaking. The fridge (not integrated) and washer/dryer are from Samsung and if you noticed, above the washer/dryer is an extra worktop cum pantry space, which I found to be very thoughtful.
They have also maximised the amount of storage space here, providing them on both sides of the kitchen. But like what you’ve seen in the three-bedroom unit, the top cabinet space will be recessed a little bit more.
Moving further into the apartment, you have the home shelter of 3 sqm to your right. It’s pretty cool that they made this into a shoe display of sorts so for all you sneakerheads, this could be the one space for you.
The positioning of this home shelter does affect my overall perception of the unit’s size a little, as the foyer area from the entrance looks narrower than it should be. Nevertheless, it is a very helpful room to have, as many small apartment owners lament the lack of a storeroom, which gets handier if you intend to live in the same house for a number of years.
The dining area has a four-seater place here, which makes it an average size in the market. I can imagine getting an extendable table though, as the width of the house can accommodate more. Of course, that infringes on the walkway but if you’re only having friends over once in a while, that could be a viable option for you.
The living room is also pretty standard in size, and while it does seem wide from certain angles, that’s probably because they did without a TV console here. It’s better if you are going without one of course, as it does free up precious space that would make your apartment look bigger.
As it stands, you can fit a three-seater sofa and a coffee table with relative ease.
I’ve always liked the idea of having a balcony, as it grants you the ability to ‘step out’ for a breath of fresh air within the confines of your unit. This is especially true for smaller apartments, which could get squeezy inside sometimes. The 6 sqm balcony here is a good size, giving you a degree of flexibility around what you wish to have here. You could have an outdoor gym area, a reading area, or both, which is exactly what the developers have done here.
For bathroom needs, your guests and the common bedroom will share the use of bath two, which is averagely sized at 4 sqm. The only downsides are the lack of windows and a rain shower, although these are so uncommon in common bathrooms that they should not be viewed as downsides anyway. Instead, let’s focus on the positives here – simple, clean design and sanitary wares from some of the great brands in the market – Laufen w/c and basin and Gessi tap and rain shower for your enjoyment. While I would have liked that this bathroom to link directly to the study adjacent to it, it’s no deal breaker surely.
The study is sized at 5 sqm and is just right in terms of practicality and size. You can just about fit two screens and a chair here, serving its function just as it’s stated. If you are feeling generous, I am also thinking that this study could potentially be sealed and made into a walk-in wardrobe for the common bedroom.
Bedroom two is average at 9 sqm, so if you so wanted to, you could probably combine it with the study to make this a much more generous bedroom. As it stands, however, you can still fit a queen bed with no room for much after.
The developers have gone with a sofa bed instead, freeing up the rest of the room for a simple study, which is perfect for those with school-going kids. You don’t get full-length windows here due to the aircon ledge being just beside the unit, which is a bit of a bummer. The wardrobe space is provided by the standard two-panel variety, although I do like the choice of the darker wood laminate used here.
The master bedroom on the other hand naturally feels more spacious at 17 sqm, although this includes the master bath, which is probably around 5 sqm by my rough estimate.
In this master bedroom, you have a built-in wardrobe that comes with an accessories compartment, which is handy and space efficient. As there is more space within the room, having a queen will still afford you space for bedside tables.
The fittings in the master bath are pretty much similar to those in the common bath, with the exception of the rain shower that we have here. Otherwise, you have the same top-quality wares from Swiss brand Laufen and Italian brand Gessi, which includes the wall-hung w/c, rain shower, etc.
Terra Hill is conveniently located just three mins from the Pasir Panjang MRT, which is on the Circle Line with its connectivity set to be enhanced once the “circle” is completed in 2026. It’s really not much longer and will be ready by the time Terra Hill is completed. As it stands, you are just three stops from HarbourFront MRT and One North and will be just seven stops from Marina Bay upon the completion of the loop in 2026.
I think there’s no doubt that Pasir Panjang is indeed objectively a convenient location in the RCR and I would go as far as to argue that it is one of the more underrated locations in Singapore.
Driving connectivity is great, as you are very close to the Mapletree Business City and VivoCity, both of which house a number of MNCs including Bank of America Merill Lynch, Google, and HP Enterprise. At the same time, it is also somewhat in between the CBD and One North and you can get there in a short time (when there’s no jam). As you know, these two locations support many of the major sectors in Singapore, including banking, law, and tech, industries which have helped to attract many talents from abroad.
Terra Hill also thrives on the nature front – the side gate brings you to Pepys Road, which leads you to Kent Ridge Park. You also have Labrador Park and HortPark close by, while enjoying harbour views at Keppel Bay. In many ways, this seems to be the best of many worlds and the opportunities to unwind or exercise with a view are definitely desirable factors for me.
You also get affordable food options quite literally at every step of the way. You have the Pasir Panjang Food Centre at Pasir Panjang MRT, which is a three-minute walk from Terra Hill. Alternatively, you have Telok Blangah Food Centre and Seah Im Food Centre if you choose to take the MRT a few stops down as well.
Of course, let’s not forget the slew of restaurants that you have peppered throughout the area including Hillman 99, an establishment with more than 40 years of history. You also, of course, have VivoCity which will meet your daily needs a few stops away.
Nevertheless, no location is perfect. The downside to Terra Hill is the lack of primary or secondary schools within one km, with the only primary school within two km being Blangah Rise Primary School. Parents will have to rely on alumni links if they wish to stand a chance with any top schools in the wider vicinity.
Nearest MRT: Pasir Panjang MRT (350m, 5 mins walk)
Public Transport
| Bus Station | Buses Serviced | Distance From Condo (& Est. Walking Time) |
| Opp Currency HseStop ID: 15199 | 10, 30, 51, 143, 175, 176, 188, 188e | 350m, 4 mins |
| Pasir Panjang Stn/FcStop ID: 15191 | 10, 30, 51, 143, 175, 176, 188 | 450m, 6 mins |
Schools
| School | Distance From Condo (& Est. Walking Time) |
| Blangah Rise Primary School | <2km |
| ISIS International School | <2km |
Malls / Amenities
| Destination | Distance From Condo (& Est. Driving Time) |
| Eccellente by HAO mart (Bijou) | 280m, 5 mins walk |
| Fairprice Alexandra Centre | 1.8km, 5 mins |
Private Transport
| Key Destinations | Distance From Condo (Fastest Time at Peak Hour [0830] Drive Time) |
| CBD (Raffles Place) | 8.5km, 12 mins |
| Orchard Road | 7.7km, 12 mins |
| Suntec City | 12.5km, 14 mins |
| Changi Airport | 27.2km, 22 mins |
| Tuas Port (By 2040) | 34.2km, 35 mins |
| Paya Lebar Quarters/Airbase (By 2030) | 14.3km, 22 mins |
| Mediapolis (and surroundings) | 17.6km, 16 mins |
| Mapletree Business City | 1.3km, 4 mins |
| Tuas Checkpoint | 23.8km, 22 mins |
| Woodlands Checkpoint | 25.7km, 22 mins |
| Jurong Cluster (JCube) | 11.8km 14 mins |
| Woodlands Cluster (Causeway Point) | 26.3km, 24 mins |
| HarbourFront Cluster (Vivo City) | 3.8km, 6 mins |
| Punggol Cluster (Waterway Point) | 27.7km, 26 mins |
Immediate Road Exits: 1 – onto Pasir Panjang Road
Hoi Hup Realty and Sunway Developments have partnered with each other on several projects over the years, including Royal Square @ Novena, Sophia Hills, The Miltonia Residences and Sea Esta. In the process, they have also been recognised with several awards by BCA, FIABCI-Singapore and EdgeProp. Their existing projects are Parc Central Residences and Ki Residences.
Founded in 1983, Hoi Hup Realty is a reputable niche property developer from Singapore with an international footprint. They have developed everything from City View @ Boon Keng, a DBSS to prime District 9 and 10 properties such as Suites @ Cairnhill and The Ford @ Holland. Hoi Hup has developed over 7,300 homes since its establishment. They also have several prime commercial properties in the City of London.
Sunway Developments is part of a Malaysian property development company listed on Bursa Securities, Malaysia’s stock exchange. In turn, Sunway Property is part of the Sunway conglomerate with businesses in 50 locations globally across 12 industries. Undoubtedly, Malaysian properties are their strong suit and they have ongoing developments in Johor, Penang, Ipoh and Klang Valley.
Unit Mix (by layout and any general points about it)
| Unit Type | Size | No. of Units |
| 2 Bedroom | 624 – 807 sqft | 70 |
| 3 Bedroom | 904 – 1,098 sqft | 108 |
| 3 Bedroom Penthouse | 1,249 – 1,335 sqft | 18 |
| 4 Bedroom | 1,302 – 1,355 sqft | 20 |
| 4 Bedroom + Study / Penthouse | 1,539 – 1,862 sqft | 19 |
| 4 Bedroom (Prestige Collection) | 1,894 sqft | 24 |
| 5 Bedroom Penthouse (Prestige Collection) | 2,120 – 3,035 sqft | 11 |
Hoi Hup Sunway has clearly put an emphasis on the larger units at Terra Hill, which I personally find to be a good choice considering its illustrious (but often under the radar) neighbours in Island View, Pepys Hill Condo, and The Peak among others. It is fair to say that there is a decent amount of demand for larger units in this area, and with most of the condos at Pasir Panjang being quite old, Terra Hill may become the centre of attention for potential buyers.
The 2 Bedroom units start from $1.5mil, 3 Bedroom from $2.3mil, 4 Bedroom from $3.4mil, and Prestige Collection units start from $5mil. The average price is expected to be around $2,600 psf with Terra Hill being positioned as a high-end development.
All units have either a northeast or southwest facing. Those facing the southwest would have direct afternoon sun for about half a year.
Your preferred stacks will always come down to the unit type that you are going for but as a general rule of thumb at Terra Hill, I prefer units that are outward facing, followed by inward pool-facing units. My least desirable (but most affordable) choices would be those that are by the boundary of the development (some units at Blocks 18 to 18B) and if you have trouble visualising them, head down to the show flat and you will know what I am talking about.
Starting with the most expensive, units at the Prestige Collection have a single loading layout, with just two units per block at Blocks 20, 20A, and 20B. For Blocks 20A and 20B, you have views of the 50m lap pool while for Block 20, you will have more of an unblocked view towards the port on the higher floors, and even on the lower floors, you may still have a glimpse of it given the 20m elevation from the condo’s entrance. One thing to note is that for Blocks 20A and 20B, you are also 24m from the next block, whose balconies will face you. While that distance is relatively healthy, those who prefer a little more privacy and/or views should probably go with Block 20 instead.
Other four-bedroom units in the Signature Collection have the option of inward or outward-facing units, with my preference being Stacks 37 and 53 and the least preferred being Stack 22 given its proximity to the next block.
As there are a number of three-bedroom stacks, it is not as straightforward to identify the best stack and I would refer to my general rule of thumb above. For those with a budget, the least desirable units are those by the South East as they face the hard wall that forms the boundary of Terra Hill and are expected to cost the least.
It is very much the same case for the two-bedroom units, with the smallest and most affordable units on this side of the development. Thus, if you do want a unit with a view of any sort and are prepared to pay more for it, you should avoid this side of the development.
If you are considering Terra Hill, you will undoubtedly compare it against its neighbouring developments. So here is how it stacks up!
| Development | Units | Psf | TOP | Tenure | Price Gap |
| Terra Hill | 270 | $2,600 | 2026 | Freehold | |
| Kent Ridge Hill Residences | 548 | $1,955 | 2024 | 99 Years | (25per cent) |
| Bijou | 120 | $2,072 | 2018 | Freehold | (20per cent) |
| Skyline Residences | 283 | $2,190 | 2015 | Freehold | (16per cent) |
| The Peak @ Balmeg | 180 | $1,623 | 2011 | Freehold | (38per cent) |
| The Peak | 20 | $1,285 | 1988 | Freehold | (51per cent) |
| Island View | 72 | $1,455 | 1984 | Freehold | (44per cent) |
The price comparison takes into account the new and existing surrounding properties, including those at Haw Par Villa and Telok Blangah.
I’ll start with Oxley Properties’ Kent Ridge Hill Residences, the other new launch in the area, which is only 700m away from Terra Hill. It is 25 per cent less on a psf basis compared to Terra Hill, with an earlier TOP date. In fact, it was launched at just $1,714 psf, which looks too good to be true in 2023.
Well, in that sense, Terra Hill should be considered reasonable for three reasons – firstly, Terra Hill is a freehold development which should rightly cost 25-30 per cent more, and secondly, Terra Hill is closer to Pasir Panjang MRT. Thirdly is the time period – we must remember that when Kent Ridge Hill was launched in 2018, it was a much different time as prices were just picking up after the low in 2017.
Next, I have included Bijou, which was the last freehold launch in this area. It is very much a boutique development, although it does have the advantage of having shops on the first floor including a supermarket. At 20per cent cheaper, it will look relatively attractive on paper but this is definitely one of those projects the naysayers of Terra Hill will highlight.
Bijou’s price has been stagnant since its launch and remains one of the rare developments where its highest psf is still stuck at its launch – $2,538 psf in 2014 to be exact. While many will point to Bijou as a cautionary tale, Terra Hill may be slightly different as it is a large development with more facilities that will appeal to a larger population.
Skyline Residences and The Peak@Balmeg are not at Pasir Panjang MRT itself, but at the nearby Telok Blangah and Haw Par Villa MRTs instead. They are cheaper by about 16per cent to 38per cent. In particular, Skyline Residences is an impressive development with efficient layouts for its units and facilities that include a 50m lap pool and a tennis court. Its 16per cent price difference is not much, hence it will come down to personal preference here – do you prefer a ready development with panoramic sea views on the higher floors or a new launch where buyers are coming in at similar prices?
Last but not least, I have included The Peak and Island View as Terra Hill’s immediate neighbours. The Peak is located at the top of Pepys Road, beside Reflections at Bukit Chandu, and was coincidentally (or maybe not) also developed by JV partners Hoi Hup and Sunway in 1988. With units ranging from 4,359 sqft to 5,500 sq ft, psfs look unrealistically low but have a high quantum. It’s very much the same case with Island View, a resort-style development with units from 3,057 sqft to 3,595 sq ft. These show that there is demand for large units in the Pasir Panjang area which bodes well for Terra Hill.
That’s the short overview, let us now go deeper into more comparisons from a quantum basis.
Terra Hill indicative prices:
| Type | Price | Size | $PSF |
| 2 Bedroom | $1.5xM | 624 | ~$2,484 |
| 3 Bedroom | $2.3xM | 904 | ~$2,600 |
| 4 Bedroom | $3.4xM | 1302 | ~$2,650 |
| 4 Bedroom (Prestige) | $5.0xM | 1894 | ~$2,666 |
Note: Indicative prices start from $1.5xxM, $2.3xxM, $3.4xxM, and $5.xxM. As I do not know the lowest, I will assume it starts at the midpoint in the $100,000 range to derive an estimated $PSF.
Judging from the high land costs and speculation of prices exceeding $2,000 PSF in OCR developments such as Lentor Modern and AMO Residence, it is clear that Terra Hill will follow suit.
Additionally, being a freehold development within the Rest of the Central Region sets it apart from other new launches – at least on paper.
From a macro perspective, the number of unsold private residential units in the pipeline has decreased since 2019.
More importantly, the total number of unsold units in launched private residential projects has significantly fallen.
| Quarter | Unsold Units in Launched Private Residential Projects (NUMBER) | Quarterly Percentage Change in Unsold Units in Launched Private Residential Projects (per cent) |
| 2020Q1 | 4506 | NA |
| 2020Q2 | 4889 | 8.5 |
| 2020Q3 | 5353 | 9.5 |
| 2020Q4 | 6126 | 14.4 |
| 2021Q1 | 6534 | 6.7 |
| 2021Q2 | 6057 | -7.3 |
| 2021Q3 | 4877 | -19.5 |
| 2021Q4 | 4266 | -12.5 |
| 2022Q1 | 3204 | -24.9 |
| 2022Q2 | 2829 | -11.7 |
| 2022Q3 | 2133 | -24.6 |
| 2022Q4 | 1930 | -9.5 |
Given this situation, those searching for new launches will have limited options. Despite this, the overall pricing for Terra Hill is not as high as one might expect for a new launch close to an MRT station, being freehold, and near the Greater Southern Waterfront.
In the following comparisons, I will examine available prices for new launches and compare them to the indicative prices at Terra Hill.
Note: The prices mentioned are based on current availability, not past sales. It is possible that the development may have had more affordable units in the past, but they are no longer available.
| 2 Bedroom | Tenure | Price From ($) | Median PSF ($) | Size Range | Segment |
| Pasir Ris 8 | 99 yrs from 05/07/2021 | $1,474,000 | $2,087 | 710 – 721 sq ft | Outside Central Region |
| The Gazania | Freehold | $1,513,000 | $2,379 | 635 – 700 sq ft | Outside Central Region |
| Terra Hill | Freehold | $1,550,000 | $2,484 | 624 – 840 sq ft | Rest of the Central Region |
| The Lilium | Freehold | $1,570,300 | $2,257 | 699 – 742 sq ft | Outside Central Region |
| Forett At Bukit Timah | Freehold | $1,716,000 | $1,950 | 764 – 947 sq ft | Rest of the Central Region |
| Hyll On Holland | Freehold | $1,716,700 | $2,904 | 570 – 710 sq ft | Core Central Region |
| Mori | Freehold | $1,719,000 | $1,955 | 883 – 883 sq ft | Rest of the Central Region |
| The Landmark | 99 yrs from 28/08/2020 | $1,770,240 | $2,748 | 678 – 764 sq ft | Rest of the Central Region |
| Kopar At Newton | 99 yrs from 22/04/2019 | $1,773,000 | $2,919 | 614 – 614 sq ft | Core Central Region |
| Irwell Hill Residences | 99 yrs from 13/04/2020 | $1,806,000 | $2,981 | 614 – 764 sq ft | Core Central Region |
| LIV @ MB | 99 yrs | $1,816,000 | $2,656 | 624 – 850 sq ft | Rest of the Central Region |
| Haus On Handy | 99 yrs from 07/05/2018 | $1,821,000 | $2,694 | 689 – 926 sq ft | Core Central Region |
| Neu At Novena | Freehold | $1,822,000 | $2,820 | 646 – 646 sq ft | Core Central Region |
| Leedon Green | Freehold | $1,837,000 | $2,919 | 614 – 926 sq ft | Core Central Region |
| 35 Gilstead | Freehold | $1,838,000 | $2,626 | 700 – 700 sq ft | Core Central Region |
| One Bernam | 99 yrs from 10/12/2019 | $1,851,000 | $2,796 | 700 – 872 sq ft | Core Central Region |
| Peak Residence | Freehold | $1,854,700 | $2,435 | 776 – 808 sq ft | Core Central Region |
| The M | 99 yrs from 03/07/2019 | $1,882,000 | $2,969 | 592 – 980 sq ft | Core Central Region |
| Van Holland | Freehold | $1,942,580 | $3,055 | 657 – 1001 sq ft | Core Central Region |
| 10 Evelyn | Freehold | $1,965,000 | $2,696 | 732 – 753 sq ft | Core Central Region |
| Wilshire Residences | Freehold | $1,968,000 | $2,814 | 743 – 797 sq ft | Core Central Region |
| One Pearl Bank | 99 yrs from 01/03/2019 | $2,048,000 | $2,965 | 700 – 840 sq ft | Rest of the Central Region |
| Grange 1866 | Freehold | $2,051,000 | $3,329 | 710 – 1012 sq ft | Core Central Region |
| Pullman Residences Newton | Freehold | $2,059,000 | $3,145 | 667 – 667 sq ft | Core Central Region |
| Cairnhill 16 | Freehold | $2,067,500 | $2,702 | 775 – 775 sq ft | Core Central Region |
| Meyer Mansion | Freehold | $2,144,600 | $3,113 | 689 – 689 sq ft | Rest of the Central Region |
| Ikigai | Freehold | $2,196,780 | $2,267 | 969 – 1087 sq ft | Core Central Region |
| Midtown Bay | 99 yrs from 02/01/2018 | $2,219,360 | $3,216 | 732 – 1152 sq ft | Core Central Region |
| The Reef At King’s Dock | 99 yrs from 12/01/2021 | $2,297,000 | $2,508 | 883 – 980 sq ft | Rest of the Central Region |
| The Atelier | Freehold | $2,324,000 | $2,868 | 872 – 915 sq ft | Core Central Region |
| Perfect Ten | Freehold | $2,474,100 | $3,278 | 753 – 797 sq ft | Core Central Region |
| Atlassia | Freehold | $2,585,427 | $2,054 | 1270 – 1270 sq ft | Rest of the Central Region |
| Klimt Cairnhill | Freehold | $2,650,000 | $3,289 | 829 – 893 sq ft | Core Central Region |
| Cuscaden Reserve | 99 yrs from 14/08/2018 | $2,762,000 | $3,525 | 807 – 926 sq ft | Core Central Region |
| 15 Holland Hill | Freehold | $3,919,770 | $3,064 | 1292 – 1292 sq ft | Core Central Region |
| Boulevard 88 | Freehold | $4,785,000 | $3,903 | 1313 – 1313 sq ft | Core Central Region |
| Park Nova | Freehold | $5,868,000 | $4,246 | 1432 – 1432 sq ft | Core Central Region |
When compared to the lowest-priced two-bedroom units, Terra Hill stands out as one of the most affordable options, at least in terms of the total price.
However, this is also because its competitors are in more traditionally desirable locations, such as the Core Central Region (districts 9, 10, 11) or closer to the central business district (e.g. The Landmark, One Pearl Bank).
Its only competitors with a lower price point are Pasir Ris 8 and The Gazania, which are both located Outside of the Central Region and in vastly different locations.
Interestingly, The Gazania takes about the same amount of time to reach the central business district as Terra Hill, and they are both within walking distance of a Circle Line MRT station.
They also have a similar number of units, but Terra Hill is at a higher price point.
The main difference between the two is their proximity to the Greater Southern Waterfront, which is marketed as desirable.
However, if this location difference is not a factor, Terra Hill pales in comparison to The Gazania, especially considering that previously sold units were likely priced lower than what is currently reported.
Another development worth mentioning is Mori. Our previous review of this freehold development in Geylang found prices to be highly competitive, so it is surprising that it is more expensive. But however, upon closer inspection, the asking price for the two-bedroom unit is for the 883 sq ft two-bedroom + guest unit, which is much larger as it includes a guest bedroom, making it not entirely comparable.
At present, the unit on level two is asking for $1,719,000, which is higher than the indicative starting prices at Terra Hill. However, this is understandable considering the differences between the two.
Overall when looking at currently available units, what remains on the market are those located in more central areas, within the CCR, or are larger in size, and have little to do with fundamental competitiveness.
| 3 Bedroom | Tenure | Price From ($) | Median PSF ($) | Size Range | Segment |
| North Gaia | 99 yrs from 15/02/2021 | $1,140,000 | $1,249 | 958 – 1076 sq ft | Outside Central Region |
| Zyanya | Freehold | $1,728,900 | $1,896 | 893 – 1044 sq ft | Rest of the Central Region |
| Royal Hallmark | Freehold | $1,740,000 | $2,184 | 797 – 936 sq ft | Rest of the Central Region |
| Bartley Vue | 99 yrs from 13/04/2020 | $1,887,000 | $1,888 | 947 – 1066 sq ft | Rest of the Central Region |
| Pasir Ris 8 | 99 yrs from 05/07/2021 | $1,934,000 | $1,784 | 1023 – 1302 sq ft | Outside Central Region |
| Baywind Residences | Freehold | $2,016,000 | $2,106 | 969 – 1055 sq ft | Outside Central Region |
| Mori | Freehold | $2,073,000 | $1,814 | 1098 – 1184 sq ft | Rest of the Central Region |
| Ki Residences At Brookvale | 999 yrs from 23/03/1885 | $2,081,000 | $2,223 | 936 – 1313 sq ft | Outside Central Region |
| Lentor Modern | 99 yrs | $2,130,100 | $2,109 | 969 – 1130 sq ft | Outside Central Region |
| Sky Eden@Bedok | 99 yrs | $2,199,000 | $2,082 | 1087 – 1302 sq ft | Outside Central Region |
| Atlassia | Freehold | $2,257,955 | $2,072 | 1098 – 1141 sq ft | Rest of the Central Region |
| Terra Hill | Freehold | $2,350,000 | $2,600 | 904 – 1335 sq ft | Rest of the Central Region |
| Piccadilly Grand | 99 yrs from 02/08/2021 | $2,524,000 | $1,861 | 1356 – 1356 sq ft | Rest of the Central Region |
| The Lilium | Freehold | $2,528,800 | $2,078 | 1227 – 1227 sq ft | Outside Central Region |
| Peak Residence | Freehold | $2,547,800 | $2,623 | 1066 – 1088 sq ft | Core Central Region |
| Haus On Handy | 99 yrs from 07/05/2018 | $2,607,000 | $2,754 | 947 – 1141 sq ft | Core Central Region |
| The Landmark | 99 yrs from 28/08/2020 | $2,615,888 | $2,601 | 1076 – 1141 sq ft | Rest of the Central Region |
| Enchante | Freehold | $2,695,000 | $2,768 | 1001 – 1270 sq ft | Core Central Region |
| Hyll On Holland | Freehold | $2,696,100 | $2,913 | 936 – 1055 sq ft | Core Central Region |
| The Atelier | Freehold | $2,724,000 | $2,779 | 1173 – 1281 sq ft | Core Central Region |
| Midtown Modern | 99 yrs from 10/12/2019 | $2,739,000 | $3,199 | 904 – 904 sq ft | Core Central Region |
| The Reef At King’s Dock | 99 yrs from 12/01/2021 | $2,785,620 | $2,593 | 1076 – 1345 sq ft | Rest of the Central Region |
| LIV @ MB | 99 yrs | $2,863,000 | $2,474 | 1119 – 1453 sq ft | Rest of the Central Region |
| Cairnhill 16 | Freehold | $2,876,300 | $2,758 | 1055 – 1292 sq ft | Core Central Region |
| One Pearl Bank | 99 yrs from 01/03/2019 | $2,988,000 | $2,782 | 1098 – 1281 sq ft | Rest of the Central Region |
| Ikigai | Freehold | $3,147,040 | $2,104 | 1496 – 1915 sq ft | Core Central Region |
| Meyer Mansion | Freehold | $3,205,400 | $2,890 | 1109 – 1496 sq ft | Rest of the Central Region |
| Pullman Residences Newton | Freehold | $3,258,000 | $3,064 | 1163 – 1281 sq ft | Core Central Region |
| Riviere | 99 yrs from 07/03/2018 | $3,258,000 | $3,041 | 1141 – 1711 sq ft | Rest of the Central Region |
| Mayfair Gardens | 99 yrs from 26/09/2018 | $3,261,000 | $1,980 | 1647 – 1647 sq ft | Rest of the Central Region |
| 10 Evelyn | Freehold | $3,276,000 | $2,692 | 1227 – 1238 sq ft | Core Central Region |
| One Bernam | 99 yrs from 10/12/2019 | $3,357,000 | $2,632 | 1421 – 1948 sq ft | Core Central Region |
| Van Holland | Freehold | $3,513,330 | $3,050 | 1152 – 1152 sq ft | Core Central Region |
| Perfect Ten | Freehold | $3,609,760 | $3,094 | 1227 – 1281 sq ft | Core Central Region |
| Kopar At Newton | 99 yrs from 22/04/2019 | $3,918,000 | $2,426 | 1615 – 1615 sq ft | Core Central Region |
| Cuscaden Reserve | 99 yrs from 14/08/2018 | $4,255,000 | $3,739 | 1152 – 1152 sq ft | Core Central Region |
| Midtown Bay | 99 yrs from 02/01/2018 | $4,437,200 | $3,657 | 1324 – 1324 sq ft | Core Central Region |
| Leedon Green | Freehold | $4,498,000 | $3,317 | 1356 – 1356 sq ft | Core Central Region |
| Klimt Cairnhill | Freehold | $4,850,000 | $3,509 | 1432 – 1496 sq ft | Core Central Region |
The picture for the 3-bedroom units is slightly different, as they are no longer at the lower end of the affordability spectrum. You’ll find that they are more expensive than Lentor Modern (integrated) and Sky Eden @ Bedok.
Lentor Modern is located in a relatively new area but it is integrated with a mall and an MRT station at your doorstep.
Sky Eden @ Bedok is quite competitive for several reasons:
It’s important to remember that when you’re buying a home, location is key. If you don’t plan to live in the east, developments like Atlassia and Sky Eden @ Bedok would not even be in the realm of consideration for you.
As such, it doesn’t even matter if they may be more suitable developments on paper if the location isn’t ideal.
So if you do work in Pasir Panjang in places like Mapletree Business Park, Terra Hill might be a better option for you.
Right now, the most affordable three-bedroom unit at Sky Eden @ Bedok on offer is the three-bedroom premium. It costs $2,199,000 and comes with a high ceiling, WC, and service yard. These features are great for families and more practical than a compact three-bedroom unit.
Another development that caught my attention is Piccadilly Grand. Currently, it only has one additional 3-bedroom unit, which is a flexible type and is the penthouse unit (#23). It is priced at $2,524,000 and is 1,356 sq ft in size, including a void area over the living and dining area.
For only $174,000 more than the most affordable three-bedroom unit, you could be the proud owner of a penthouse in an integrated development located in district 8. The unit includes a separate wet and dry kitchen, as well as a WC in the kitchen.
However, the design of the unit is not the best, as it doesn’t have a proper area for doing laundry (even though it says it does on the plans). Piccadilly Grand is a 99-year leasehold development, but young leasehold developments are known to maintain their value well in their early years.
The nearest alternative is the freehold development, The Lilium. It is located about a seven-minute walk from Bartley MRT, but one wouldn’t describe the location as fantastic. The increase in price is due to the size of the available units.
The most affordable three-bedroom is the premium type on #02, priced at $2,528,800. It has a size of 1,227 sq ft, featuring an enclosed kitchen, a well-designed service yard with ventilation, a bathroom, and a master bedroom with a walk-in wardrobe.
This difference in features of the unit can greatly impact your lifestyle for just an extra $178,800 (or a 7.6per cent increase in cost). It’s important to note that none of the three-bedroom units in Terra Hill has a designated service yard area.
Even if we assume a lower cost per square foot of $2,550 for the larger 1,098 sq ft unit, the total cost would still be close to $2.8 million, which is more expensive than The Lilium’s 3-bedroom premium unit but without the added convenience of a service yard.
| 4 Bedroom | Tenure | Price From ($) | Median PSF ($) | Size Range | Segment |
| North Gaia | 99 yrs from 15/02/2021 | $1,608,000 | $1,264 | 1313 – 1389 sq ft | Outside Central Region |
| The Watergardens At Canberra | 99 years leasehold | $1,941,000 | $1,505 | 1302 – 1302 sq ft | Outside Central Region |
| Zyanya | Freehold | $2,125,900 | $1,833 | 1195 – 1313 sq ft | Rest of the Central Region |
| Royal Hallmark | Freehold | $2,240,000 | $1,994 | 1130 – 1163 sq ft | Rest of the Central Region |
| Mori | Freehold | $2,355,000 | $1,879 | 1259 – 1259 sq ft | Rest of the Central Region |
| Bartley Vue | 99 yrs from 13/04/2020 | $2,422,000 | $1,809 | 1356 – 1356 sq ft | Rest of the Central Region |
| Atlassia | Freehold | $2,512,186 | $2,131 | 1163 – 1432 sq ft | Rest of the Central Region |
| Pasir Ris 8 | 99 yrs from 05/07/2021 | $2,596,000 | $1,777 | 1464 – 1464 sq ft | Outside Central Region |
| Sky Eden@Bedok | 99 yrs | $2,608,000 | $2,058 | 1302 – 1302 sq ft | Outside Central Region |
| The Lilium | Freehold | $2,620,300 | $1,980 | 1291 – 1969 sq ft | Outside Central Region |
| Piccadilly Grand | 99 yrs from 02/08/2021 | $2,823,000 | $2,088 | 1378 – 1744 sq ft | Rest of the Central Region |
| The Gazania | Freehold | $2,866,000 | $1,955 | 1259 – 1970 sq ft | Outside Central Region |
| Lentor Modern | 99 yrs | $3,011,900 | $2,024 | 1528 – 1528 sq ft | Outside Central Region |
| Peak Residence | Freehold | $3,319,800 | $2,613 | 1389 – 1389 sq ft | Core Central Region |
| Neu At Novena | Freehold | $3,339,000 | $2,753 | 1195 – 1302 sq ft | Core Central Region |
| Terra Hill | Freehold | $3,450,000 | $2,650 | 1302 – 1862 sq ft | Rest of the Central Region |
| Enchante | Freehold | $3,460,000 | $2,739 | 1281 – 1281 sq ft | Core Central Region |
| Wilshire Residences | Freehold | $3,556,000 | $2,800 | 1270 – 1270 sq ft | Core Central Region |
| Midtown Modern | 99 yrs from 10/12/2019 | $3,781,000 | $2,853 | 1442 – 1808 sq ft | Core Central Region |
| One Pearl Bank | 99 yrs from 01/03/2019 | $3,821,000 | $2,887 | 1399 – 2788 sq ft | Rest of the Central Region |
| Van Holland | Freehold | $3,865,590 | $2,825 | 1345 – 1593 sq ft | Core Central Region |
| LIV @ MB | 99 yrs | $3,896,000 | $2,640 | 1518 – 1668 sq ft | Rest of the Central Region |
| Kopar At Newton | 99 yrs from 22/04/2019 | $3,967,000 | $2,531 | 1528 – 1604 sq ft | Core Central Region |
| The Atelier | Freehold | $4,371,000 | $2,972 | 1496 – 1496 sq ft | Core Central Region |
| Pullman Residences Newton | Freehold | $4,411,000 | $3,210 | 1378 – 1378 sq ft | Core Central Region |
| Parc Clematis | 99 yrs from 08/08/2019 | $4,530,000 | $1,307 | 3466 – 3466 sq ft | Outside Central Region |
| Meyer Mansion | Freehold | $4,713,300 | $2,753 | 1722 – 1722 sq ft | Rest of the Central Region |
| Leedon Green | Freehold | $5,088,000 | $3,401 | 1496 – 1496 sq ft | Core Central Region |
| Cairnhill 16 | Freehold | $5,239,900 | $3,005 | 1744 – 1744 sq ft | Core Central Region |
| Canninghill Piers | 99 yrs from 03/09/2021 | $5,544,000 | $2,830 | 1959 – 1959 sq ft | Rest of the Central Region |
| AMO Residence | 99 yrs | $5,588,000 | $2,498 | 2293 – 2293 sq ft | Outside Central Region |
| The Avenir | Freehold | $6,708,000 | $3,252 | 2067 – 2067 sq ft | Core Central Region |
| Irwell Hill Residences | 99 yrs from 13/04/2020 | $9,452,000 | $4,242 | 2228 – 2228 sq ft | Core Central Region |
When we compare the starting price of the four-bedroom units, Terra Hill falls in the middle of the range. As previously mentioned, the reason for higher prices in some developments can be due to their larger size or more central location. So, let’s see how Terra Hill’s four-bedroom units stack up.
Terra Hill’s lowest-priced four-bedroom is priced at $3.4x million, which is already more expensive than Peak Residence, a freehold development in the Core Central Region (District 11).
Although Peak Residence is in a more central location, its location isn’t the most ideal. It’s not close to any MRT station, and if you don’t drive, it can be a hassle to walk up the hill each day. Plus, the walk isn’t sheltered.
The advantage of Peak Residence is the abundance of amenities across the street in Balestier. For those who don’t mind the drawbacks mentioned above, here’s what the cheapest 4-bedroom unit looks like:
The four-bedroom unit at Terra Hill includes three naturally-ventilated bathrooms, giving it an edge over Peak Residence, which only has two. However, Terra Hill doesn’t have a service yard like Peak Residence does.
While Peak Residence has a study room with a window instead of a bomb shelter, it’s just a matter of preference for either additional storage or a separate workspace.
Another development with prices similar to Terra Hill’s four-bedroom units is Enchante. It’s a freehold boutique development located near Newton, just a 7-minute walk from the Newton MRT station. There are only three four-bedroom units available now, starting at $3,460,000 (#12). This is very close to Terra Hill’s starting price for four-bedders, so here’s what the layout looks like:
Considering the size of 1,281 sq ft, the lack of a spacious dining area in Enchante might be a drawback for some (as well as the lack of a proper utility). However, the layout offers some unique features that make up for it.
For example, the dining area can be expanded onto the balcony, the home office can be transformed into a larger bedroom, and the master bedroom has its own balcony, which enhances ventilation.
Additionally, the unit includes a private lift lobby and three out of the four bedrooms have en-suite bathrooms.
While the yard in Enchante is really small, it’s still a feature that the smallest four-bedroom at Terra Hill does not have.
On the other hand, Terra Hill has better facilities because of its larger area, but Enchante offers a more exclusive experience with only 25 units available.
In the end, it comes down to personal preference and what your family needs in terms of layout and location, which are likely the two most important factors to consider.
2 Bedroom
| Project Name | Built Year | Avg. Price | Avg $PSF |
| MENDON SPRING | 2002 | $1,284,000 | $1,215 |
| THE MAYLEA | 2008 | $1,443,000 | $1,459 |
| BIJOU | 2018 | $1,755,485 | $2,265 |
| THE GRANDHILL | 2006 | $1,800,000 | $956 |
3 Bedroom
| Project Name | Built Year | Avg. Price | Avg $PSF |
| VENTANA | 2003 | $1,798,000 | $1,380 |
| TREASURE PLACE | 2006 | $1,920,000 | $1,416 |
| PASIR VIEW PARK | 1994 | $2,000,000 | $1,498 |
| THE MAYLEA | 2008 | $2,270,000 | $1,318 |
4 Bedroom
| Project Name | Built Year | Avg. Price | Avg $PSF |
| TREASURE PLACE | 2006 | $2,575,000 | $1,266 |
| 24 ONE RESIDENCES | 2019 | $2,580,000 | $1,620 |
| THE PEAK | 1988 | $5,600,000 | $1,285 |
It’s important to note that all of the resale developments in this area are freehold, so Terra Hill’s tenure doesn’t offer a distinct advantage. In terms of resale developments within 500m of Terra Hill, I found only 24 transactions in the latter half of 2022. Additionally, the average price per square foot is lower for these resale units, which could contribute to the perception of Terra Hill being overpriced.
One exception that breached the $2,000 mark is Bijou, a freehold boutique development by Far East Organization that was built in 2018. It is located next to the MRT station, and its latest 2-bedroom unit on level five sold for $1,755,485 ($2,265 psf). The unit is 775 sq ft in size and features a loft, a signature feature of Bijou’s “Soho” living style:
The layout of the dual-key unit at Terra Hill may be a bit of a challenge to imagine, so here’s a video tour to help give you a better idea. It’s a unique design, but not everyone may be a fan of it due to the daily use of stairs. However, it could be ideal for families with elderly parents, young couples without children, or single people looking for an investment property.
If you’re interested in the Pasir Panjang area, which is popular among renters due to its proximity to Mapletree Business Park, this dual-key unit may be a good option for those looking to live and rent out a studio.
The two-bedroom at Terra Hill may also be a good choice in terms of competitiveness, despite being smaller on paper.
Terra Hill’s layout is a dumbbell one so it’s efficient. Additionally, the smallest two-bedroom unit at Terra Hill has two bathrooms, unlike some compact two-bedrooms that only have 1, which can create uncomfortable situations.
Keep in mind, this particular unit at Bijou faces the AYE which means a higher noise level.
If you’re open to an older development, you could also consider Mendon Spring, where you can find a 2+Study for around $1.2 million. The unit is 1,055 sq ft, which is 69per cent larger than the one at Terra Hill, and here’s a recent example of a sold unit:



While the unit is spacious, it definitely shows its age and requires some renovation work, which could come with additional costs. The exterior and facilities of the development are also outdated, lacking elevators and forcing residents on higher floors to climb stairs. Additionally, the development is located one bus stop away from the MRT, making it less convenient compared to Terra Hill which is a walk out.
There has also been negative feedback regarding the management of the development. All these factors could contribute to potential buyers reconsidering the development.
Turning to the three-bedders, a recent transaction of the newest development based on the table, The Maylea, sold for $2,270,000, which happens to be a penthouse unit. This is not far from Terra Hill’s starting price of $2,350,000. The unit looks like this:

Given its 2008 build year, the presence of bay windows in The Maylea isn’t unexpected. Much of the space is dedicated to a rooftop terrace. While the room sizes may not be awe-inspiring, there’s a study room that can be quite useful.
Located just a six-minute walk from Haw Par Villa MRT, The Maylea also has decent amenities, including a lap pool.
Overall, The Maylea is a compelling option despite its age. Although a roof terrace and bay windows may not be for everyone, it offers affordability and additional features like a study room and a WC in the kitchen.
Turning to the four bedrooms, the most recently built resale condo with a recent transaction is 24 One Residence, located just a few minutes walk from Haw Par Villa MRT. This four-bedder was sold for $2,580,000 and is situated on the first floor.
One of the nice features of this unit is its spacious family area, but it overlooks the living room so it may not be suitable as a standalone bedroom without renovation.
Splitting the living areas into two floors is less desirable, as the family area could become underutilised.
Additionally, the kitchen is not impressive for a four-bedroom unit and there is no proper service yard area.
The entryway is also larger than necessary, leaving room for a possible storeroom.
Despite all these drawbacks, the 4-bedroom unit at 24 One Residences is a strong contender due to its lower price tag.
Overall, I think that the 2-bedroom unit’s pricing makes sense given its efficient layout and decent value, especially with the low supply of new launches in the area.
When it comes to the three- and four-bedrooms, it ultimately depends on personal location preferences as well as how much of a premium you are prepared to pay for a much more modern and luxurious development.
The Greater Southern Waterfront vision has many years before it will start bearing fruit, with the Pasir Panjang Terminal only set to move to Tuas by 2040. Nevertheless, you cannot deny that Terra Hill is indeed at the cusp of it all. What used to be sea just across Pasir Panjang Road was reclaimed for the port and an exciting future awaits the area after 2040.
Terra Hill will certainly benefit from better sea views upon the move and more practically, see renewed interest as a freehold property once the precinct sets to build up after 2040. In fact, we already see investments coming into this area, with Labrador Tower, a 34-storey Grade A office building set to be completed in 2024.
If you have always wondered why the Circle Line was not a full circle, you have your answer now. The last three stations – Keppel, Cantonment and Prince Edward are set to be completed in 2026 and this will bring residents at Pasir Panjang MRT to Marina Bay within seven stations.
More importantly, you do not have to change trains along the way. This will help to boost its rental desirability, especially since Terra Hill is located close to not only the CBD, but to Mapletree Business City and one-north as well.
Overall, I think that the development makes sense for families looking to stay in the Pasir Panjang area, but are looking for something brand new amidst a variety of old and large-format unit developments.
Terra Hill ticks many boxes in terms of its location and future growth prospects around the area. It has a history of being an area where the wealthy used to build their seaside homes, with great access to the MRT and close proximity to the CBD, Mapletree Business City and One North. Yet at the same time, it has both parks and the sea within walking distance too.
[[nid:610105]]
The Greater Southern Waterfront will only bring about more interest in the area in the coming years and Terra Hill’s position as the newest kid on the block would perhaps make it more enviable when the Pasir Panjang Terminal moves by 2040.
The condo’s product itself is also well executed. Unit layouts are generally done efficiently, with a focus on large units through the Prestige Collection. I would laud the developers for the use of high-end fittings despite inflationary pressure in 2023 – you will be hard-pressed to find an RCR development with V-Zug, De Dietrich, Laufen and Gessi fittings these days.
But let’s address the elephant in the room first – the pricing. Let’s just say that the average expected psf of $2,600 is still uncharted territory for Pasir Panjang, but it does make its claim for being differentiated as a more luxurious development.
As such, if you’ve been looking for a more luxurious family unit, but staying centrally isn’t a big factor for you, the larger units in the Prestige Collection will fill a niche that is presently not easy to find.
Terra Hill is minutes from Mapletree Business City, one-north and the CBD.
Terra Hill bucks the trend of the Boschs and Brandts with De Dietrichs and V-Zugs and highlights the developer’s keen desire to pitch this as a high end development.
The truth is, this applies to every new launch out there – you will be part of the group setting a new benchmark for the area and this does take a little courage and reasonably deep pockets.
It’s actually not bad at all, with an average of 24m between blocks, but I can see why buyers purchasing units for an average of $2.5m may prefer a development with more green spaces.
This article was first published in Stackedhomes.