We pick out top 10 BTO projects that will MOP in 2022

With the demand for ready-to-move-in homes during these pandemic times, many have been looking forward to 2022, where there’s a total of 36 BTO estates that will have reached the much-awaited MOP status. We recently compiled the full list, along with the brochures, some commentary on each, and the analysis of each floor plan to help you compare — spilt into non-mature and mature estates.
We understand though, that it is a ton of estates to look through. To simplify the process, we’ve picked out 10 of what we think are the ones to look out for, and their greatest features:
The Fernvale site is good if you don’t like to travel out for food and groceries. This is something of an enclave, with a good range of small shops and eateries. There’s a Sheng Siong nearby, at 417 Fernvale Link, and a food court and coffee shop across from the existing block 418.
There’s also an E-Bridge preschool near the same stretch.
For more major retail needs, however, you’ll probably need to head out to The Seletar Mall or Compass One.
There are a number of primary schools within the one-kilometre priority enrolment range: Fern Green, Sengkang Green, Fernvale, and Anchor Green Primary School. Along with good access to green spaces (Riverside Trail next to the Punggol Reservoir), this is a good spot for families.
Many units will have a good view of the Punggol Reservoir, but we do feel the inner stacks may be a bit close to the opposite block. The main road and LRT tracks may also pass closer to some blocks, which may have slightly higher noise levels.
The most significant drawback to this location would be the lack of an MRT station nearby. The Layar LRT station is practically next door though, which could mitigate the issue for some buyers.
| Criteria | Score | Commentary |
| Self-sustaining development | 5/5 | Basic amenities in the development itself. |
| Close to amenities | 3/5 | Convenient for food and groceries, but you need to head out to The Seletar Mall and Compass One for more major retail options. |
| Close to transportation (less than 10-minutes’ walk) | 3/5 | Doorstep access to Layar LRT station, but no actual MRT station in walking distance. |
| Uniqueness of layout | 4/5 | Unique 5-room layout for certain stacks, which include a balcony area. |
| Design of project | 4/5 |
|
Recent transactions (past 12 months): NIL
This is a mostly smaller enclave, with small shops and eateries right downstairs. There’s also a Sheng Siong at Block 338, near the famous Buey Tahan See-Food. You’ll need to travel out for any more serious shopping though.
The stacks with five-room flats are quite interesting here, as some offer a unique layout with a balcony. It’s also a lower-density development, which provides a somewhat greater sense of privacy. That said, we note that some stacks are closer to the TPE, and these will probably experience some noise. The inner stacks may also be a bit close to the opposite block.
READ ALSO: May 2022 HDB BTO overview: Bukit Merah, Queenstown, Toa Payoh, Yishun and Jurong West
Accessibility is just okay, as you need to use the Farmway LRT (about four to six minutes’ walk) to connect to the wider MRT network. On the upside, you are within priority enrolment of Springdale Primary, Nan Chiau Primary, and Anchor Green Primary School.
| Criteria | Score | Commentary |
| Self-sustaining development | 5/5 | Basic amenities in the development itself. |
| Close to amenities | 3/5 | Need to travel out for wider retail options, but there’s food and groceries nearby |
| Somewhat accessible | 3/5 | It’s probably too far to walk to Sengkang MRT station, but you’re within walking distance to Farmway LRT station (about four to six minutes’ walk depending on the block) |
| Uniqueness of layout | 4/5 | Unique 5-room layout for certain stacks, with a balcony area. |
| Design of project | 4/5 | Certain stacks enjoy an unblocked park view, and there’s a lower density feel to the project. But the standard white tone can look dated after a decade or two, depending on how well HDB maintains it. |
Recent transactions (past 12 months): NIL
Note that the Canberra sites EastCrown, EastLace, and EastWave (see below) are quite close together, so share many locational benefits.
The EastCrown launch site overcomes the lack of amenities common to many areas of Canberra. While it’s true the neighbourhood is still quite under-developed, this site is next to Canberra Plaza, and near EastWave @ Canberra; so residents probably won’t feel any lack of convenience.
READ ALSO: 12 areas with the most affordable 40-year-old resale HDB flats in Singapore
A key selling point here is proximity to Canberra MRT, which is just three to five minutes away on foot. Despite the proximity, the site is relatively well distanced from the noise of the MRT tracks; there’s nothing passing too close to the blocks.
The MRT access somewhat makes up for the lower bus connectivity in the area (but note that sometimes, bus services are ramped up once construction is complete).
What some buyers may not like is the lack of schools within 1km; Chong Fu Primary is the sole institution. There are also 1,200 units for this site, which some buyers may consider too densely packed.
| Criteria | Score | Commentary |
| Self-sustaining development | 0/5 | Lacks amenities in the development itself. However, Canberra Plaza is right next door. |
| Close to amenities | 5/5 | Located right next to Canberra Plaza, and near EastWave @ Canberra BTO for basic amenities |
| Close to transportation (less than 10-minutes’ walk) | 4/5 | Within walking distance to Canberra MRT station (Three to five minutes’ walk depending on the block) |
| Uniqueness of layout | 3/5 | Nothing too special. Most of the layouts are common BTO layouts. |
| Design of project | 3/5 |
|
Recent transactions (past 12 months): NIL
EastLace is broadly similar to its other neighbouring peers here, with some key differences:
Unlike EastCrown, it is an area with shops and eateries right downstairs; we understand it has its own minimart.
This launch site is also within priority enrolment distance of Sembawang Primary and Wellington Primary, instead of Chong Fu Primary.
Note that some (but not all) stacks here may be located closer to the MRT tracks or main road, compared to EastCrown. As with EastCrown, some residents may find the inner stacks are a bit close to the opposite block.
| Criteria | Score | Commentary |
| Self-sustaining development | 5/5 | Basic amenities in the development itself. |
| Close to amenities | 5/5 | Located within walking distance to Canberra Plaza. |
| Close to transportation (less than 10-minute walk) | 4/5 | Within walking distance to Canberra MRT station (four to six minutes’ walk depending on the block) |
| Uniqueness of layout | 3/5 | Most of the layouts are common BTO layouts. |
| Design of project | 3/5 |
|
Recent transactions (past 12 months): NIL
The third in the group of Canberra BTO launches, EastWave is self-sustaining, with shops and eateries downstairs. Like EastCrown, it’s well-distanced from the MRT track, despite staying within walking distance.
However, there may be some temporary noise disruptions, from the development of the next plot over. Other than that, it is close to the other two Canberra plots; and it has Sembawang Primary and Wellington Primary schools within enrollment range.
As with EastCrown, bus connectivity here isn’t as great right now (but as we mentioned earlier, bus services can sometimes ramp up after construction is completed).
| Criteria | Score | Commentary |
| Self-sustaining development | 5/5 | There are basic amenities in development itself. |
| Close to amenities | 5/5 | Located within walking distance to Canberra Plaza. |
| Close to transportation (less than 10-minute walk) | 4/5 | Within walking distance to Canberra MRT station (four to six minutes’ walk depending on the block) |
| Uniqueness of layout | 3/5 | Most of the layouts are common BTO layouts. |
| Design of project | 4/5 | Some of the 5-room units have unique window panels. The blocks here are quite vibrant, with façades painted in various colour tones. |
Recent transactions (past 12 months):
Four-room: $485,000 to $580,000
Five-room: $630,000 to $700,000
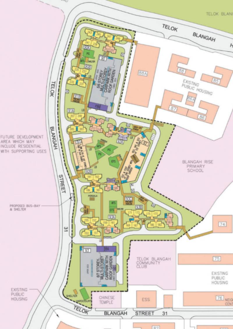
For those who work at Mapletree Business City, note that the Telok Blangah site is just a six-minute drive away. This site is also less than a 10-minute drive to the Haw Par Villa area, for those who like their culture parks.
Perhaps the biggest selling points are being on the city fringe and the fantastic views. The south-facing units offer a sea view, while north-facing units overlook the surrounding greenery.
It’s almost enough to make you forget that this is quite a dense project, with over 1,400 units; and the inner stacks seem like they’re quite close to the opposite block.
READ ALSO: HDB fire insurance vs home insurance — what's the difference?
Another drawback is the lack of nearby schools, with only Blangah Rise Primary being in range.
We’re also lukewarm on the public transport options: We suppose you could walk to Labrador Park or Telok Blangah MRT stations in under 10 minutes (they’re equidistant). But those stations are barely under 10 minutes, and it is an uphill and unsheltered walk all the way.
It’s also a bit disappointing that there are no five-room flats in the mix, so bigger families may have to look elsewhere. A pity, since many families would love that the development has its own preschool and elder care centre.
| Criteria | Score | Commentary |
| Self-sustaining development | 5/5 | Basic amenities in the development itself, with pre-school and elder care facilities. |
| Close to amenities | 4/5 | Plenty of amenities located nearby, as you’d expect in a city fringe location; a lot of artisanal cafes and hipster diners too |
| Close to transportation (less than 10-minute walk) | 3/5 | Though located between two MRT stations, it is quite an upslope walk. It is also unsheltered. |
| Uniqueness of layout | 3/5 | Most of the layouts are common BTO layouts. |
| Design of project | 3/5 |
|
Recent transactions (past 12 months): NIL
It’s been a while since we’ve seen a launch near Khatib MRT station, and this is it. This HDB site is on the doorstep of the station; and if you know this area, you’ll know it’s super convenient.
The Giant supermarket is also near this stretch — and along the nearby Yishun Ring Road, you can find many small shops and eateries, as well as a Sheng Siong. So while this development doesn’t have its own shops, it’s more or less irrelevant; almost every day-to-day amenity is already within walking distance.
As with most projects next to MRT stations, however, you have to brace for some possibility of noise from the train tracks.
Naval Base, Northland, and Pei Ying Primary Schools are all within 1km, which makes this good for families. Unfortunately, there will only be studio and three-room flats launched here; so bigger families may want to look elsewhere.
| Criteria | Score | Commentary |
| Self-sustaining development | 0/5 | Lack amenities in the development itself; but this is mostly a non-issue, as the area around Khatib MRT contains most of the neighbourhood’s key amenities |
| Close to amenities | 5/5 | This spot is where the key amenities are. |
| Close to transportation (less than 10-minute walk) | 5/5 | On the doorstep of Khatib MRT station |
| Uniqueness of layout | 4/5 | Unusually, some of the studio units here have balconies! |
| Design of project | 3/5 | Nothing special overall, a typical BTO design, albeit on a small land plot |
Recent transactions (past 12 months):
Three-room: $458,000
This site is near the famous Ang Mo Kio Ming Chicken Rice! It’s across from Mayflower Secondary school, in a pretty subdued and peaceful area.
The development has its own shops, supermarket, and eating house; and we note there’s a Sparkletots pre-school at Block 260B. Besides Mayflower Secondary, Ai Tong, Ang Mo Kio Primary School, and CHIJ St Nicholas Girls School are all within the priority enrolment range.
READ ALSO: Want to buy a HDB on a long remaining lease? 7 MOP-ed resale HDBs to consider in 2022
Coupled with good MRT access (five to seven minutes from Mayflower MRT), this is a location that will appeal to families. For now, there are a few new blocks nearby, so it also feels less packed.
It’s a bit far from any major retail hubs though, so you should probably be ready to travel out for more heavy-duty shopping.
We’d be on the lookout for some stacks that feature unique layouts, and panoramic views of the area; follow us for further updates on a possible future insider tour.
| Criteria | Score | Commentary |
| Self-sustaining development | 5/5 | Basic amenities in the development itself. |
| Close to amenities | 3/5 | No major retail hubs nearby |
| Close to transportation (less than 10-minute walk) | 4/5 | Close to Mayflower MRT station, but it is unsheltered (five to seven minutes walk) |
| Uniqueness of layout | 4/5 | Certain stacks have unique layout plans for both unit types. |
| Design of project | 3/5 | Typical BTO design. Nothing special here. |
Recent transactions (past 12 months):
Four-room: $752,000 to $860,000
Five-room: $938,000 to $1,050,000
Ghim Moh Edge will probably be the first pick for those with children studying at Singapore Polytechnic. This site is smack between Dover MRT station (connected to Singapore Polytechnic), and Buona Vista MRT (close to the Star Vista, a major mall).
Those who work at the One-North tech and media hub may like the location — it’s only around a five-minute drive, and the Buona Vista MRT station is just a stop away from One-North MRT.
The development is self-sustaining, with shops, eating houses, and an eldercare centre. For those with younger children, Henry Park and Fairfield Methodist Primary School are both in the enrolment range.
Some stacks and floors offer a good panoramic view, and there’s a generous distance between blocks, but a few stacks may face MRT track noise and road noise. There are no five-room flats, and a count of over 1,100 units may be a bit too dense for some.
| Criteria | Score | Commentary |
| Self-sustaining development | 5/5 | Basic amenities in the development itself, with preschool and eldercare facilities |
| Close to amenities | 4/5 | More amenities options are located nearby |
| Close to transportation (less than 10-minute walk) | 4/5 | Flanked between two MRT stations, it is quite an upslope walk. It is also unsheltered. |
| Uniqueness of layout | 3/5 | Most of the layouts are common BTO layouts. |
| Design of project | 4/5 |
|
Recent transactions (past 12 months): NIL
With a desirable location like Toa Payoh, it doesn’t take much to make this site top the list. This is also going to be a self-sustaining development, with its own shops, supermarket, and eatery.
The highlight here would be the walking distance to the Caldecott and Braddell MRT stations; transport-wise this is one of the best BTO sites. Note that Braddell on the North-South line is just four stops away from Orchard MRT, while Caldecott also provides access to the Circle Cline (CC).
There’s also a lack of new HDB blocks in the area, at least for now; so it forms a quiet enclave, with good panoramic views and distances between blocks.
Marymount Convent School, Keng Cheng School, CHIJ Primary are all in priority enrolment distance; but unfortunately for some families, there are no five-room flats.
| Criteria | Score | Commentary |
| Self-sustaining development | 5/5 | Basic amenities in development itself with shops, supermarket, and eatery |
| Close to amenities | 5/5 | Toa Payoh is a well built-up area, you’ll find many day-to-day amenities across the street. |
| Close to transportation (less than 10-minute walk) | 4/5 | Walking distance to two MRT stations, Caldecott and Braddel MRT |
| Uniqueness of layout | 3/5 | Typical BTO layout plan, nothing special |
| Design of project | 4/5 | We do like the playground design and facilities building in this development, but the white colour tone has been known to start looking dated more quickly |
READ ALSO: Old HDB flats are being snapped up by young Singaporeans, but why?
This article was first published in Stackedhomes.