10 most affordable new-launch 4-bedroom units under $1,540 psf for families

Big units are in this pandemic season. It’s especially telling, as our recent piece on affordable 4 bedroom units in the resale category was very well received.
On the ground, sales for bigger units have been moving – median unit sizes have grown by 4.5 per cent year-on-year, in recent purchases. This is alongside a 72 per cent increase in new home sales, for units 1,200 sq. ft. or above.
In light of the current trend, we’ve compiled a list of the top 10 condo new launches that are cheapest on a per-square-foot basis; this will help families to get the most space per dollar spent.
Note, this list is based on current available units at the time of writing (not past transaction data), so the prices may or may not be available – depending on when you read this! Here goes:
We have a full review of Jovell on Stacked.
| 4-bedder size | Price PSF | Quantum |
| 1,270 sq. ft. | $1,250.87 | $1.588 million |
Current prices indicates a median developer price of $1,269 psf, with a lowest price of $1,189 psf, and a highest price of $1,524 psf.
Location: Flora Drive (District 17)
Developer: Tripartite Developers Pte. Ltd.
Lease: 99-years
TOP: 2023
Number of units: 429
Jovell tops the list, for 4-bedders with the lowest price per square foot. At close to $1.6 million, the price tag is closer to what you’d expect for a typical 3-bedder today.
The downside is that Flora Drive is not very accessible. There’s no MRT in walking distance, and nor is there any bus service nearby (although we understand shuttle services have been organised for the condo).
However, Jovell is quite convenient if you drive. Loyang Point mall is only seven minutes away, while Tampines Mart is a nine-minute drive (there’s a Giant supermarket here). It’s about the same distance to the hub of Tampines, where you’ll find malls like Century Square and Tampines One.
Overall, Jovell can be a cost-effective alternative to more expensive condos in Tampines Hub; but those who need public transport should look elsewhere.
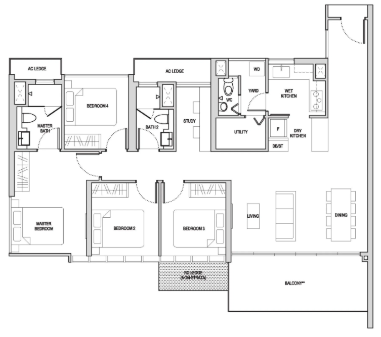
This 4 bedroom unit in question at Jovell is the biggest on offer at 1,270 square feet. It doesn’t come with a wet and dry kitchen which you might find in certain 4 bedroom layouts, and all the bedrooms are down the hallway which while great for bigger family, it may not be as ideal for those looking for a multi-generation set up.
It does come with the pre-requisities of a yard and utility room. One of the good things too is the jack and jill bathroom for 2 of the common bedrooms, and an attached bath for the 4th bedroom. This essentially means that every bedroom here will come with access to a bathroom.
We have a full review of Treasure at Tampines on Stacked.
| 4-bedder size | Price PSF | Quantum |
| 1,238 sq. ft. | $1,317.45 | $1.631 million |
Current prices indicates a median developer price of $1,423 psf, with a lowest price of $1,289 psf, and a highest price of $1,560 psf.
Location: Tampines Lane (District 18)
Developer: Sim Lian Group Ltd.
Lease: 99-years
TOP: 2023
Number of units: 2,203
Treasure at Tampines is currently the largest condo development in Singapore, with its 2,203 units. As with most mega-developments, this means more extensive facilities (compared to typical condo projects), and lower overall costs (maintenance is also much lower, given the number of units sharing the costs).
Treasure at Tampines is about a seven-minute drive to the neighbourhood’s hotspot, where you’ll find Tampines One, Century Square, grade A offices, and so forth. It’s also got four schools within the one-kilometre enrolment distance:
The price point is undeniably attractive, given the (four-bedder) unit size and extensive facilities. However, the large number of units comes at a cost of privacy; and investors may worry about competition for rental and resale.
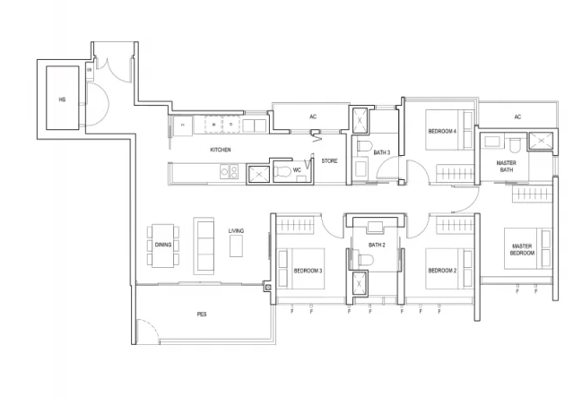
At 1,238 square feet, this 4 bedroom unit at Treasure at Tampines comes in slightly smaller than the one at Jovell. As you might expect, there are a number of different four bedroom layouts and sizes at Treasure at Tampines – and this is the smallest entry level unit available.
This means that it does come with several points to note. For one, the kitchen is on the small side for a 4 bedroom unit. And unlike Jovell, all 3 common bedrooms will share one common bathroom. Bedroom 4 is quite small too, you are only able to fit in a single bed – or perhaps it’s really better off as a study.
ALSO READ: 10 mega-sized condos in Singapore for families that need space
| 4-bedder size | Price PSF | Quantum |
| 1,410 sq. ft. | $1,346.10 | $1.898 million |
Current prices indicates a median developer price of $1,339 psf, with a lowest price of $1,101 psf, and a highest price of $1,507 psf.
This development is 90 per cent sold at the time of writing.
Location: Hougang Avenue 7 (District 19)
Developer: Rio Casa Venture Pte. Ltd.
Lease: 99-years
TOP: 2024
Number of units: 1,472
Riverfront Residences adjoins a strip of park land that runs along the Sungei Serangoon. This provides easy access for outdoorsy families, who like jogs, biking, walks, etc. Because the development faces out to the canal, and has park land so close by, it mitigates the effect of being in a fairly dense area.
While there isn’t much in the way of across-the-road amenities, Hougang Mall is close by; it’s just a six-minute drive, and provides for most day-to-day needs. There are also four schools within the one-kilometre enrollment distance:
While the price is attractive for a four-bedder, keep in mind that Riverfront Residences is a mega-development. At 1,472 units, buyers who want exclusivity or privacy may find it a bit crowded.
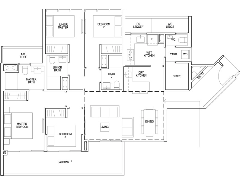
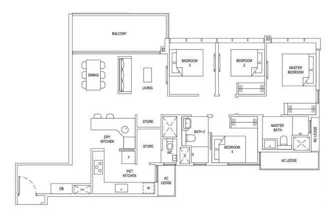
At 1,410 square feet, the 4 bedroom unit at Riverfront Residences is the joint biggest on this list – so those looking for a more affordable entry price and more space should definitely consider this.
While the entryway is rather unorthodox, it does mean you get good privacy for your family. That additional space also allows for a dry and wet kitchen setup, which is definitely ideal.
One of the good things here too is that 3 out of the 4 bedrooms come with an attached bathroom – a luxury in today’s context. (Okay, bedroom 2 isn’t really considered one – but you could possibly rearrange it if you so wished).
We have a full review of Clavon on Stacked.
| 4-bedder size | Price PSF | Quantum |
| 1,356 sq. ft. | $1,488.94 | $2.019 million |
Current prices indicates a median developer price of $1,614 psf, with a lowest price of $1,507 psf, and a highest price of $1,762 psf.
Location: Clementi Avenue 1 (District 5)
Developer: UIC & UOL Venture Investments
Lease: 99-years
TOP: 2025
Number of units: 640
Clementi is an easy sell right now, thanks to developments in nearby One-North and Buona Vista. Clavon is likely the next condo of choice, for those who want a wallet-friendly counterpart to Parc Clematis (asking prices currently around $1,644 psf for four-bedders).
Clavon isn’t within walking distance of any MRT; but it is just a six-minute drive to Clementi Mall, which will serve most day-to-day needs. It’s also near the much-revered NUS High School of Maths and Science, among others:
While Clavon is not exactly small at 640 units, some buyers don’t like mega-developments, and will prefer this to the 1,450-unit Parc Clematis.
At 1,356 square feet, the 4 bedroom unit at Clavon comes in at the mid range in terms of size. They were able to fit in a wet and dry kitchen here, but this is at the expense of a yard space – which could be a dealbreaker for some families.
The upside here is the addition of a study room (especially relevant in today’s pandemic context). Although buyers should note that this comes at the expense of the bathrooms, as all 3 common bedrooms here will be sharing one bathroom.
ALSO READ: 10 cheapest new launch condominiums in 2021 for families
We have a full review of Florence Residences on Stacked.
| 4-bedder size | Price PSF | Quantum |
| 1,292 sq. ft. | $1,490.71 | $1.926 million |
Current prices indicates a median developer price of $1,625 psf, with a lowest price of $1,421 psf, and a highest price of $1,798 psf.
Location: Hougang Avenue 2 (District 19)
Developer: Florence Development Pte. Ltd.
Lease: 99-years
TOP: 2023
Number of units: 1,410
Florence Residences was one of our main picks, for quality of facilities. The 80+ metre lagoon, plus the “club lifestyle” theme (see the linked review), puts this project at the top for family condos in 2020 / 21.
While this project isn’t near an MRT station, it’s not too far from day-to-day amenities. Hougang Mall is just a three-minute drive, while Heartland Mall is about a six-minute drive. The surrounding area is also packed with eateries, so foodies might appreciate the location.
As with all mega-developments though, you should be prepared for some loss of privacy; and more investment-minded buyers should probably consider smaller alternatives. Even with the decent price point, 1,410 units is a lot of future competition.
At 1,292 square feet, this is the biggest 4 bedroom unit that you will find at Florence Residences. They have managed to fit in quite a sizeable dry kitchen area and a store too but the absence of a proper yard area could be an issue for some.
It’s also a pity that all three bedrooms will be sharing one common bathroom here, which could potentially result in usage problems!
| 4-bedder size | Price PSF | Quantum |
| 1,335 sq. ft. | $1,508.38 | $2.013 million |
Current prices indicates a median developer price of $1,569 psf.
Location: Guillemard Road (District 14)
Developer: Macly Group Pte. Ltd.
Lease: Freehold
TOP: 2023
Number of units: 50
NoMa made the news when owners of two terrace houses refused to sell, causing this condo to be built around them. As this hasn’t happened before, we don’t know what effect it will have; but it’s likely to be worse on the landed home owners than on NoMa residents.
Of all the condos on this list, we’d say this is the most investor oriented. NoMa is within walking distance of two MRT lines: Dakota on the Circle Line (eight minutes’ walk), and Aljunied on the North East Line (10 minutes’ walk). It also has the distinction of being a freehold property.
NoMa is in the heart of the Geylang area though. While it’s reasonably far from the vice areas, this is still highly urbanised with few park spaces, and heavy traffic. We’d say it’s not ideal as a family condo, despite the sizeable units.
Location issues aside, NoMa does represent a very interesting layout. For one, it boasts of a private lift access – something which no other development on this list provides for. The layout is also C-shaped, which could take some getting used to – it is really a love it or hate it type of layout.
For one, the 4th bedroom is located right beside the dining room. It’s placed way away from the rest of the bedrooms (great for privacy) but because it doesn’t have an attached bath it is a longe walk to the common bathroom in the corner.
The balcony is also a very long one that three of the other bedrooms will have access to, but the slant in windows does mean your interior space for the two common bedrooms will be slightly compromised. Last but not least, it doesn’t come with a proper yard area, although that long balcony could go some way to help with that.
| 4-bedder size | Price PSF | Quantum |
| 1,410 sq. ft. | $1,509.22 | $2.128 million |
Current prices indicates a median developer price of $1,575 psf, with a lowest price of $1,126 psf, and a highest price of $1,794 psf.
Location: Serangoon North Avenue 1 (District 19)
Developer: Oxley Serangoon Pte. Ltd.
Lease: 99-years
TOP: 2024
Number of units: 1,052
Opinions on Affinity at Serangoon have been divisive. A distance of two kilometres to NEX megamall is not walkable, but it’s only a four-minute drive. Likewise, it’s only 1.5 kilometres (about the same drive time) to Serangoon Garden, which is the foodie hub of the neighbourhood. We’ll leave it to you to decide if this counts as “close”.
In terms of public transport, there’s no MRT within walking distance. But the situation will be rectified in 2029, when Serangoon North MRT is up – it will be about a 10-minute walk. However, six years after TOP is a long time to wait.
Based on the above, you can see why it’s difficult to decide on the strength of the location. It depends on whether you’re okay with waiting till 2029, and how you feel about short drives / cab trips.
Our overall conclusion on the location would be “good, but not very good”. It’s hard to make a judgement call on this project. Nonetheless, $1,509 psf may tip the scales, for those who like big units.
As mentioned above, this 1,410 square feet 4 bedroom unit at Affinity at Serangoon is the joint biggest on this list (although it is the smallest of the 4 bedroom + study units at the project).
First things first, the entranceway is too long and is a bit too much in terms of inefficient space. It does come with a wet and dry kitchen setup, and there is also a useful yard and utility area. The study here isn’t a great size, but still, it is great to have a separate space altogether in today’s WFH environment.
Lastly, all three common bedrooms will share just the one common bathroom – so just take note of that.
ALSO READ: 7 affordable 4-bedroom condos for $1.1m or cheaper (for bigger families)
We have a full review of Parc Komo on Stacked.
| 4-bedder size | Price PSF | Quantum |
| 1,292 sq. ft. | $1,509.29 | $1.950 million |
Current prices indicates a median developer price of $1,539 psf, with a lowest price of $1,538 psf, and a highest price of $1,540 psf.
Location: Serangoon North Avenue 1 (District 19)
Developer: CEL Real Estate Development Pte. Ltd.
Lease: Freehold
TOP: 2023
Number of units: 276
Let’s address the elephant in the room: Parc Komo is next to Changi Prison (about four minutes’ walk), so those with taboos should move on.
That aside, Parc Komo may be the cheapest (new) freehold condo option on the market. You’ll be hard pressed to match $1,509 psf, especially since Parc Komo has the convenience of integrated retail space (28 units).
The area is lacking in amenities, but Parc Komo is meant to be the solution to that, with the addition of its shops; so you’ll be on top of the hub. That said, this is quite an “ulu” area, with no MRT access – so you do need to drive.
The reclusive, quiet area, coupled with the small unit count, will also be seen as an advantage to some buyers. This project offers a high degree of privacy; and those who work further on the east end (e.g., Changi business city or Changi airport) will find it’s only about a seven-minute drive.
At 1,292 square feet, the 4 bedroom unit at Parc Komo does have a very short entrance way, which is good as it doesn’t waste space. The kitchen and utility set up is on the small side though, but this does mean the living and dining room does have a little more wiggle room.
All 3 common bathrooms here will share one bathroom, while the master bedroom comes with the added benefit of a balcony.
We have a full review of Midwood on Stacked.
| 4-bedder size | Price PSF | Quantum |
| 1,259 sq. ft. | $1,531.37 | $1.928 million |
Current prices indicates a median developer price of $1,651 psf, with a lowest price of $1,556 psf, and a highest price of $1,780 psf.
Location: Hillview Rise (District 23)
Developer: Hillview Rise Development Pte. Ltd.
Lease: 99-years
TOP: 2024
Number of units: 564
Midwood provides a more reasonably priced alternative to Bukit Timah area properties, while providing much of the same vibe. This condo overlooks the Bukit Timah nature reserve, and is only about a five-minute drive away.
Hill V2 provides most of the day-to-day retail and grocery needs, being right next door; and The Rail Corridor is one of the key highlights. In fact The Rail Mall is just a four-minute drive, and might be walkable to some at 590 metres (about 13 minutes on foot).
Hillview MRT station is about 10 minutes’ way, connecting you via the Downtown Line.
That said, Midwood is definitely not the right condo for urbanites. If you want to be near the mall or offices, or your idea of entertainment is clubs and cinemas, this is not the right choice.
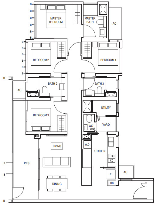
The 4 bedroom unit at Midwood comes with a wet and dry kitchen, although the dry kitchen area is quite a small setup. There is also a yard and utility area, which is always useful for practical family living.
The jack and jill bathroom layout does also mean that each common bedroom will have an attached bathroom – which if you’ve gone through this list is a definite huge plus point.
We have a full review of Penrose on Stacked.
| 4-bedder size | Price PSF | Quantum |
| 1,389 sq. ft. | $1,535.64 | $2.133 million |
Current prices indicates a median developer price of $1,656 psf, with a lowest price of $1,626 psf, and a highest price of $1,660 psf.
Location: Sims Drive (District 14)
Developer: Hong Leong Group and City Developments Ltd.
Lease: 99-years
TOP: 2024
Number of units: 566
Penrose is for buyers who like urban living, and prize accessibility over parks and picnic spaces. It’s location along Sims Drive means traffic noise is inevitable; and across the condo, you’ll find businesses that range from paint shops, to budget hostels, to bars.
(The upside is that the businesses include convenience stores, as well as some eateries. This includes the famous G7 Live Seafood Restaurant).
Penrose is also viable from an investment perspective. It’s a six-minute drive to Paya Lebar Quarter (PLQ), and within 480 metres (about 10 minutes’ walk) to Aljunied MRT station. This is quite convenient for tenants who work at PLQ, but don’t want to pay the increasingly exorbitant prices in that area.
Overall, Penrose is very much a “function over form” condo. It’s not the prettiest location, with little to offer in the way of a view (or even peace and quiet). But it’s an affordable way to live in an accessible location, with plenty of across-the-road amenities. This is one for investors, or the most purely practical home buyers.
The 4 bedroom unit at Penrose is not a bad size at 1,389 square feet. In a rather unique fashion, the bomb shelter is placed right at the entrance, and with the availability of a store does mean that you have an additional area for storage here – something very much lacking in many of the new developments.
Like Midwood, the layout is pretty efficient – with jack and jill layouts for the common bathrooms. This means that all the bedrooms in this unit will essentially come with an attached bathroom.
This article was first published in Stackedhomes.