3-bedroom new-launch condo units you can still buy in 2024 (from $1.248m)

Don't you hate that feeling when you see a suitable new-launch condo with remaining units, get excited, and then find the "remaining units" are gazillion-dollar penthouses? That seems to happen all the time in our fast-moving property market.
Plus, there still isn't one place to find out exactly where there is stock available — so you'd still have to rely on what a property agent would disclose to you.
So to prevent disappointment, we've compiled a list of new-launch projects with three-bedders still available; perfect for upgraders and family buyers. Here's where to look:
This is accurate as of December 2024:
| Project Name | Size From (Sq Ft) | Starts | Max Price |
| North Gaia | 958 | $1,248,000 | $1,618,000 |
| Novo Place | 872 | $1,308,000 | $1,500,000 |
| Provence Residence | 883 | $1,351,000 | $1,351,000 |
| Lumina Grand | 936 | $1,364,000 | $1,452,000 |
| The Shorefront | 940 | $1,739,000 | $2,988,000 |
| The Arden | 1012 | $1,837,000 | $2,162,000 |
| Kassia | 904 | $1,838,000 | $2,219,000 |
| Gems Ville | 1130 | $1,888,000 | $2,378,000 |
| The Myst | 850 | $1,900,000 | $2,604,000 |
| Jansen House | 1012 | $1,988,000 | $2,151,000 |
| Hillhaven | 947 | $2,008,917 | $2,560,062 |
| K Suites | 797 | $2,058,000 | $2,800,000 |
| Mattar Residences | 893 | $2,061,044 | $2,061,044 |
| SORA | 936 | $2,073,000 | $2,797,000 |
| Mori | 1173 | $2,093,000 | $2,111,000 |
| Lentoria | 915 | $2,112,000 | $2,810,000 |
| Bartley Vue | 1044 | $2,148,000 | $2,173,000 |
| Hillock Green | 947 | $2,175,000 | $2,997,000 |
| Straits at Joo Chiat | 1044 | $2,196,520 | $2,221,520 |
| The LakeGarden Residences | 1012 | $2,233,400 | $4,716,800 |
| Sceneca Residence | 1044 | $2,248,000 | $2,608,000 |
| The Botany at Dairy Farm | 1044 | $2,248,000 | $2,665,000 |
| Hill House | 753 | $2,258,000 | $2,391,000 |
| Terra Hill | 904 | $2,376,000 | $3,148,000 |
| Koon Seng House | 1033 | $2,387,000 | $2,638,000 |
| The Arcady at Boon Keng | 969 | $2,390,000 | $3,619,000 |
| Nava Grove | 947 | $2,425,300 | $2,990,100 |
| Grand Dunman | 980 | $2,458,000 | $4,162,000 |
| Claydence | 1076 | $2,474,800 | $3,392,500 |
| The Hill @ One North | 980 | $2,499,000 | $2,991,000 |
| The Continuum | 872 | $2,581,000 | $4,271,000 |
| The Hillshore | 1055 | $2,588,000 | $4,288,000 |
| Chuan Park | 1023 | $2,625,550 | $3,536,078 |
| Pinetree Hill | 1163 | $2,671,000 | $3,376,000 |
| Lentor Hills Residences | 1302 | $2,733,000 | $2,795,000 |
| Atlassia | 1141 | $2,804,578 | $2,804,578 |
| 8@BT | 1001 | $2,813,000 | $3,305,000 |
| Union Square Residences | 990 | $2,820,000 | $3,596,000 |
| The Collective At One Sophia | 1023 | $2,845,000 | $3,589,000 |
| The Residences At W Sentosa | 1658 | $2,861,200 | $5,951,880 |
| J’den | 1184 | $2,970,000 | $3,158,000 |
| Meyer Blue | 990 | $3,001,000 | $3,812,000 |
| Tembusu Grand | 1399 | $3,042,000 | $3,070,000 |
| Enchante | 1270 | $3,398,700 | $3,427,500 |
| 10 Evelyn | 1227 | $3,416,000 | $3,500,200 |
| Ikigai | 1496 | $3,465,280 | $4,429,600 |
| One Bernam | 1421 | $3,724,000 | $7,230,000 |
| Cuscaden Reserve | 1152 | $3,848,000 | $3,848,000 |
| Parksuites | 1421 | $3,861,360 | $3,861,360 |
| Midtown Bay | 1324 | $4,714,000 | $5,452,000 |
| Watten House | 1539 | $5,038,000 | $5,144,000 |
| 19 Nassim | 1475 | $5,312,400 | $5,312,400 |
| The Giverny Residences | 1636 | $5,497,000 | $5,982,000 |
| Newport Residences | 980 | Price Unavailable |
ECs are built for families and HDB upgraders, so it’s not surprising they have so many three-bedroom units since that typically forms the bulk of the units. They also make up the top four projects for affordability
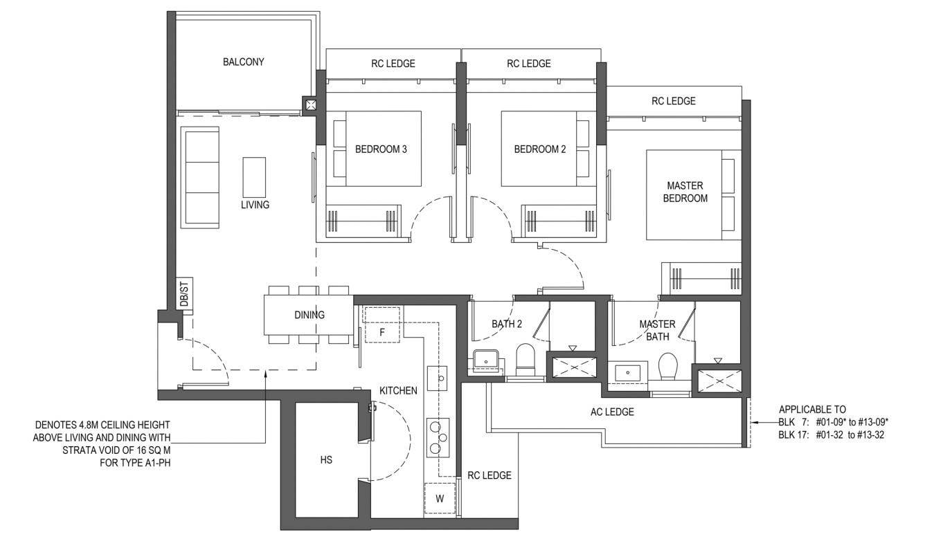
North Gaia is a 616-unit EC project, which launched in 2022. While it's almost sold out at this point (93 per cent sold), there are still some three-bedders left.
At the time of its launch, North Gaia was one of the last ECs before land acquisition costs crossed the $650 psf mark; so it was widely believed that subsequent ECs would be much pricier. Nonetheless, we wouldn't say sales have been particularly fast.
The reason might be the location: while the greenery is great (it's just across the road from Khatib Bongsu), it's very much a fringe area.
There isn't any MRT station nearby, so you will need a bus or car to get around. There are bus services nearby, like 811, which goes to Yishun MRT station (NSL). This is also where you'll find Northpoint City Mall.
The immediate surroundings do have local amenities: most of this will be from Junction Nine Mall, which is within walking distance.
The surrounding Yishun HDB enclave is also reasonably well developed, with a lot of coffee shops, convenience stores, and other heartland amenities. The highlight is the abundance of green space though, so we'd recommend this only if nature walks, bicycling, etc. are your kind of thing.
The smaller three-bedders here (958 sq ft) have sold for as low as $1.39 million, making this accessible to most HDB upgraders.
Available units
| Project | Unit Number | Size | $PSF | Price |
| North Gaia | 02-04 | 980 | $1,289 | $1,263,000 |
| North Gaia | 04-04 | 980 | $1,299 | $1,273,000 |
| North Gaia | 02-16 | 980 | $1,289 | $1,263,000 |
| North Gaia | 02-21 | 1033 | $1,338 | $1,382,000 |
| North Gaia | 04-21 | 1033 | $1,348 | $1,392,000 |
| North Gaia | 02-22 | 1066 | $1,401 | $1,493,000 |
| North Gaia | 03-22 | 1066 | $1,405 | $1,498,000 |
| North Gaia | 03-24 | 958 | $1,330 | $1,274,000 |
| North Gaia | 04-24 | 958 | $1,335 | $1,279,000 |
| North Gaia | 06-24 | 958 | $1,346 | $1,289,000 |
| North Gaia | 07-24 | 958 | $1,351 | $1,294,000 |
| North Gaia | 09-24 | 958 | $1,364 | $1,307,000 |
| North Gaia | 11-24 | 958 | $1,375 | $1,317,000 |
| North Gaia | 13-24 | 958 | $1,385 | $1,327,000 |
| North Gaia | 02-34 | 1033 | $1,380 | $1,426,000 |
| North Gaia | 03-34 | 1033 | $1,385 | $1,431,000 |
| North Gaia | 02-39 | 1076 | $1,397 | $1,503,000 |
| North Gaia | 14-39 | 1076 | $1,520 | $1,635,000 |
| North Gaia | 04-43 | 1023 | $1,389 | $1,421,000 |
Novo Place is a 504-unit project in Tengah, which is close to the future Tengah Park MRT station (TEL). The station is likely to be operational in 2027, which is within the same year that Novo Place should TOP.
There are a number of three-bedroom configurations, ranging from 872 to 947 sq ft. Competitive pricing is definitely part of the sales pitch here, with the most affordable units priced at a mere $1.29 million.
Also note that, if the units sound small, that's because Novo Place is a post-harmonisation project: its square footage doesn't include spaces like air-con ledges. When you take this into account, its size is not much different from most three-bedders today.
The other selling point is that this isn't a prefabricated construction (non-PPVC). This makes it easy to reconfigure the interior, merging rooms or matching design themes as needed.
Novo Place is for those who are thinking long-term and want a first-mover advantage. The low price reflects the present reality: Tengah is brand new, and the least developed of all HDB towns right now.
Owners here will be relying on their better-developed neighbours like Juring for years to come - but they are getting in on the proverbial ground floor, where there's a lot of room for future appreciation.
Do note though, that Novo Place managed to sell almost 57 per cent during launch weekend, so a bulk of the better-priced units would have been sold already.
Available units
| Project | Unit Number | Size | $PSF | Price |
| Novo Place | 02-08 | 872 | $1,500 | $1,308,000 |
| Novo Place | 02-12 | 872 | $1,500 | $1,308,000 |
| Novo Place | 01-08 | 872 | $1,506 | $1,313,000 |
| Novo Place | 03-08 | 872 | $1,506 | $1,313,000 |
| Novo Place | 01-12 | 872 | $1,506 | $1,313,000 |
| Novo Place | 03-12 | 872 | $1,506 | $1,313,000 |
| Novo Place | 04-08 | 872 | $1,511 | $1,318,000 |
| Novo Place | 04-12 | 872 | $1,511 | $1,318,000 |
| Novo Place | 05-08 | 872 | $1,517 | $1,323,000 |
| Novo Place | 05-12 | 872 | $1,517 | $1,323,000 |
| Novo Place | 02-18 | 872 | $1,517 | $1,323,000 |
| Novo Place | 06-08 | 872 | $1,523 | $1,328,000 |
| Novo Place | 06-12 | 872 | $1,523 | $1,328,000 |
| Novo Place | 03-18 | 872 | $1,523 | $1,328,000 |
| Novo Place | 07-08 | 872 | $1,529 | $1,383,000 |
| Novo Place | 07-12 | 872 | $1,529 | $1,333,000 |
| Novo Place | 04-18 | 872 | $1,529 | $1,333,000 |
| Novo Place | 08-08 | 872 | $1,540 | $1,343,000 |
| Novo Place | 06-18 | 872 | $1,540 | $1,343,000 |
| Novo Place | 02-22 | 872 | $1,540 | $1,343,000 |
This is a 413-unit EC, which is often compared against its neighbour Parc Canberra (also an EC).
Provence Residence has a French theme, with its glass details and panelling. Its $1.351 million price tag, for a three-bedder, is partly due to Canberra's less developed state — but the inconvenience of that may be overrated.
Canberra MRT station is within walking distance (NSL), which is a rare trait for most ECs. There's also good proximity to Bukit Canberra, which is a 12-hectare lifestyle hub servicing the neighbourhood. Otherwise, there's the HDB-run Sembawang Shopping Centre nearby, which can cater to most daily needs.
While none of this equates Canberra to a more developed area (yet), we doubt residents will feel any real sting of inconvenience. The real issue boils down to the sheer number of ECs here: besides Parc Canberra, projects like Visionaire and Brownstone all provide alternatives at very close prices.
This may be off-putting to the more investment-oriented crowd, but it's not a big deal to pure homeowners.
In any case, at the time of writing, this is the last unit (883 sq ft) that is still available at Provence Residence. So those who can't wait and want to move in immediately, this will be a suitable choice.
Available units
| Project | Unit Number | Size | $PSF | Price |
| Provence Residence | 05-29 | 883 | $1,530 | $1,351,000 |
Lumina Grand launched in January this year, and this 512-unit EC started very low: $1.338 million for the smallest three-bedders. The prices don't seem to have gone up too much yet, as we've noticed units transacting at $1.364 million to $1.452 million.
This project borders the new neighbourhood of Tengah and future developments there are bound to benefit Lumina Grand. In the meantime, it's in something of a self-contained enclave: the Bukit Batok HDB cluster has amenities like Sheng Siong, coffee shops, and convenience stores; and the mixed-use Le Quest condo adds a food court and a Guardian.
Bukit Batok Hillside Park provides a lot of green space, which is nice for the view as well as outdoor lovers. If you do need a big mall and more retail, there are bus services here that go directly to Bukit Batok MRT station (NSL), where you can find West Mall.
(Note: the upcoming Tengah Park MRT station (TEL) is actually the closest station to Lumina Grand, but it's only up in 2027 and is still too far to walk anyway).
Overall, a good location for families who want a break from Singapore's highly urban areas; but less so for families who prefer having malls and late-night entertainment.
Available units (Top 20 most affordable)
| Project | Unit Number | Size | $PSF | Price |
| Lumina Grand | 02-14 | 936 | $1,457 | $1,364,000 |
| Lumina Grand | 03-14 | 936 | $1,466 | $1,372,000 |
| Lumina Grand | 04-14 | 936 | $1,474 | $1,380,000 |
| Lumina Grand | 01-10 | 936 | $1,476 | $1,382,000 |
| Lumina Grand | 02-09 | 936 | $1,482 | $1,387,000 |
| Lumina Grand | 02-10 | 936 | $1,482 | $1,387,000 |
| Lumina Grand | 05-14 | 936 | $1,483 | $1,388,000 |
| Lumina Grand | 04-32 | 936 | $1,484 | $1,389,000 |
| Lumina Grand | 03-10 | 936 | $1,487 | $1,392,000 |
| Lumina Grand | 01-31 | 936 | $1,491 | $1,396,000 |
| Lumina Grand | 01-40 | 936 | $1,491 | $1,396,000 |
| Lumina Grand | 04-10 | 936 | $1,493 | $1,397,000 |
| Lumina Grand | 05-32 | 936 | $1,497 | $1,401,000 |
| Lumina Grand | 02-31 | 936 | $1,498 | $1,402,000 |
| Lumina Grand | 02-35 | 936 | $1,498 | $1,402,000 |
| Lumina Grand | 02-36 | 936 | $1,498 | $1,402,000 |
| Lumina Grand | 02-40 | 936 | $1,498 | $1,402,000 |
| Lumina Grand | 03-31 | 936 | $1,503 | $1,407,000 |
| Lumina Grand | 03-35 | 936 | $1,503 | $1,407,000 |
The Shorefront is a boutique, 23-unit condo in Pasir Ris. It's also effectively freehold (999-years), which makes the price tag more palatable than you might think: the three-bedders here can start at $1.739 million for a 926 sq ft unit.
That said for the size of the unit, the lack of an enclosed kitchen (and ventilation) may be a dealbreaker for some people.
The Shorefront is within walking distance of Downtown East, which is one of the biggest family recreational hubs in Singapore.
Apart from entertainment facilities like Singapore's biggest water park (Wild Wild Wet), Downtown East is a large accumulation of restaurants and retail outlets, which provides a lot of convenience. There's also a free shuttle service to Pasir Ris MRT station (EWL, CRL) from Downtown East, which operates from 11 am to 10 pm.
Otherwise, there are other bus services nearby that go directly to Pasir Ris MRT, where you'll also find White Sands Mall. It is, unfortunately, too far to walk there.
This is a good project for those who want a more resort-like feel, and for those who like low unit counts. We would watch out for higher maintenance fees though, and the boutique nature of the project means common facilities are not so lavish.
Available units
| Project | Unit Number | Size | $PSF | Price |
| The Shorefront | 01-01 | 985 | $1,923 | $1,894,000 |
| The Shorefront | 02-01 | 977 | $1,895 | $1,851,000 |
| The Shorefront | 03-01 | 977 | $1,908 | $1,864,000 |
| The Shorefront | 05-01 | 1708 | $1,749 | $2,988,000 |
| The Shorefront | 01-02 | 986 | $1,926 | $1,899,000 |
| The Shorefront | 02-02 | 980 | $1,891 | $1,853,000 |
| The Shorefront | 03-02 | 980 | $1,907 | $1,869,000 |
| The Shorefront | 02-05 | 940 | $1,850 | $1,739,000 |
| The Shorefront | 03-05 | 940 | $1,866 | $1,754,000 |
| The Shorefront | 04-05 | 940 | $1,883 | $1,770,000 |
[[nid:712061]]
This article was first published in Stackedhomes.